Retour
Rechercher
Lieu
Où ?
    Type de bien
    Quel type de projet ?
    Particulier Entreprise
    Quel type de bien ?
        Prix
        Quel budget ?
              Surface
              Quelle surface ?
                    Pièces
                    Combien de pièces ?
                      Combien de chambres ?
                          24

                          Ventes de bureaux à Nancy

                          Recherche 24
                          Carte
                          • Bureau - 230 m²
                          • Bureau - 230 m²
                          • Bureau - 230 m²
                          • Bureau - 230 m²
                          • Bureau - 230 m²

                          Bureau - 230 m²

                          450 000 € HT
                          Dans l'hypercentre de Nancy, à deux pas du centre commercial Saint-Sébastien et de la gare TGV, PJ Real Estate propose à la location une surface de bureaux d'environ 230 m2. Ce plateau est situé au deuxième étage d'un immeuble tertiaire en copropriété, offrant une adresse prestigieuse pour toute structure souhaitant s'implanter au coeur de la vie économique nancéienne. Une con
                          Professionnel Publié il y a plus de 7 jours
                          Nancy 2nd étage Parking
                          • Bureau - 476 m² - 17 pièces
                          • Bureau - 476 m² - 17 pièces
                          • Bureau - 476 m² - 17 pièces
                          • Bureau - 476 m² - 17 pièces
                          • Bureau - 476 m² - 17 pièces
                          • Bureau - 476 m² - 17 pièces Cliquez pour voir les 14 photos

                          Bureau - 476 m² - 17 pièces

                          858 000 € HT
                          À VENDRE - 476 M² DE BUREAUX HAUT DE GAMME + 14 PARKINGS PRIVATIFS Un lieu d'exception pour valoriser votre activité - À la limite de Nancy et Maxéville, sur le Plateau de Haye. Installez vos bureaux dans un cadre professionnel prestigieux ! Situé au dernier étage d'un immeuble contemporain avec ascenseur, ce plateau de 476 m² vous offre un environnement de travail spacieux, l
                          Professionnel Publié il y a plus de 7 jours
                          Nancy Dernier étage Parking
                          • Bureau - 235 m² - 10 pièces
                          • Bureau - 235 m² - 10 pièces
                          • Bureau - 235 m² - 10 pièces
                          • Bureau - 235 m² - 10 pièces
                          • Bureau - 235 m² - 10 pièces
                          • Bureau - 235 m² - 10 pièces Cliquez pour voir les 9 photos

                          Bureau - 235 m² - 10 pièces

                          475 000 €
                          Dans le centre-ville de Nancy, à proximité de la gare, des parkigns publiques et transports en commun, découvrez ce plateau de bureau de 235 m² au 2ème étage avec ascenseur. Actuellement cloisonné en 10 espaces de bureau, ils profitent également d'un espace cuisine et de sanitaires. Honoraires à la charge du vendeur. Dans une copropriété de 11 lots. Aucune procédure n'est en
                          Professionnel Publié il y a plus de 7 jours
                          Nancy 2nd étage Parking
                          Bureau - 212 m²

                          Bureau - 212 m²

                          340 000 € HT
                          ? À VENDRE - PLATEAU DE BUREAUX - NANCY, RUE DU CARDINAL TISSERANT PJ.Real Estate vous propose à la vente un plateau de bureaux d'environ 211.80 m² loi Carrez, situé au 4ème étage d'un immeuble en copropriété à usage mixte commerces et bureaux, au coeur d'un quartier prisé de Nancy. ? Visibilité optimale - Parkings publics à proximité - Quartier dynamique - Ascenseur ? Un em
                          Professionnel Publié il y a plus de 7 jours
                          Nancy RDC Parking
                          Bureau - 135 m²

                          Bureau - 135 m²

                          220 000 € HT
                          ? À VENDRE - PLATEAU DE BUREAUX - NANCY, RUE DU CARDINAL TISSERANT PJ.Real Estate vous propose à la vente un plateau de bureaux d'environ 135,40 m² loi Carrez, situé au 2ème étage d'un immeuble en copropriété à usage mixte commerces et bureaux, au coeur d'un quartier prisé de Nancy. ? Visibilité optimale - Parkings publics à proximité - Quartier dynamique - Ascenseur ? Un em
                          Professionnel Publié il y a plus de 7 jours
                          Nancy RDC Parking
                          Bureau - 222 m²

                          Bureau - 222 m²

                          360 000 € HT
                          PJ Real Estate vous propose à la vente un plateau de bureaux d'environ 222,40 m2 (loi Carrez), situé au 1er étage d'un immeuble en copropriété à usage mixte. Idéalement implanté rue du Cardinal Tisserant, ce bien bénéficie d'un emplacement stratégique au coeur d'un quartier dynamique et recherché de Nancy. Un espace de travail complet et accessible Le plateau, dont la surface
                          Professionnel Publié il y a plus de 7 jours
                          Nancy RDC Parking
                          Bureau - 221 m²

                          Bureau - 221 m²

                          355 000 € HT
                          ? À VENDRE - PLATEAU DE BUREAUX - NANCY, RUE DU CARDINAL TISSERANT PJ.Real Estate vous propose à la vente un plateau de bureaux d'environ 220.60 m² loi Carrez, situé au 3ème étage d'un immeuble en copropriété à usage mixte commerces et bureaux, au coeur d'un quartier prisé de Nancy. ? Visibilité optimale - Parkings publics à proximité - Quartier dynamique - Ascenseur ? Un em
                          Professionnel Publié il y a plus de 7 jours
                          Nancy RDC Parking
                          • Bureau - 111 m²
                          • Bureau - 111 m²
                          • Bureau - 111 m²
                          • Bureau - 111 m²
                          • Bureau - 111 m²
                          • Bureau - 111 m² Cliquez pour voir les 6 photos

                          Bureau - 111 m²

                          197 000 € HT
                          PJ Real Estate propose à la vente un espace de bureaux fonctionnel d'une surface privative d'environ 83 m2, situé en rez-de-chaussée d'un immeuble récent de qualité sur le Plateau de Haye. À la jonction de Nancy et Maxéville, ce bien offre un cadre de travail performant au sein d'un immeuble basse consommation (BBC - RT 2012). Un aménagement fonctionnel et prêt à l'emploi Les
                          Professionnel Publié il y a plus de 7 jours
                          Nancy RDC Parking
                          • Bureau - 128 m² - 4 pièces
                          • Bureau - 128 m² - 4 pièces
                          • Bureau - 128 m² - 4 pièces
                          • Bureau - 128 m² - 4 pièces
                          • Bureau - 128 m² - 4 pièces
                          • Bureau - 128 m² - 4 pièces Cliquez pour voir les 7 photos

                          Bureau - 128 m² - 4 pièces

                          255 000 € HT
                          À VENDRE - Rare sur le secteur : espace professionnel de 128 m² situé au 1er étage, dans un immeuble de caractère en plein coeur de Nancy. Vous serez séduit par son authenticité : Parquet d'origine, moulures, et cheminées décoratives lui confèrent un charme unique. Le chauffage individuel assure confort et maîtrise des charges. Quelques travaux de rafraîchissement permettront
                          Professionnel Publié il y a plus de 7 jours
                          Nancy 1er étage Parking
                          • Bureau - 81 m² - 4 pièces
                          • Bureau - 81 m² - 4 pièces
                          • Bureau - 81 m² - 4 pièces
                          • Bureau - 81 m² - 4 pièces
                          • Bureau - 81 m² - 4 pièces
                          • Bureau - 81 m² - 4 pièces Cliquez pour voir les 8 photos

                          Bureau - 81 m² - 4 pièces

                          219 000 €
                          À Nancy, Place Carnot, venez découvrir ces bureaux de 4 pièces à réinventer, offrant un cadre de travail confortable. Dès l'entrée, vous profiterez d'un espace de plus 30 m² pour y faire un open-space lumineux grâce aux grandes ouvertures. Vous disposerez également de deux bureaux spacieux, une grande salle d'eau et un WC indépendant. En sus de ce bien, vous trouverez un anc
                          Professionnel Publié il y a plus de 7 jours
                          Nancy RDC Parking
                          • Bureau - 651 m²
                          • Bureau - 651 m²
                          • Bureau - 651 m²
                          • Bureau - 651 m²
                          • Bureau - 651 m²
                          • Bureau - 651 m² Cliquez pour voir les 7 photos

                          Bureau - 651 m²

                          1 550 000 € HT
                          PJ Real Estate vous propose à la vente un immeuble de bureaux de caractère idéalement situé face à la Préfecture, à deux pas de la Place Stanislas, au coeur de Nancy. Cet actif immobilier tertiaire rare bénéficie d'un emplacement hypercentral premium et d'une forte valeur patrimoniale, recherché tant par les investisseurs que par les utilisateurs. Entièrement rénové, l'immeubl
                          Professionnel Publié il y a plus de 7 jours
                          Nancy 3ème étage Parking
                          • Bureau - 577 m² - 11 pièces
                          • Bureau - 577 m² - 11 pièces
                          • Bureau - 577 m² - 11 pièces
                          • Bureau - 577 m² - 11 pièces
                          • Bureau - 577 m² - 11 pièces
                          • Bureau - 577 m² - 11 pièces Cliquez pour voir les 24 photos

                          Bureau - 577 m² - 11 pièces

                          890 000 €
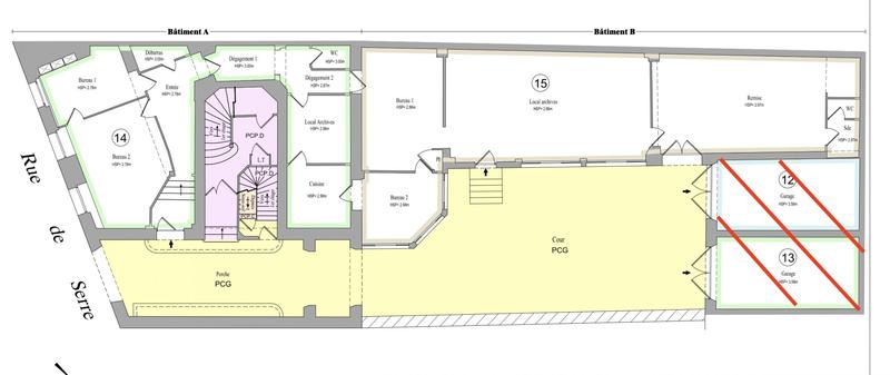
                          Bureaux d'exception dans une Maison de Maître Art nouveau Nancy Édifiée en 1912 par l'architecte Fernand César, cette demeure exceptionnelle illustre l'apogée de l'Art nouveau nancéien. Elle associe les talents de trois figures majeures de l'École de Nancy : Fernand César pour l'architecture, Jacques Gruber pour ses vitraux colorés, et Eugène Vallin pour ses boiseries sculptées
                          Professionnel Publié il y a plus de 7 jours Non géolocalisée
                          Nancy Parking
                          • Bureau - 1 150 m²
                          • Bureau - 1 150 m²
                          • Bureau - 1 150 m²
                          • Bureau - 1 150 m²
                          • Bureau - 1 150 m²
                          • Bureau - 1 150 m² Cliquez pour voir les 19 photos

                          Bureau - 1 150 m²

                          1 595 000 €
                          Investisseur : À Nancy, à proximité immédiate des axes autoroutiers et du centre-ville, découvrez cet immeuble de bureaux de 1.150 m² actuellement loué, avec 100 % de taux d'occupation. Élevé sur 2 niveaux et un niveau de sous-sol aménagé, il se divise en 3 lots, de 150, 300 et 500 m² et offre un cadre de travail optimal, lumineux et spacieux. Rénové en 2022, son lot principa
                          Professionnel Publié il y a plus de 7 jours
                          Nancy RDC Parking
                          • Bureau - 75 m²
                          • Bureau - 75 m²

                          Bureau - 75 m²

                          125 000 € HT
                          ? À VENDRE - LOCAL COMMERCIAL - NANCY (Avenue du Général Leclerc - Quartier Gare / proximité centre-ville) ? Belle visibilité - Axe à fort passage - Accessibilité optimale ? Emplacement stratégique à Nancy :Situé sur un axe très fréquenté, à seulement 10 minutes à pied de la gare TGV de Nancy et de l'hyper-centre, ce local bénéficie d'un emplacement recherché, en coeur de mét
                          Professionnel Publié il y a plus de 7 jours
                          Nancy RDC Parking
                          • Bureau - 96 m²
                          • Bureau - 96 m²
                          • Bureau - 96 m²
                          • Bureau - 96 m²
                          • Bureau - 96 m²
                          • Bureau - 96 m² Cliquez pour voir les 8 photos

                          Bureau - 96 m²

                          199 000 € HT
                          PJ.Real Estate vous propose à la vente un local professionnel de 95,75 m² Carrez, idéalement situé sur l'un des axes les plus fréquentés de Nancy. Cet emplacement bénéficie d'une visibilité exceptionnelle et d'une accessibilité optimale, reliant directement l'hypercentre au quartier du Vélodrome de Vandoeuvre-lès-Nancy. À seulement dix minutes de la gare TGV et du centre-ville,
                          Professionnel Publié il y a plus de 7 jours
                          Nancy RDC Parking
                          • Bureau - 190 m²
                          • Bureau - 190 m²
                          • Bureau - 190 m²

                          Bureau - 190 m²

                          543 993 € HT
                          PJ Real Estate propose à la vente un plateau de bureaux neufs d'environ 190 m2, dont 166,20 m2 de surface privative, situé au coeur du quartier d'affaires Nancy Grand Coeur. Implanté dans un immeuble tertiaire récent à l'architecture contemporaine, ce bien rare s'inscrit dans le principal pôle de développement tertiaire de la métropole, offrant un cadre moderne, dynamique et va
                          Professionnel Publié il y a plus de 7 jours
                          Nancy 2nd étage Parking
                          Bureau - 506 m²

                          Bureau - 506 m²

                          265 000 € HT
                          PLATEAUX À VENDRE - NANCY - EMPLACEMENT STRATÉGIQUE Le cabinet TH2 CONSEIL ET TRANSACTION Grand Est vous propose à la vente 506m², initialement prévus en bureaux RDC : 283,60 m² - R+1 : 222,60 m² À vendre, plateaux lumineux et fonctionnels situés au coeur de Nancy, offrant un cadre de travail idéal pour votre entreprise, avec place de parking en sous-sol. Caractéristiques pr
                          Professionnel Publié il y a plus de 7 jours
                          Nancy RDC Parking
                          Bureau - 1 000 m²

                          Bureau - 1 000 m²

                          1 € HT
                          ? Opportunité - Immeuble de bureaux à réhabiliter - Nancy Idéalement situé sur une artère emblématique et dynamique de Nancy, cet immeuble à usage de bureaux de 1 000 m², construit en R+2, bénéficie d'un parking privatif clos et offre un cadre alliant patrimoine architectural, accessibilité et proximité des commerces. Atouts majeurs : ? Accessibilité optimale : à proximité im
                          Professionnel Publié il y a plus de 7 jours
                          Nancy 2nd étage Parking
                          • Bureau - 181 m²
                          • Bureau - 181 m²
                          • Bureau - 181 m²
                          • Bureau - 181 m²
                          • Bureau - 181 m²

                          Bureau - 181 m²

                          400 000 € HT
                          PJ Real Estate présente à la vente ou à la location une opportunité immobilière rare située sur l'une des artères les plus prisées du centre-ville de Nancy. Ce plateau traversant à usage mixte, idéal pour des bureaux de standing ou une habitation d'exception, occupe le deuxième étage d'un immeuble de caractère dont les parties communes ont bénéficié d'une rénovation soignée, ga
                          Professionnel Publié il y a plus de 7 jours
                          Nancy 2nd étage Parking
                          • Bureau - 457 m²
                          • Bureau - 457 m²
                          • Bureau - 457 m²
                          • Bureau - 457 m²
                          • Bureau - 457 m²
                          • Bureau - 457 m² Cliquez pour voir les 7 photos

                          Bureau - 457 m²

                          990 000 € HT
                          PJ Real Estate vous propose à la vente un plateau de bureaux neuf d'environ 457 m² situé au deuxième étage d'un immeuble tertiaire moderne avec accessibilité PMR, au coeur du quartier Nancy Rives de Meurthe. Ce secteur en pleine dynamique associe bureaux, logements, commerces et loisirs, offrant un environnement attractif et recherché pour les entreprises. Le plateau développe
                          Professionnel Publié il y a plus de 7 jours
                          Nancy RDC Parking
                          • Bureau - 218 m²
                          • Bureau - 218 m²
                          • Bureau - 218 m²
                          • Bureau - 218 m²
                          • Bureau - 218 m²
                          • Bureau - 218 m² Cliquez pour voir les 17 photos

                          Bureau - 218 m²

                          230 000 €
                          À VENDRE - BUREAUX / LOCAL PROFESSIONNEL - NANCY Situé en rez-de-chaussée d'une copropriété d'habitation calme et sécurisée, ce local professionnel clé en main et libre de toute occupation développe une surface de 148 m2 de bureaux, complétée par un espace d'archives en sous-sol de 70 m2. Le bien bénéficie d'un environnement agréable ainsi que de 3 places de stationnement pr
                          Professionnel Publié il y a plus de 7 jours Non géolocalisée
                          Nancy Parking
                          • Bureau - 74 m²
                          • Bureau - 74 m²
                          • Bureau - 74 m²
                          • Bureau - 74 m²
                          • Bureau - 74 m²
                          • Bureau - 74 m² Cliquez pour voir les 17 photos

                          Bureau - 74 m²

                          220 000 €
                          Situés à seulement 200m de la place Stanislas, au rez-de-chaussée d'un bel immeuble d'architecture XVIII ème, locaux de 74 m2 à usage professionnel, de bureaux ou d'habitation (avec salle de bain et cuisine existantes). Chauffage individuel au gaz, syndic bénévole (nouvelle mise en copropriété, lot no1/7). Idéal profession libérale ou appartement pour PMR. Renseignements et vis
                          Professionnel Publié il y a plus de 7 jours Non géolocalisée
                          Nancy RDC Parking
                          • Bureau - 201 m²
                          • Bureau - 201 m²
                          • Bureau - 201 m²

                          Bureau - 201 m²

                          380 000 € HT
                          PJ.Real Estate vous propose à la vente une surface de bureaux d'environ 200,55 m², située en rez-de-chaussée d'un immeuble de caractère, à quelques pas de la gare TGV et de la Faculté de Droit de Nancy. PJ.Real Estate est une agence immobilière spécialisée en immobilier d'entreprise, présente en Lorraine, en Alsace et en Meurthe-et-Moselle. L'actif bénéficie d'un emplacement pr
                          Professionnel Publié il y a plus de 7 jours
                          Nancy RDC Parking
                          • Bureau - 121 m²
                          • Bureau - 121 m²
                          • Bureau - 121 m²
                          • Bureau - 121 m²
                          • Bureau - 121 m²
                          • Bureau - 121 m² Cliquez pour voir les 9 photos

                          Bureau - 121 m²

                          123 000 €
                          Situé en hypercentre de Nancy au 13 rue du Grand Rabbin Hagenauer, au 1er étage, vous trouverez ces bureaux de 121.15m2 ainsi qu'une place de parking privative. Les charges mensuelles sont d'environ 690EUR elle comprennent : entretien des communs, ascenceurs, chauffage, climatisation, eau chaude. Libre de suite
                          Professionnel Publié il y a plus de 7 jours Non géolocalisée
                          Nancy
                          5

                          Ventes de bureaux à Maxéville

                          (2.6 km)
                          • Bureau - 589 m²
                          • Bureau - 589 m²

                          Bureau - 589 m²

                          820 000 € HT
                          Local Mixte Bureaux et Activités 580 m2 - Maxéville Saint Jacques II PJ Real Estate propose à la location un bâtiment mixte bureaux et activités d'environ 580 m2 au sein de la zone Saint Jacques II à Maxéville. Ce pôle économique majeur de Nancy Métropole regroupe plus de 170 entreprises et offre une excellente notoriété pour votre implantation professionnelle. Visibilité exce
                          Professionnel Publié il y a plus de 7 jours
                          Maxéville 1er étage Parking
                          • Bureau - 500 m²
                          • Bureau - 500 m²
                          • Bureau - 500 m²
                          • Bureau - 500 m²
                          • Bureau - 500 m²
                          • Bureau - 500 m² Cliquez pour voir les 7 photos

                          Bureau - 500 m²

                          850 000 € HT
                          À LOUER - BUREAUX MODERNES 500 m² - MAXÉVILLE / SAINT-JACQUES II - NANCY MÉTROPOLE PJ.Real Estate vous propose à la location un ensemble de bureaux modernes et lumineux d'environ 500 m², situé à Maxéville, au coeur de la zone d'activités Saint-Jacques II, l'un des pôles tertiaires les plus dynamiques de la métropole nancéienne. Entièrement rénovés en 2023, ces bureaux dévelop
                          Professionnel Publié il y a plus de 7 jours
                          Maxéville RDC Parking
                          • Bureau - 4 400 m²
                          • Bureau - 4 400 m²
                          • Bureau - 4 400 m²
                          • Bureau - 4 400 m²

                          Bureau - 4 400 m²

                          12 320 000 € HT
                          PJ.Real Estate vous propose à la vente des plateaux de bureaux neufs au coeur du Plateau de Haye à Maxéville, au sein d'un pôle tertiaire en plein essor, à seulement quinze minutes du centre-ville de Nancy. Cet immeuble à l'architecture bois contemporaine, d'une surface totale de 4 400 m² en R+5, offre un cadre de travail privilégié alliant performance, confort et visibilité de
                          Professionnel Publié il y a plus de 7 jours
                          Maxéville RDC Parking
                          • Bureau - 589 m²
                          • Bureau - 589 m²
                          • Bureau - 589 m²
                          • Bureau - 589 m²

                          Bureau - 589 m²

                          800 000 € HT
                          PJ.Real Estate vous propose à la vente un local mixte d'environ 580 m², situé au coeur de la zone d'activités Saint-Jacques II à Maxéville, l'un des pôles économiques majeurs de la métropole nancéienne. Ce bâtiment moderne associe atelier, bureaux, showroom et stockage. Il bénéficie d'une visibilité directe depuis l'autoroute A31, atout majeur pour valoriser votre image. Cara
                          Professionnel Publié il y a plus de 7 jours
                          Maxéville 1er étage Parking
                          • Bureau - 1 270 m²
                          • Bureau - 1 270 m²
                          • Bureau - 1 270 m²

                          Bureau - 1 270 m²

                          1 270 000 € HT
                          À VENDRE - Immeuble de bureaux 1 270 m² - Maxéville / ZAC du Champ-le-Boeuf (Zone Franche Urbaine - ZFU) PJ.Real Estate vous propose un immeuble de bureaux d'une surface totale de 1 270 m², situé au coeur de la ZAC du Champ-le-Boeuf à Maxéville. Le site bénéficie du dispositif ZFU, offrant des avantages fiscaux attractifs pour les entreprises éligibles. L'emplacement, à proxim
                          Professionnel Publié il y a plus de 7 jours
                          Maxéville RDC Parking
                          1

                          Vente de bureau à Vandoeuvre-lès-Nancy

                          (3.5 km)
                          • Bureau - 90 m²
                          • Bureau - 90 m²
                          • Bureau - 90 m²
                          • Bureau - 90 m²
                          • Bureau - 90 m²

                          Bureau - 90 m²

                          170 000 € HT
                          PJ.Real Estate vous propose à la vente des bureaux fonctionnels et lumineux d'environ 90 m², entièrement aménagés et climatisés, idéalement situés à proximité immédiate du Parc des Expositions de Vandoeuvre-lès-Nancy. PJ.Real Estate est une agence immobilière spécialisée en immobilier d'entreprise, présente en Lorraine, en Alsace et en Meurthe-et-Moselle. Ces bureaux offrent u
                          Professionnel Publié il y a plus de 7 jours
                          Vandoeuvre-lès-Nancy RDC Parking

                          Achats de bureaux à Nancy. Toutes les ventes immobilières à Nancy et aux environs.

                          Recherche en cours...
                          Rechercher dans cette zone