Appartement - 79 m² - 4 pièces à Lyon 5
favoris
522 900 €
Description :
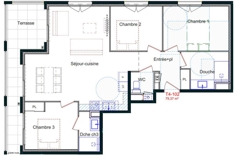
A LYON 5° au Point du Jour, je vous propose à la vente ce très beau T4 de 79,37m² avec sa terrasse de 12,17 m² dans une prochaine résidence de standing aux dernières normes comprenant : Une entrée, un séjour avec cuisine ouverte sur la terrasse, 3 chambres, deux salle d'eau et un WC. L'appartement est vendu avec une place de parking en sous sol Résidence contemporaine aux très belles prestations intérieures Bâtiment basse consommation, faibles charges Visuel non contractuel Merci de contacter votre conseiller Grégory pour plus d'informations Copropriété de 13 lots (Pas de procédure en cours). Charges annuelles : 1300 euros.
Commentaire : BSO
Afficher plus de détails
Informations sur ce bien :
L'intérieur :
-
4 pièces
-
79 m²Informations complémentairesSurface Carrez : 79 m²
Surface habitable : 79 m² -
3 Chambres
-
Cuisine américaineInformations complémentairesAméricaine
-
2 Salles d'eau
-
1 Toilette
-
Séjour de 34 m²
L'extérieur :
-
Terrasse de 12 m²
-
Parking
Les équipements :
-
Ascenseur
-
Tout à l'égout
-
Double vitrage
Autres :
-
Chauffage :Individuel, Radiateur, Gaz
-
Style :Moderne
-
Année de construction :2027
-
État :Intérieur : Excellent
-
Étage :1er étageInformations complémentairesNombre d'étages de la construction : 3
-
Nombre de niveaux :1
Copropriété :
-
Copropriété :Oui
-
Nombre de lots :13
-
Charges annuelles :1 300 €
-
Procédure :Pas de procédure en cours
Synthèse
Appartement à Lyon 5
522 900 €
Surface :
79 m²
Prix au m² :
6 619 €
Transaction :
Achat
Référence :
30930_GM
Date de publication :
Il y a plus de 7 jours
Contacter l'annonceur
Agent
AS Investimmo
Grégory CO-MINH
Mettre en avant cette annonce
Signaler une erreur
Localisation :
L'adresse exacte n'est pas renseignée. Le bien se situe dans cette zone.
Performance énergétique :
Date du diagnostic :
04 juillet 2024
Ventes d'appartements à proximité
- 167 ventes d'appartements à Tassin-la-Demi-Lune (1.8 km)
- 67 ventes d'appartements à Écully (2.4 km)
- 76 ventes d'appartements à Sainte-Foy-lès-Lyon (2.6 km)
- 2004 ventes d'appartements à Lyon (2.9 km)
- 14 ventes d'appartements à La Mulatière (3.7 km)
- 16 ventes d'appartements à Champagne-au-Mont-d'Or (4.8 km)
- 71 ventes d'appartements à Oullins (5.2 km)
- 74 ventes d'appartements à Francheville (5.3 km)
- 150 ventes d'appartements à Caluire-et-Cuire (5.4 km)