Maison - 93 m² - 5 pièces à Saint-Avold
favoris
235 000 €
Description :
Bonjour ,
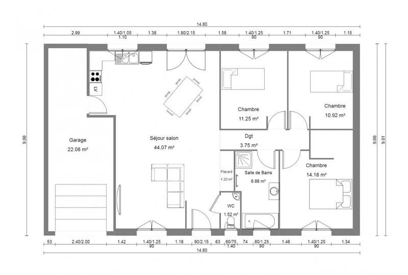
Nous vous proposons de découvrir ce projet de construction d 'une maison de plain pied avec trois chambres et un garage / les plans sont modifiables selon vos souhaits et la maison dispose d 'un chauffage réversible en climatisation pour l ' été ...;
Le terrain est viabilisé et le projet se situe à proximité des commerces et accès routiers rapides .
Afficher plus de détails
Informations sur ce bien :
L'intérieur :
-
5 pièces
-
93 m²Informations complémentairesSurface habitable : 93 m²
-
3 Chambres
-
Séjour de 40 m²
L'extérieur :
-
Garage
Synthèse
Maison à Saint-Avold
235 000 €
Surface :
93 m²
Prix au m² :
2 527 €
Transaction :
Neuf
Référence :
c880
Date de publication :
Il y a plus de 7 jours
Contacter l'annonceur
Agent
PIERRE & CREATION
Claude GULDNER
Mettre en avant cette annonce
Signaler une erreur
Localisation :
L'adresse exacte n'est pas renseignée. Le bien se situe dans cette zone.
Ventes de maisons à proximité
- 8 ventes de maisons à Valmont (2.4 km)
- 11 ventes de maisons à Folschviller (3.5 km)
- 4 ventes de maisons à Lachambre (3.9 km)
- 20 ventes de maisons à Longeville-lès-Saint-Avold (4.3 km)
- 2 ventes de maisons à Laudrefang (5.1 km)
- 7 ventes de maisons à Macheren (5.2 km)
- 32 ventes de maisons à Hombourg-Haut (5.6 km)
- 5 ventes de maisons à Teting-sur-Nied (5.9 km)
- 16 ventes de maisons à L'Hôpital (6.5 km)