Maison - 93 m² - 5 pièces à Diesen
favoris
230 000 €
Description :
Bonjour ,
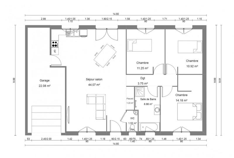
Nous vous proposons ce projet de construction d 'une maison de plain pied avec trois chambres , un garage et un cellier dans un petit lotissement situé à quelques minutes des commerces et des écoles .
La maison est équipée d 'un chauffage par le sol , les carrelages , sanitaires et faïences murales sont compris dans le tarif proposé / les plans sont modifiables selon vos souhaits
Afficher plus de détails
Informations sur ce bien :
L'intérieur :
-
5 pièces
-
93 m²Informations complémentairesSurface habitable : 93 m²
-
3 Chambres
-
Séjour de 40 m²
L'extérieur :
-
Garage
Autres :
-
Chauffage :Aérothermie
-
Nombre de niveaux :1
Synthèse
Maison à Diesen
230 000 €
Surface :
93 m²
Prix au m² :
2 473 €
Transaction :
Neuf
Référence :
c717
Date de publication :
Il y a plus de 7 jours
Contacter l'annonceur
Agent
PIERRE & CREATION
Claude GULDNER
Mettre en avant cette annonce
Signaler une erreur
Localisation :
L'adresse exacte n'est pas renseignée. Le bien se situe dans cette zone.
Ventes de maisons à proximité
- 23 ventes de maisons à Ham-sous-Varsberg (2.3 km)
- 14 ventes de maisons à Porcelette (2.8 km)
- 9 ventes de maisons à Carling (2.9 km)
- 60 ventes de maisons à Creutzwald (3.4 km)
- 8 ventes de maisons à Varsberg (3.5 km)
- 10 ventes de maisons à Guerting (4.4 km)
- 23 ventes de maisons à L'Hôpital (4.5 km)
- 2 ventes de maisons à Bisten-en-Lorraine (5.7 km)
- 15 ventes de maisons à Falck (6.1 km)