• Appartement - 19 m² - 1 pièce
  • Appartement - 19 m² - 1 pièce
  • Appartement - 19 m² - 1 pièce
124 167 €
19 m²
1 pièce
1 chambre

Description :

Au cœur du centre historique de la rive droite de Rouen, à 10 minutes à pieds de la gare SNCF, ce programme de logements neufs en construction nouvelle (bât E,C, & I), et en réhabilitation rénovation complète (bât F,G & J), propose une large gamme d'appartements satisfaisant tous types de demandes: (voir plan de masse annexé à l'annonce).

Livraison prévue: 4e trimestre 2026

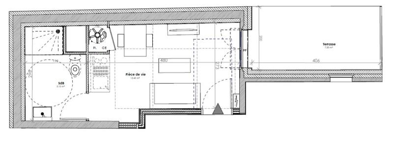
Ce studio situé en rez-de-chaussée du bât F exposé nord, propose une pièce de vie séjour/cuisine de 13.45 m2, et une salle de douche comprenant le wc.

Une terrasse fermées et privative de 7.20 m2 complète ce bien en prolongation directe du séjour.

Possibilité de place de parking en sous-sol sécurisé en sus : me contacter.

D'autres lots allant du studio au 4 pièces sont encore disponibles, permettant de réaliser un investissement en déficit foncier pendant 10 ans pour de la location nue ou en logements neufs classiques.
Renseignements sur simple appel téléphonique.

L'acquisition d'un bien neuf en VEFA (vente en l'état futur d'achèvement), qui retient votre attention, débute par la signature d'un contrat de réservation que je suis en mesure de vous fournir. Cela évite par ailleurs, son achat éventuel par un candidat acquéreur plus réactif.

Toute candidature à l'achat sera soumise à la présentation d'un plan de financement solide.
Les informations sur les risques auxquels ce bien est exposé sont disponibles sur le site Géorisques : www. georisques. gouv. fr.

Réseau Immobilier CAPIFRANCE - Votre agent commercial (RSAC N°320 483 217 - Greffe de ROUEN) Thierry DUGAT Entrepreneur Individuel 06 60 60 40 10 - Réf.304121

Afficher plus de détails

Informations sur ce bien :

L'intérieur :

  • 1 pièce
  • 19 m²
    Informations complémentaires
    Surface habitable : 19 m²
  • 1 Chambre
  • 1 Salle d'eau

Autres :

  • Exposition :
    Nord
  • Étage :
    RDC

Copropriété :

  • Copropriété :
    Oui
Synthèse
Appartement à Rouen
124 167 €
Surface : 19 m²
Prix au m² : 6 535 €
Transaction :
Achat
Référence :
340934163764
Date de publication :
Il y a plus de 7 jours
Appartement - 19 m² - 1 pièce
Agent
CAPIFRANCE
CAPIFRANCE
Monsieur Thierry DUGAT
Appeler
Écrire
Mettre en avant cette annonce
Signaler une erreur

Localisation :

Performance énergétique :

Bien non soumis au Diagnostic de Performance Énergétique (DPE)

Annonces similaires
Annonces immobilières récentes