Retour
Rechercher
Lieu
Où ?
    Type de bien
    Quel type de projet ?
    Particulier Entreprise
    Quel type de bien ?
        Prix
        Quel budget ?
              Surface
              Quelle surface ?
                    Pièces
                    Combien de pièces ?
                      Combien de chambres ?
                          1

                          Vente d'appartement et de maison à Reichsfeld

                          Recherche 1
                          Carte
                          • Maison - 79 m² - 4 pièces
                          • Maison - 79 m² - 4 pièces
                          • Maison - 79 m² - 4 pièces
                          • Maison - 79 m² - 4 pièces
                          • Maison - 79 m² - 4 pièces
                          • Maison - 79 m² - 4 pièces Cliquez pour voir les 13 photos

                          Maison - 79 m² - 4 pièces

                          45 000 €
                          OPPORTUNITE RARE ! Investissez sur le long terme grâce à cette maison située au cœur du vignoble de Reichsfeld. Vendue avec réserve d'usufruit viager, cette maison de ville semi-mitoyenne comprend : - au rez-de-chaussée surélevé (62 m², loggia comprise) : une entrée, une salle à manger, une cuisine, une loggia, un dégagement et une salle de bain avec WC, - à l'étage (36 m²) :
                          Professionnel Publié il y a plus de 7 jours
                          Reichsfeld 3 ch 1 sdb Parking
                          5

                          Ventes d'appartements et de maisons à Andlau

                          (3.3 km)
                          • Maison traditionnelle - 258 m² - 7 pièces
                          • Maison traditionnelle - 258 m² - 7 pièces
                          • Maison traditionnelle - 258 m² - 7 pièces
                          • Maison traditionnelle - 258 m² - 7 pièces
                          • Maison traditionnelle - 258 m² - 7 pièces
                          • Maison traditionnelle - 258 m² - 7 pièces Cliquez pour voir les 15 photos

                          Maison traditionnelle - 258 m² - 7 pièces

                          238 500 €
                          Maison de caractère à Andlau ! Offrez-vous une maison où les murs en pierre de taille apparente et la charpente en bois brut s'associent pour créer une atmosphère chaleureuse et authentique. Cette demeure de 200 m², bénéficie de nombreuses ouvertures qui inondent les espaces d'une belle luminosité naturelle dans un style typiquement alsacien.  Au premier niveau, découvrez tro
                          Professionnel Publié il y a plus de 7 jours Non géolocalisée
                          Andlau Parking
                          • Maison - 168 m² - 7 pièces
                          • Maison - 168 m² - 7 pièces
                          • Maison - 168 m² - 7 pièces
                          • Maison - 168 m² - 7 pièces
                          • Maison - 168 m² - 7 pièces
                          • Maison - 168 m² - 7 pièces Cliquez pour voir les 14 photos

                          Maison - 168 m² - 7 pièces

                          267 800 €
                          A Andlau, cette très jolie maison en pierre de grès atypique d'une superficie de 184 m² dispose de plusieurs atouts : - Beaux volumes - 5 chambres - Bel espace de stockage de 32 m² (atelier, cave..) - Poêle à bois - La maison est en très bon état - Un espace extérieur (cour) - Stationnement La maison est agencée de la façon suivante : Au rez-de-chaussée : une entrée sp
                          Professionnel Publié il y a plus de 7 jours
                          Andlau 5 ch Parking
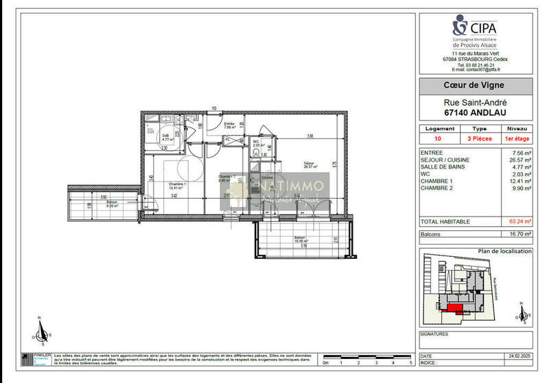
                          • Maison - 145 m² - 8 pièces
                          • Maison - 145 m² - 8 pièces
                          • Maison - 145 m² - 8 pièces
                          • Maison - 145 m² - 8 pièces
                          • Maison - 145 m² - 8 pièces
                          • Maison - 145 m² - 8 pièces Cliquez pour voir les 19 photos

                          Maison - 145 m² - 8 pièces

                          248 850 €
                          Une maison pleine de potentiel, à réinventer selon vos envies, dans un cadre bucolique en bordure de rivière, avec une vue imprenable sur l'église d'Andlau, charmant village viticole niché au pied du massif vosgien. Cette maison individuelle de 145 m² habitables s'étend sur un terrain de 454 m², et séduit par sa véranda exposée sud-ouest et ses multiples possibilités d'aménage
                          Professionnel Publié il y a plus de 7 jours
                          Andlau 5 ch 1 sdb Terrasse Balcon Parking
                          • Maison de village - 128 m² - 6 pièces
                          • Maison de village - 128 m² - 6 pièces
                          • Maison de village - 128 m² - 6 pièces
                          • Maison de village - 128 m² - 6 pièces
                          • Maison de village - 128 m² - 6 pièces
                          • Maison de village - 128 m² - 6 pièces Cliquez pour voir les 19 photos

                          Maison de village - 128 m² - 6 pièces

                          185 900 €
                          Votre conseiller immobilier 3%.com, Olivier Lemaire joignable au 06 61 88 24 44, vous propose une typique et chaleureuse maison alsacienne de 6 pièces au coeur d'ANDLAU sur une parcelle de 242m2. Emplacement interessant pour cette maison de près de 130 m2 sur 3 niveaux à proximité de l'école et des commerces. Vous découvrirez :--- Au rez-de-chaussée :une entrée, un wc, plusieur
                          Professionnel Publié il y a plus de 7 jours Non géolocalisée
                          Andlau 4 ch 2 sdb Parking
                          • Maison de village - 169 m² - 6 pièces
                          • Maison de village - 169 m² - 6 pièces
                          • Maison de village - 169 m² - 6 pièces
                          • Maison de village - 169 m² - 6 pièces
                          • Maison de village - 169 m² - 6 pièces
                          • Maison de village - 169 m² - 6 pièces Cliquez pour voir les 21 photos

                          Maison de village - 169 m² - 6 pièces

                          267 800 €
                          Votre conseiller immobilier 3%.com, Olivier Lemaire joignable au 06 61 88 24 44, vous propose une belle maison ancienne et chaleureuse de 7 pièces au coeur d'ANDLAU. Emplacement idéal pour cette maison de 169m2 sur 3 niveaux.à proximité de l'école et des commerces Vous découvrirez :--- Au rez-de-chaussée :1 entrée de 24m2 avec poêle à bois pouvant servir d'espace de réception,
                          Professionnel Publié il y a plus de 7 jours Non géolocalisée
                          Andlau 3 ch 2 sdb Terrasse Parking
                          1

                          Vente d'appartement et de maison à Blienschwiller

                          (3.8 km)
                          • Maison - 193 m² - 7 pièces
                          • Maison - 193 m² - 7 pièces
                          • Maison - 193 m² - 7 pièces
                          • Maison - 193 m² - 7 pièces
                          • Maison - 193 m² - 7 pièces
                          • Maison - 193 m² - 7 pièces Cliquez pour voir les 22 photos

                          Maison - 193 m² - 7 pièces

                          548 000 €
                          Spacieuse maison familiale avec APPARTEMENT/GITE indépendant - Blienschwiller Située au coeur du vignoble, dans un quartier résidentiel paisible, nous vous invitons à découvrir cette magnifique maison contemporaine des années 2000. Elle offre 193m² habitables complétés par un appartement indépendant d'environ 30m², le tout sur un terrain arboré de 10,5ares. Le hall d'entrée m
                          Professionnel Publié il y a plus de 7 jours
                          Blienschwiller 5 ch 2 sdb Terrasse Balcon Parking
                          1

                          Vente d'appartement et de maison à Saint-Pierre-Bois

                          (4.2 km)
                          • Maison traditionnelle - 111 m² - 5 pièces
                          • Maison traditionnelle - 111 m² - 5 pièces
                          • Maison traditionnelle - 111 m² - 5 pièces
                          • Maison traditionnelle - 111 m² - 5 pièces
                          • Maison traditionnelle - 111 m² - 5 pièces
                          • Maison traditionnelle - 111 m² - 5 pièces Cliquez pour voir les 14 photos

                          Maison traditionnelle - 111 m² - 5 pièces

                          156 600 €
                          À Saint-Pierre-Bois (Hohwarth), nous vous proposons de découvrir cette charmante maison à rénover de 110m² habitables, implantée sur un terrain de 345m². Vous découvrirez une maison avec un superbe potentiel, sa terrasse avec vue sur les montagnes et son jardinet en contrebas.. La maison développe 2 niveaux d'habitation et se décompose comme suit : REZ-DE-CHAUSSÉE (plus de 70m
                          Professionnel Publié il y a plus de 7 jours
                          Saint-Pierre-Bois 2 ch 1 sdb Terrasse Parking
                          1

                          Vente d'appartement et de maison à Thanvillé

                          (5.5 km)
                          • Maison - 105 m² - 6 pièces
                          • Maison - 105 m² - 6 pièces
                          • Maison - 105 m² - 6 pièces
                          • Maison - 105 m² - 6 pièces
                          • Maison - 105 m² - 6 pièces
                          • Maison - 105 m² - 6 pièces Cliquez pour voir les 11 photos

                          Maison - 105 m² - 6 pièces

                          185 000 €
                          À saisir ! Charmante Maison de Village à rénover, maison 6 pièces d'une surface d'environ 105m2 habitable disposant également d'une grande dépendance et d'un comble le tout sur 7.04 ares de terrain constructible. La maison se compose au RDC d'une entrée, un couloir, une salle à manger, un séjour, une cuisine et une salle d'eau avec wc. L'étage dispose de quatre chambres, dont u
                          Professionnel Publié il y a plus de 7 jours Non géolocalisée
                          Thanvillé 4 ch 1 sdb Parking
                          9

                          Ventes d'appartements et de maisons au Hohwald

                          (5.7 km)
                          • Maison traditionnelle - 148 m² - 5 pièces
                          • Maison traditionnelle - 148 m² - 5 pièces
                          • Maison traditionnelle - 148 m² - 5 pièces

                          Maison traditionnelle - 148 m² - 5 pièces

                          296 800 €
                          Exclusivité Votre agence immobilière: Natimmo 8 rue de l'Hôpital 67140 Barr 06 41 79 70 70 À vendre au Hohwald, Vous aimez la nature? Cette maison est faite pour vous. Charmante maison de 148m² offrant un cadre de vie idéal et une vue à couper le souffle. Cette propriété lumineuse et spacieuse se compose de 5 pièces chaleureuses. Belles baies vitrées. Au rdc avec une entrée in
                          Professionnel Publié il y a plus de 7 jours Non géolocalisée
                          Le Hohwald 3 ch Parking
                          • Maison - 80 m² - 4 pièces
                          • Maison - 80 m² - 4 pièces
                          • Maison - 80 m² - 4 pièces
                          • Maison - 80 m² - 4 pièces
                          • Maison - 80 m² - 4 pièces
                          • Maison - 80 m² - 4 pièces Cliquez pour voir les 16 photos

                          Maison - 80 m² - 4 pièces

                          310 000 €
                          Maison individuelle 5 pièces – 80 m² habitables (95 m² au sol) sur un terrain de 13,55 ares – Le Hohwald Maison coup de cœur entièrement rénovée en 2022 – Calme, nature et confort moderne Découvrez cette charmante maison individuelle, idéalement située dans le cadre paisible et verdoyant du Hohwald. Rénovée en 2022 avec des matériaux de qualité, elle offre tout le confort mo
                          Professionnel Publié il y a plus de 7 jours Non géolocalisée
                          Le Hohwald Terrasse
                          • Maison - 80 m² - 4 pièces
                          • Maison - 80 m² - 4 pièces
                          • Maison - 80 m² - 4 pièces
                          • Maison - 80 m² - 4 pièces
                          • Maison - 80 m² - 4 pièces
                          • Maison - 80 m² - 4 pièces Cliquez pour voir les 16 photos

                          Maison - 80 m² - 4 pièces

                          310 000 €
                          🏡 Maison individuelle 5 pièces – 80 m² habitables (95 m² au sol) sur un terrain de 13,55 ares – Le Hohwald Maison coup de cœur entièrement rénovée en 2022 – Calme, nature et confort moderne Découvrez cette charmante maison individuelle, idéalement située dans le cadre paisible et verdoyant du Hohwald. Rénovée en 2022 avec des matériaux de qualité, elle offre tout le confort
                          Professionnel Publié il y a plus de 7 jours Non géolocalisée
                          Le Hohwald Terrasse Parking
                          • Maison - 80 m² - 4 pièces
                          • Maison - 80 m² - 4 pièces
                          • Maison - 80 m² - 4 pièces
                          • Maison - 80 m² - 4 pièces
                          • Maison - 80 m² - 4 pièces
                          • Maison - 80 m² - 4 pièces Cliquez pour voir les 22 photos

                          Maison - 80 m² - 4 pièces

                          310 000 €
                          Nouveauté au Hohwald, pour les amoureux de la nature Petit coin de paradis dans son écrin de verdure au calme d'une impasse Maison 4 / 5 pièces de 80m² entièrement rénovée en 2021 le tout sur 13.55 ares de terrain arboré. Vous serez séduit par son beau volume de vie au plafond cathédral, largement ouvert sur la nature grâce à ses grandes baies vitrées et sa terrasse XXL qui l
                          Professionnel Publié il y a plus de 7 jours
                          Le Hohwald 2 ch 1 sdb Terrasse Parking
                          • Appartement - 26 m² - 1 pièce
                          • Appartement - 26 m² - 1 pièce
                          • Appartement - 26 m² - 1 pièce
                          • Appartement - 26 m² - 1 pièce
                          • Appartement - 26 m² - 1 pièce
                          • Appartement - 26 m² - 1 pièce Cliquez pour voir les 7 photos

                          Appartement - 26 m² - 1 pièce

                          79 860 €
                          À vendre, charmant appartement T1 meublé de 26 m², situé au rez-de-chaussée d'un bel immeuble de caractère datant de 1860. Entièrement rénové en 2023 avec des matériaux de qualité, ce bien offre de belles prestations et un cadre de vie agréable, alliant cachet de l'ancien et confort moderne. L'appartement se compose de : Une pièce principale lumineuse avec espace salon et coi
                          Professionnel Publié il y a plus de 7 jours Non géolocalisée
                          Le Hohwald 1 sdb RDC Parking
                          5

                          Ventes d'appartements et de maisons à Dambach-la-Ville

                          (5.8 km)
                          • Maison - 126 m² - 7 pièces
                          • Maison - 126 m² - 7 pièces
                          • Maison - 126 m² - 7 pièces
                          • Maison - 126 m² - 7 pièces
                          • Maison - 126 m² - 7 pièces
                          • Maison - 126 m² - 7 pièces Cliquez pour voir les 14 photos

                          Maison - 126 m² - 7 pièces

                          349 800 €
                          En exclusivité DAMBACH-LA-VILLE Découvrez cette belle maison d'environ 126 m2 habitables, située sur un terrain de 739 m2, dans un quartier très calme offrant une vue imprenable sur les vignes. Au rez-de-chaussée, elle se compose de : une entrée, un salon et une salle à manger, une chambre, une salle de bains avec WC, une cuisine donnant accès à l'arrière de la maison, i
                          Professionnel Publié le 06 janv. à 00:32 Non géolocalisée
                          Dambach-la-Ville 5 ch 1 sdb Parking
                          • Maison - 105 m² - 4 pièces
                          • Maison - 105 m² - 4 pièces
                          • Maison - 105 m² - 4 pièces
                          • Maison - 105 m² - 4 pièces
                          • Maison - 105 m² - 4 pièces
                          • Maison - 105 m² - 4 pièces Cliquez pour voir les 11 photos

                          Maison - 105 m² - 4 pièces

                          220 500 €
                          ? Maison récente en clos couvert - à personnaliser selon vos envies Située au coeur du charmant village viticole de Dambach-la-Ville, à proximité immédiate des commerces, des écoles et bénéficiant d'un cadre verdoyant et paisible, cette maison récente offre un fort potentiel d'aménagement. Édifiée en clos couvert, elle vous permettra de concevoir un intérieur sur mesure : - P
                          Professionnel Publié il y a plus de 7 jours
                          Dambach-la-Ville 2 ch Terrasse Parking
                          • Appartement - 67 m² - 3 pièces
                          • Appartement - 67 m² - 3 pièces
                          • Appartement - 67 m² - 3 pièces
                          • Appartement - 67 m² - 3 pièces
                          • Appartement - 67 m² - 3 pièces
                          • Appartement - 67 m² - 3 pièces Cliquez pour voir les 17 photos

                          Appartement - 67 m² - 3 pièces

                          231 000 €
                          À VENDRE – Superbe appartement 3 pièces à Dambach-la-Ville (à 5 min de Sélestat) Situé dans un environnement calme et verdoyant, au sein d'une résidence récente et parfaitement entretenue (2014), venez découvrir ce bel appartement 3 pièces, niché au dernier étage avec ascenseur. Lumineux, moderne et sans aucun travaux à prévoir, il offre un cadre de vie confortable et soigné, i
                          Professionnel Publié il y a plus de 7 jours
                          Dambach-la-Ville 2 ch 1 sdb Parking
                          • Studio - 29 m² - 1 pièce
                          • Studio - 29 m² - 1 pièce
                          • Studio - 29 m² - 1 pièce
                          • Studio - 29 m² - 1 pièce
                          • Studio - 29 m² - 1 pièce
                          • Studio - 29 m² - 1 pièce Cliquez pour voir les 11 photos

                          Studio - 29 m² - 1 pièce

                          114 500 €
                          Situé au rez-de-chaussée d'une maison alsacienne entièrement rénovée avec goût, ce studio de 29 m² allie modernité et authenticité. Il se compose de : Une pièce de vie avec espace nuit et une cuisine équipée moderne et fonctionnelle Une salle d'eau avec WC Un espace bien-être niché dans la cour, composé de 2 espaces distinct, dans un comprenant un jacuzzi privé avec douche et
                          Professionnel Publié il y a plus de 7 jours
                          Dambach-la-Ville 1 sdb RDC Terrasse
                          • Duplex - 87 m² - 5 pièces
                          • Duplex - 87 m² - 5 pièces
                          • Duplex - 87 m² - 5 pièces
                          • Duplex - 87 m² - 5 pièces
                          • Duplex - 87 m² - 5 pièces
                          • Duplex - 87 m² - 5 pièces Cliquez pour voir les 17 photos

                          Duplex - 87 m² - 5 pièces

                          299 000 €
                          Découvrez ce magnifique appartement triplex situé au 1er étage d'une maison de village typiquement alsacienne, entièrement rénovée avec des matériaux de qualité et un style moderne et raffiné. Ce bien atypique et plein de caractère offre de beaux volumes et une atmosphère chaleureuse. Disposition : Rez-de-chaussée : Une entrée accueillante, une spacieuse pièce de vie lumineuse
                          Professionnel Publié il y a plus de 7 jours
                          Dambach-la-Ville 2 ch 2 sdb 1er étage
                          12

                          Ventes d'appartements et de maisons à Epfig

                          (6.1 km)
                          • Maison - 243 m² - 6 pièces
                          • Maison - 243 m² - 6 pièces
                          • Maison - 243 m² - 6 pièces
                          • Maison - 243 m² - 6 pièces
                          • Maison - 243 m² - 6 pièces
                          • Maison - 243 m² - 6 pièces Cliquez pour voir les 12 photos

                          Maison - 243 m² - 6 pièces

                          648 900 €
                          ? À vendre à Epfig - Authentique corps de ferme rénové de 1758 - 243 m² habitables - Terrain de 1 595 m² - Charme, confort & potentiel Nichée au coeur du pittoresque village d'Epfig, cette magnifique propriété datant de 1758 vous séduira par son cachet historique, sa rénovation de qualité, et surtout, son vaste jardin paysager propice à la détente et aux projets. ? Un cadre d
                          Professionnel Publié il y a plus de 7 jours Non géolocalisée
                          Epfig 4 ch 2 sdb Parking Exposition Sud
                          • Maison - 122 m² - 6 pièces
                          • Maison - 122 m² - 6 pièces
                          • Maison - 122 m² - 6 pièces
                          • Maison - 122 m² - 6 pièces
                          • Maison - 122 m² - 6 pièces
                          • Maison - 122 m² - 6 pièces Cliquez pour voir les 9 photos

                          Maison - 122 m² - 6 pièces

                          522 000 €
                          Maison neuve haut de gamme livrée début 2025 avec assurance dommage ouvrage, 122 m², 6 pièces, un grand sous-sol avec double garage, une grande terrasse avec une vue dégagée à 180° sur un terrain de 4,07 ares. Au RdC vous y trouverez une belle et grande cuisine, un salon, un beau coin repas, un bureau, une salle d'eau et lingerie, un rangement ainsi qu'un WC séparé. A l'étage
                          Professionnel Publié il y a plus de 7 jours
                          Epfig Parking
                          • Maison ancienne - 232 m² - 8 pièces
                          • Maison ancienne - 232 m² - 8 pièces
                          • Maison ancienne - 232 m² - 8 pièces
                          • Maison ancienne - 232 m² - 8 pièces
                          • Maison ancienne - 232 m² - 8 pièces
                          • Maison ancienne - 232 m² - 8 pièces Cliquez pour voir les 6 photos

                          Maison ancienne - 232 m² - 8 pièces

                          167 400 €
                          Située à Epfig, village viticole entre Sélestat et Obernai, cette maison de 232 m² à rénover entièrement offre un fort potentiel pour un projet de rénovation ambitieux (résidence principale, investissement locatif, gîtes ). Elle se compose de : Une maison principale de 232 m² sur deux niveaux, à rénover intégralement (toiture incluse) Une grange indépendante de 268 m², idéal
                          Professionnel Publié il y a plus de 7 jours
                          Epfig 4 ch 1 sdb Parking
                          • Maison - 96 m² - 5 pièces
                          • Maison - 96 m² - 5 pièces
                          • Maison - 96 m² - 5 pièces
                          • Maison - 96 m² - 5 pièces
                          • Maison - 96 m² - 5 pièces
                          • Maison - 96 m² - 5 pièces Cliquez pour voir les 9 photos

                          Maison - 96 m² - 5 pièces

                          355 000 €
                          POUR INVESTISSEURS - A EPFIG rue Sainte Marguerite, sur un magnifique terrain jouissant d'une orientation plein SUD avec vue dégagée sur les champs et les Vosges, nous vous proposons une maison de 96 m2 habitables et 105 m2 au sol. Vous serez séduits par son calme et son environnement. La maison propose un bel espace de vie, spacieux et lumineux de 40 m2 comprenant une belle cu
                          Professionnel Publié il y a plus de 7 jours Non géolocalisée
                          Epfig 3 ch 2 sdb Terrasse Parking Exposition Sud
                          • Maison ancienne - 120 m² - 3 pièces
                          • Maison ancienne - 120 m² - 3 pièces
                          • Maison ancienne - 120 m² - 3 pièces
                          • Maison ancienne - 120 m² - 3 pièces
                          • Maison ancienne - 120 m² - 3 pièces
                          • Maison ancienne - 120 m² - 3 pièces Cliquez pour voir les 11 photos

                          Maison ancienne - 120 m² - 3 pièces

                          89 000 €
                          Sous compromis : Au coeur du vignoble Alsacien et de la route des vins, à Epfig ! Enorme potentiel que cette grange de 120 m² d'emprise au sol ( 9m de hauteur sous toiture) sur une terrain clos de 2, 11 ares à aménager et rénover. Très belle superficie et nombreuses possibilités (loft, duplex, triplex, appartements, ...), libre de création et qui n'aura pour limite que votre i
                          Professionnel Publié il y a plus de 7 jours
                          Epfig Parking
                          10

                          Ventes d'appartements et de maisons à Villé

                          (6.4 km)
                          • Appartement - 40 m² - 1 pièce
                          • Appartement - 40 m² - 1 pièce
                          • Appartement - 40 m² - 1 pièce
                          • Appartement - 40 m² - 1 pièce

                          Appartement - 40 m² - 1 pièce

                          71 000 €
                          À saisir : studio en rez-de-jardin entièrement rénové, dans une petite copropriété de 4 logements, situé en lisière de forêt, à quelques minutes à pied du centre de Villé. Ce studio offre une pièce de vie principale avec coin cuisine, très lumineuse grâce à une baie vitrée donnant sur une spacieuse terrasse et sur ces emplacements de stationnement privatif. Il comprend égalemen
                          Professionnel Publié il y a plus de 7 jours Non géolocalisée
                          Villé 1 sdb RDC Terrasse Parking Exposition Sud
                          • Appartement - 88 m² - 4 pièces
                          • Appartement - 88 m² - 4 pièces
                          • Appartement - 88 m² - 4 pièces
                          • Appartement - 88 m² - 4 pièces
                          • Appartement - 88 m² - 4 pièces

                          Appartement - 88 m² - 4 pièces

                          316 578 €
                          Opportunité à saisir à Villé! À Vendre : Appartement 4 Pièces de Standing – Vous avez envie d'un appartement créé spécialement pour vous? Je vous invite à découvrir ce élégant 4 pièces de 88.60m² au 1e étage d'un immeuble récent avec ascenseur, offrant tout le confort moderne pour un quotidien agréable et fonctionnel disponible au dernier trimestre 2026. Caractéristiques : S
                          Professionnel Publié il y a plus de 7 jours Non géolocalisée
                          Villé 3 ch 1 sdb 1er étage Balcon
                          • Appartement - 62 m² - 3 pièces
                          • Appartement - 62 m² - 3 pièces
                          • Appartement - 62 m² - 3 pièces
                          • Appartement - 62 m² - 3 pièces
                          • Appartement - 62 m² - 3 pièces

                          Appartement - 62 m² - 3 pièces

                          245 247 €
                          Opportunité à saisir à Villé! À Vendre : Appartement 3 Pièces de Standing – Vous avez envie d'un appartement créé spécialement pour vous? Je vous invite à découvrir ce élégant 3 pièces de 62.12 m²au sol situé au 3e étage d'un immeuble récent avec ascenseur, offrant tout le confort moderne pour un quotidien agréable et fonctionnel disponible au dernier trimestre 2026. Caracté
                          Professionnel Publié il y a plus de 7 jours Non géolocalisée
                          Villé 2 ch 1 sdb Dernier étage Balcon
                          • Maison ancienne - 216 m² - 7 pièces
                          • Maison ancienne - 216 m² - 7 pièces
                          • Maison ancienne - 216 m² - 7 pièces
                          • Maison ancienne - 216 m² - 7 pièces
                          • Maison ancienne - 216 m² - 7 pièces
                          • Maison ancienne - 216 m² - 7 pièces Cliquez pour voir les 24 photos

                          Maison ancienne - 216 m² - 7 pièces

                          399 000 €
                          ? COUP DE COEUR à Villé (67220) - Spacieuse maison de 216 m² sur 17 ares de verdure ! Vous rêvez d'espace, de tranquillité et de nature ?Découvrez en co-exclusivité cette belle maison familiale idéalement située dans un quartier résidentiel calme de Villé, sur un magnifique terrain arboré de plus de 17 ares, sans vis-à-vis et avec un accès direct à la campagne ! ?? ? Les points
                          Professionnel Publié il y a plus de 7 jours
                          Villé 5 ch 2 sdb Balcon Parking Exposition Sud
                          • Appartement - 45 m² - 2 pièces
                          • Appartement - 45 m² - 2 pièces
                          • Appartement - 45 m² - 2 pièces
                          • Appartement - 45 m² - 2 pièces
                          • Appartement - 45 m² - 2 pièces

                          Appartement - 45 m² - 2 pièces

                          184 511 €
                          Opportunité à saisir à Villé! À Vendre : Appartement 2 Pièces de Standing – Vous avez envie d'un appartement créé spécialement pour vous? Je vous invite à découvrir ce élégant 2 pièces de 49.76 m²au sol situé au 3e étage d'un immeuble récent avec ascenseur, offrant tout le confort moderne pour un quotidien agréable et fonctionnel disponible au dernier trimestre 2026. Caractér
                          Professionnel Publié il y a plus de 7 jours Non géolocalisée
                          Villé 1 ch 1 sdb Dernier étage
                          68

                          Ventes d'appartements et de maisons à Barr

                          (6.7 km)
                          • Maison - 155 m² - 7 pièces
                          • Maison - 155 m² - 7 pièces
                          • Maison - 155 m² - 7 pièces
                          • Maison - 155 m² - 7 pièces
                          • Maison - 155 m² - 7 pièces
                          • Maison - 155 m² - 7 pièces Cliquez pour voir les 12 photos

                          Maison - 155 m² - 7 pièces

                          159 800 €
                          Maison de ville à vendre à Barr. Au centre ville de Barr, cette maison pittoresque de 155m2 dispose de deux entrées indépendantes permettant de créer deux appartements le cas échéant. Elle est aménagée de la façon suivante : - Une entrée - Un grand palier - Un WC - Une cuisine meublée - Un salon -Une salle à manger. A l'étage : - Une entrée (avec un accès extérieur). - Un WC _
                          Professionnel Publié le 08 janv. à 05:41 Non géolocalisée
                          Barr 5 ch 2 sdb Parking
                          • Maison traditionnelle - 115 m² - 4 pièces
                          • Maison traditionnelle - 115 m² - 4 pièces
                          • Maison traditionnelle - 115 m² - 4 pièces
                          • Maison traditionnelle - 115 m² - 4 pièces
                          • Maison traditionnelle - 115 m² - 4 pièces
                          • Maison traditionnelle - 115 m² - 4 pièces Cliquez pour voir les 12 photos

                          Maison traditionnelle - 115 m² - 4 pièces

                          430 000 €
                          À vendre - Maison individuelle neuve 114,67 m² - Barr (67140) Maison individuelle neuve (2025) située à Barr, dans un secteur calme et agréable. D'une surface habitable de 114,67 m², elle offre des prestations modernes et une excellente performance énergétique. La maison dispose d'un chauffage par pompe à chaleur avec plancher chauffant, assurant un confort optimal toute l'an
                          Professionnel Publié le 07 janv. à 06:08 Non géolocalisée
                          Barr 3 ch 2 sdb Terrasse Parking
                          • Maison - 105 m² - 5 pièces
                          • Maison - 105 m² - 5 pièces

                          Maison - 105 m² - 5 pièces

                          365 000 €
                          Barr, dernière opportunité ! Sur un terrain de 4.42 ares, proche toutes commodités, Maison 5 pièces de 105 m². Nous vous proposons cette maison de standing garante d'un confort moderne au quotidien et répondant aux exigences strictes en matière d'habitat : - Garage avec rangement de 25.60 m² - Volume de vie esprit Loft avec accès de plain-pied sur jardin orienté Sud-Est via ma
                          Professionnel Publié le 06 janv. à 09:06
                          Barr Parking
                          • Appartement - 66 m² - 3 pièces
                          • Appartement - 66 m² - 3 pièces
                          • Appartement - 66 m² - 3 pièces

                          Appartement - 66 m² - 3 pièces

                          259 900 €
                          Appartement 3 pièces situé dans un quartier calme et recherché de barr. Le bien se trouve dans un petit immeuble contemporain, à taille humaine. Il est composé d'une grande pièce de vie lumineuse, de deux chambres, d'une salle de bain avec possibilité de baignoire ou douche à l'italienne, et de wc suspendus. Prestations intérieures : carrelage grand format 60x60 dans les pièc
                          Professionnel Publié il y a plus de 7 jours Non géolocalisée
                          Barr 2 ch 1 sdb 1er étage Balcon
                          • Appartement - 68 m² - 3 pièces
                          • Appartement - 68 m² - 3 pièces
                          • Appartement - 68 m² - 3 pièces
                          • Appartement - 68 m² - 3 pièces
                          • Appartement - 68 m² - 3 pièces
                          • Appartement - 68 m² - 3 pièces Cliquez pour voir les 9 photos

                          Appartement - 68 m² - 3 pièces

                          286 200 €
                          Votre agence immobilière Natimmo, située 8 rue de l'Hôpital à Barr (67140), vous propose en exclusivité. Magnifique appartement 3 pièces en rez-de-jardin, construit en 2016 par le promoteur TFP Immobilier, dans un quartier très calme sur les hauteurs de Barr. Le bien dispose d'une spacieuse terrasse de 62 m², d'un jardin privatif entièrement clos de 165 m², agrémenté d'une pis
                          Professionnel Publié il y a plus de 7 jours Non géolocalisée
                          Barr 2 ch 1 sdb RDC Parking

                          Achat d'appartements ou de maisons à Reichsfeld. Toutes les ventes immobilières à Reichsfeld et aux environs. Appartement et maison à vendre.

                          Recherche en cours...
                          Rechercher dans cette zone