Propriété - 220 m² - 14 pièces à Merlevenez
favoris
371 070 €
Description :
Idéal investisseur ou Maison familiale
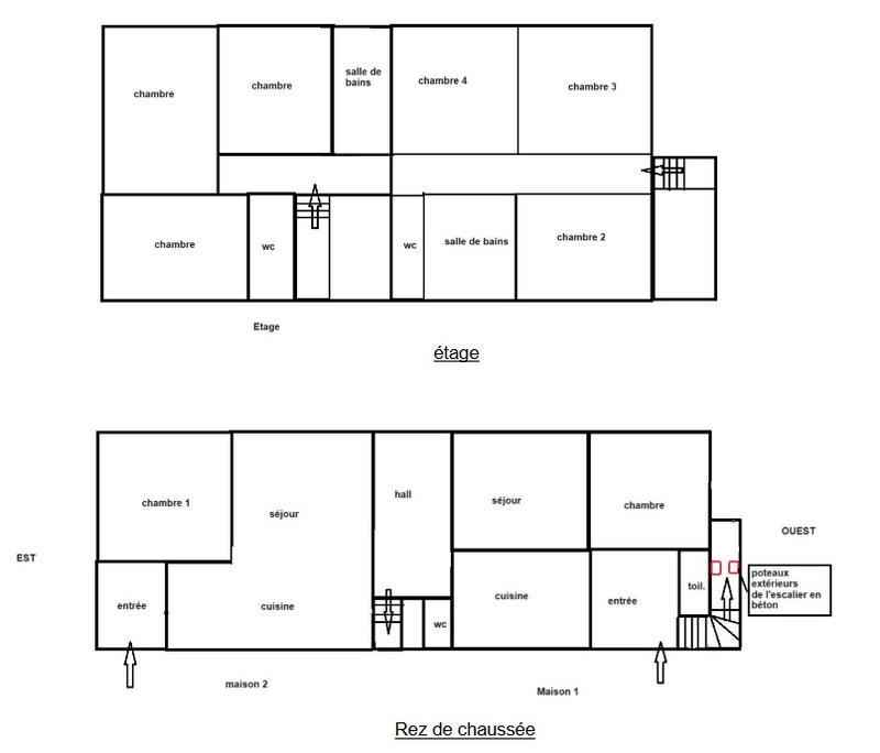
Potentiel Énorme pour cette propriété divisée en 2 logements exposés Sud et comprenant chacun ; au rdc entrée, wc, cuisine, salon-séjour et à l'étage, 3 chambres , wc et salle de bain, et caves respectives. Le tout sur un terrain d'environ 850m². Rénovations à prévoir. Au calme et commerces à pied, à Merlevenez. (6.02 % honoraires TTC à la charge de l'acquéreur.)
Les informations sur les risques auxquels ce bien est exposé sont disponibles sur le site Géorisques : www. georisques. gouv. fr
Afficher plus de détails
Informations sur ce bien :
L'intérieur :
-
14 pièces
-
220 m²Informations complémentairesSurface habitable : 220 m²
-
6 Chambres
-
2 Salles de bain
-
2 Toilettes
Autres :
-
Chauffage :Individuel, Électrique
-
Année de construction :1960
-
Nombre de niveaux :1
Synthèse
Propriété à Merlevenez
371 070 €
Surface :
220 m²
Prix au m² :
1 687 €
Transaction :
Achat
Référence :
7777
Date de publication :
Il y a plus de 7 jours
Contacter l'annonceur
Performance énergétique
A
B
C
D
E
F
G
Gaz à effet de serre
A
B
C
D
E
F
G
Agent
PARKIMMOBILIER - PLOUHINEC
Mettre en avant cette annonce
Signaler une erreur
Localisation :
L'adresse exacte n'est pas renseignée. Le bien se situe dans cette zone.
Performance énergétique :
Logement économe
A
B
C
D
E
329
kWh/m²/an
11
kg CO₂/m²/an
F
G
Logement énergivore
Faible émission de CO₂
A
B
11
kg CO₂/m²/an
C
D
E
F
G
Forte émission de CO₂
Date du diagnostic :
02 avril 2024
Ventes de maisons à proximité
- 11 ventes de maisons à Sainte-Hélène (3 km)
- 29 ventes de maisons à Kervignac (3.1 km)
- 9 ventes de maisons à Nostang (3.7 km)
- 51 ventes de maisons à Plouhinec (4.5 km)
- 23 ventes de maisons à Riantec (5.5 km)
- 10 ventes de maisons à Brandérion (7.1 km)
- 39 ventes de maisons à Hennebont (8 km)
- 13 ventes de maisons à Locmiquélic (8.1 km)
- 28 ventes de maisons à Belz (8.3 km)