Retour
Rechercher
Lieu
Où ?
    Type de bien
    Quel type de projet ?
    Particulier Entreprise
    Quel type de bien ?
        Prix
        Quel budget ?
              Surface
              Quelle surface ?
                    Pièces
                    Combien de pièces ?
                      Combien de chambres ?
                          2

                          Ventes d'appartements à Féy

                          Recherche 2
                          Carte
                          • Appartement - 134 m² - 4 pièces
                          • Appartement - 134 m² - 4 pièces
                          • Appartement - 134 m² - 4 pièces

                          Appartement - 134 m² - 4 pièces

                          135 000 €
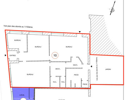
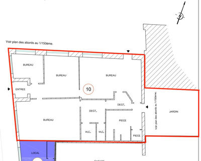
                          Vous recherchez un bien unique, modulable et avec un fort potentiel ?Découvrez ce superbe plateau de 133,50 m², situé dans une petite copropriété calme et bien tenue, au coeur de FEY.Actuellement aménagé en bureaux, ce bien peut très facilement redevenir un appartement spacieux et fonctionnel. Laissez libre cours à vos envies :Grande pièce de vie ouverte, cuisine avec accès dir
                          Professionnel Publié il y a plus de 7 jours Non géolocalisée
                          Féy 3 ch Parking
                          • Appartement - 134 m² - 4 pièces
                          • Appartement - 134 m² - 4 pièces
                          • Appartement - 134 m² - 4 pièces

                          Appartement - 134 m² - 4 pièces

                          135 000 €
                          SOUS OFFRE ! - Vous recherchez un bien unique, modulable et avec un fort potentiel ? Découvrez ce superbe plateau de 133,50 m², situé dans une petite copropriété calme et bien tenue, au coeur de FEY. Actuellement aménagé en bureaux, ce bien peut très facilement redevenir un appartement spacieux et fonctionnel. Laissez libre cours à vos envies : Grande pièce de vie ouverte, c
                          Professionnel Publié il y a plus de 7 jours Non géolocalisée
                          Féy 3 ch RDC
                          1

                          Vente d'appartement à Marieulles

                          (2.7 km)
                          • Appartement - 151 m² - 5 pièces
                          • Appartement - 151 m² - 5 pièces
                          • Appartement - 151 m² - 5 pièces
                          • Appartement - 151 m² - 5 pièces
                          • Appartement - 151 m² - 5 pièces
                          • Appartement - 151 m² - 5 pièces Cliquez pour voir les 11 photos

                          Appartement - 151 m² - 5 pièces

                          255 000 €
                          Iad France - Alexandre SAINT EVE vous propose : Opportunité Exceptionnelle - Appartement Spacieux avec Piscine et Terrasse à Marieulles Ce magnifique appartement de 151 m², entièrement rénové et équipé d'une entrée individuelle, vous offre des espaces de vie généreux et lumineux identiques à ceux d'une maison. Vous serez séduit par ses 3 chambres spacieuses (16,15 et 13 m²) et
                          Professionnel Publié il y a plus de 7 jours
                          Marieulles 3 ch Terrasse
                          2

                          Ventes d'appartements à Corny-sur-Moselle

                          (2.8 km)
                          • Appartement - 111 m² - 5 pièces
                          • Appartement - 111 m² - 5 pièces
                          • Appartement - 111 m² - 5 pièces
                          • Appartement - 111 m² - 5 pièces
                          • Appartement - 111 m² - 5 pièces
                          • Appartement - 111 m² - 5 pièces Cliquez pour voir les 14 photos

                          Appartement - 111 m² - 5 pièces

                          222 000 €
                          SPÉCIAL INVESTISSEUR : APPARTEMENT 5 PIÈCES AVEC TERRASSE A vendre : proche Metz, nous vous présentons à Corny-sur-Moselle (57680), cet appartement de 4 pièces de 111 m² LOUÉ 965€. Il s'organise comme suit : une pièce à vivre, trois chambres, une cuisine aménagée équipée, une salle de bains et deux toilettes. Ce T4 possède un chauffage individuel alimenté au gaz. Une cave est
                          Professionnel Publié il y a plus de 7 jours
                          Corny-sur-Moselle 3 ch 1 sdb RDC Terrasse Parking
                          • Appartement - 59 m² - 2 pièces
                          • Appartement - 59 m² - 2 pièces
                          • Appartement - 59 m² - 2 pièces
                          • Appartement - 59 m² - 2 pièces
                          • Appartement - 59 m² - 2 pièces
                          • Appartement - 59 m² - 2 pièces Cliquez pour voir les 12 photos

                          Appartement - 59 m² - 2 pièces

                          178 000 €
                          Charmant rez-de-jardin meublé à Corny-sur-Moselle – Coup de cœur assuré ! Découvrez ce bel appartement de type rez-de-jardin, situé dans un environnement calme et agréable à Corny-sur-Moselle, offrant un cadre de vie paisible et lumineux. Surface au sol 91.45 m2. Vous trouverez une pièce de vie ouverte avec séjour, cuisine équipée, une chambre en enfilade, une salle de bain,
                          Professionnel Publié il y a plus de 7 jours Non géolocalisée
                          Corny-sur-Moselle 1 ch 1 sdb Terrasse Parking
                          2

                          Ventes d'appartements à Jouy-aux-Arches

                          (3.7 km)
                          • Duplex - 82 m² - 4 pièces
                          • Duplex - 82 m² - 4 pièces
                          • Duplex - 82 m² - 4 pièces
                          • Duplex - 82 m² - 4 pièces
                          • Duplex - 82 m² - 4 pièces
                          • Duplex - 82 m² - 4 pièces Cliquez pour voir les 7 photos

                          Duplex - 82 m² - 4 pièces

                          165 000 €
                          Iad France - Régis Vion vous propose : DUPLEX + LUMINEUX + PETITE COPRO + PLACE DE PARKING + CAVE + BON ÉTAT Situé au 2ᵉ et dernier étage d’une petite copropriété, cet appartement F4 en duplex d'une surface de 94 m² au sol et 70 m² loi carrez offre un cadre de vie agréable, lumineux et parfaitement entretenu. Créé entièrement en 2008, le logement bénéficie d’une conception mode
                          Professionnel Publié le 17 janv. à 07:55
                          Jouy-aux-Arches 2 ch
                          • Appartement - 21 m² - 1 pièce
                          • Appartement - 21 m² - 1 pièce
                          • Appartement - 21 m² - 1 pièce
                          • Appartement - 21 m² - 1 pièce
                          • Appartement - 21 m² - 1 pièce
                          • Appartement - 21 m² - 1 pièce Cliquez pour voir les 7 photos

                          Appartement - 21 m² - 1 pièce

                          74 000 €
                          Situé sur la commune de Jouy-aux-Arches, à proximité immédiate des commerces et des axes principaux, venez découvrir ce studio de 22 m², idéal pour un investissement locatif ou un premier achat. Ce studio, bien agencé et sans perte d'espace, offre un cadre de vie fonctionnel et agréable. Lumineux, il se compose d'une pièce de vie optimisée, permettant d'accueillir un espace sal
                          Professionnel Publié il y a plus de 7 jours
                          Jouy-aux-Arches 1 sdb Parking
                          1

                          Vente d'appartement à Novéant-sur-Moselle

                          (3.7 km)
                          • Appartement - 94 m² - 5 pièces
                          • Appartement - 94 m² - 5 pièces
                          • Appartement - 94 m² - 5 pièces
                          • Appartement - 94 m² - 5 pièces
                          • Appartement - 94 m² - 5 pièces
                          • Appartement - 94 m² - 5 pièces Cliquez pour voir les 24 photos

                          Appartement - 94 m² - 5 pièces

                          179 000 €
                          EXCLUSIVITE Sylvain VINCLER Gallys Immobilier ! Estimation offerte et accompagnement personnalisé : 06.48.74.12.58 / sylvain.vincler@gallys-immo.fr ou via Facebook. NOVEANT-SUR-MOSELLE Appartement F5 de 94.41 m², avec JARDIN d'1 are 06 et VERANDA. Au premier étage sur deux, d'une petite copropriété, aux portes de Metz, Vendu également avec une PLACE DE PARKING extérieure avec
                          Professionnel Publié le 17 janv. à 06:03
                          Novéant-sur-Moselle 3 ch 1 sdb 1er étage Parking Exposition Sud
                          1

                          Vente d'appartement à Augny

                          (3.8 km)
                          • Appartement - 84 m² - 4 pièces
                          • Appartement - 84 m² - 4 pièces
                          • Appartement - 84 m² - 4 pièces
                          • Appartement - 84 m² - 4 pièces
                          • Appartement - 84 m² - 4 pièces
                          • Appartement - 84 m² - 4 pièces Cliquez pour voir les 7 photos

                          Appartement - 84 m² - 4 pièces

                          198 000 €
                          Iad France - Céline Wilhelm vous propose : En exclusivité – T3 rénové, lumineux et clé en main à Augny ! Prêt à vivre, sans aucun travaux ! Juste à poser vos meubles et profiter pleinement de votre nouveau chez-vous. Situé au 2ᵉ étage d’un immeuble calme, cet appartement offre : Salon-séjour lumineux et spacieux Cuisine ouverte entièrement équipée 2 grandes chambres confortable
                          Professionnel Publié il y a plus de 7 jours
                          Augny 2 ch 2nd étage Parking
                          1

                          Vente d'appartement à Ancy-sur-Moselle

                          (4.1 km)
                          • Appartement - 95 m² - 6 pièces
                          • Appartement - 95 m² - 6 pièces
                          • Appartement - 95 m² - 6 pièces
                          • Appartement - 95 m² - 6 pièces
                          • Appartement - 95 m² - 6 pièces
                          • Appartement - 95 m² - 6 pièces Cliquez pour voir les 10 photos

                          Appartement - 95 m² - 6 pièces

                          140 000 €
                          ICF HABITAT NORD EST VEND à ANCY-DORNOT (57130) au 2 rue de la Fontaine. Un appartement T6 de 95,00 m² au rez-de-chaussée. Réf. 19461. Lot n°2. Au sein d'un village située au sud de Metz, entre Ars-sur-Moselle et Novéant-sur-Moselle, dans une maison séparée en deux appartements à 12 minutes à pied de la Gare de Ancy-sur-Moselle et à 10 minutes de la ZAC d'Augny, venez découvri
                          Professionnel Publié il y a plus de 7 jours
                          Ancy-sur-Moselle 3 ch 1 sdb RDC
                          3

                          Ventes d'appartements à Coin-lès-Cuvry

                          (4.5 km)
                          • Appartement - 116 m² - 5 pièces
                          • Appartement - 116 m² - 5 pièces
                          • Appartement - 116 m² - 5 pièces
                          • Appartement - 116 m² - 5 pièces
                          • Appartement - 116 m² - 5 pièces
                          • Appartement - 116 m² - 5 pièces Cliquez pour voir les 10 photos

                          Appartement - 116 m² - 5 pièces

                          179 000 €
                          Découvrez ce magnifique appartement T5 et plus de 116 m², situé au 1er étage d'un immeuble de caractère. Avec ses 4 chambres spacieuses, un séjour lumineux de 61 m², et une terrasse de 12 m², cet appartement est un véritable havre de paix. Imaginez-vous vivre dans un espace où chaque pièce respire la tranquillité et le confort. Le séjour, baigné de lumière naturelle, est idéal
                          Professionnel Publié il y a plus de 7 jours Non géolocalisée
                          Coin-lès-Cuvry 4 ch 1 sdb 1er étage Terrasse Parking
                          • Appartement - 93 m² - 5 pièces
                          • Appartement - 93 m² - 5 pièces
                          • Appartement - 93 m² - 5 pièces
                          • Appartement - 93 m² - 5 pièces
                          • Appartement - 93 m² - 5 pièces
                          • Appartement - 93 m² - 5 pièces Cliquez pour voir les 8 photos

                          Appartement - 93 m² - 5 pièces

                          149 000 €
                          Découvrez ce magnifique appartement T4/5 de 93 m² à vivre, situé au 1er étage d'un immeuble au charme authentique. Avec ses 122 m² au sol, cet espace lumineux et spacieux vous offre une vie confortable et élégante. Imaginez-vous dans un séjour de 34 m², baigné de lumière naturelle, parfait pour des soirées en famille ou des dîners entre amis. Les trois chambres, dont une spaci
                          Professionnel Publié il y a plus de 7 jours Non géolocalisée
                          Coin-lès-Cuvry 3 ch 1 sdb 1er étage Parking
                          • Appartement - 74 m² - 4 pièces
                          • Appartement - 74 m² - 4 pièces
                          • Appartement - 74 m² - 4 pièces
                          • Appartement - 74 m² - 4 pièces
                          • Appartement - 74 m² - 4 pièces
                          • Appartement - 74 m² - 4 pièces Cliquez pour voir les 8 photos

                          Appartement - 74 m² - 4 pièces

                          129 000 €
                          Découvrez ce charmant appartement T4 de 74 m² habitables, niché au 1er étage d'une résidence paisible. Avec ses 3 chambres spacieuses, son séjour lumineux de 36 m² et sa cuisine aménagée, cet appartement offre un cadre de vie idéal pour une famille ou des professionnels en quête de tranquillité. Imaginez-vous profiter de votre terrasse de 12 m², offrant une vue imprenable sur
                          Professionnel Publié il y a plus de 7 jours Non géolocalisée
                          Coin-lès-Cuvry 3 ch 1 sdb 1er étage Terrasse Parking
                          8

                          Ventes d'appartements à Cuvry

                          (4.7 km)
                          • Appartement - 43 m² - 2 pièces
                          • Appartement - 43 m² - 2 pièces
                          • Appartement - 43 m² - 2 pièces
                          • Appartement - 43 m² - 2 pièces
                          • Appartement - 43 m² - 2 pièces
                          • Appartement - 43 m² - 2 pièces Cliquez pour voir les 10 photos

                          Appartement - 43 m² - 2 pièces

                          175 000 €
                          Opportunité rare sur le secteur de Cuvry : appartement en RDC avec grand jardin et parking Découvrez ce superbe appartement de 43m2 en rez-de-chaussée, situé dans une résidence calme et moderne construite en 2020, au coeur du village recherché de Cuvry, à seulement quelques minutes de Metz et des principaux axes autoroutiers. ? Les atouts du bien : - Accès PMR : parfaitement
                          Professionnel Publié il y a plus de 7 jours
                          Cuvry 1 ch 1 sdb RDC Terrasse Parking
                          • Appartement - 47 m² - 2 pièces
                          • Appartement - 47 m² - 2 pièces
                          • Appartement - 47 m² - 2 pièces
                          • Appartement - 47 m² - 2 pièces
                          • Appartement - 47 m² - 2 pièces
                          • Appartement - 47 m² - 2 pièces Cliquez pour voir les 6 photos

                          Appartement - 47 m² - 2 pièces

                          170 000 €
                          M573092 1.5A VENDRE APPARTEMENT au premier étage , pas d'ascenseur , Livraison DEUXIÈME TRIMESTRE 2024, 47m² avec terrasse de 15.90 , un garage pour une voiture et un emplacement parking privé . Finition et grande qualité de construction ,RE 2020 , offrant un séjour de 29.74M² , une chambre de 13.15M² et une salle de douche avec WC et lavabo. L'appartement est livré terminé
                          Professionnel Publié il y a plus de 7 jours
                          Cuvry 2 sdb
                          • Appartement - 47 m² - 2 pièces
                          • Appartement - 47 m² - 2 pièces
                          • Appartement - 47 m² - 2 pièces
                          • Appartement - 47 m² - 2 pièces
                          • Appartement - 47 m² - 2 pièces
                          • Appartement - 47 m² - 2 pièces Cliquez pour voir les 6 photos

                          Appartement - 47 m² - 2 pièces

                          166 000 €
                          M573092 0.2 A VENDRE APPARTEMENT au RDC , pas d'ascenseur , Livraison FIN 2023 , 47m² avec terrasse de 15.90 , un garage pour une voiture et un emplacement parking privé . Finition et grande qualité de construction ,RE 2020 , offrant un séjour de 29.74M² , une chambre de 13.15M² et une salle de douche avec WC et lavabo. L'appartement est livré terminé prêt à vivre , fenêtre
                          Professionnel Publié il y a plus de 7 jours
                          Cuvry 2 sdb
                          • Appartement - 47 m² - 2 pièces
                          • Appartement - 47 m² - 2 pièces
                          • Appartement - 47 m² - 2 pièces
                          • Appartement - 47 m² - 2 pièces
                          • Appartement - 47 m² - 2 pièces

                          Appartement - 47 m² - 2 pièces

                          166 000 €
                          M573092 0.3 A VENDRE APPARTEMENT au RDC , pas d'ascenseur 47m² avec terrasse de 15.90 , un garage pour une voiture et un emplacement parking privé . Finition et grande qualité de construction ,RE 2020 , offrant un séjour de 29.74M² , une chambre de 13.15M² et une salle de douche avec WC et lavabo. L'appartement est livré terminé prêt à vivre , fenêtre PVC avec volets motorisé
                          Professionnel Publié il y a plus de 7 jours
                          Cuvry 2 sdb
                          • Appartement - 94 m² - 4 pièces
                          • Appartement - 94 m² - 4 pièces
                          • Appartement - 94 m² - 4 pièces
                          • Appartement - 94 m² - 4 pièces
                          • Appartement - 94 m² - 4 pièces
                          • Appartement - 94 m² - 4 pièces Cliquez pour voir les 6 photos

                          Appartement - 94 m² - 4 pièces

                          367 000 €
                          M573092 1.3 A VENDRE APPARTEMENT au DERNIER ÉTAGE pas d'ascenseur , Livraison DEUXIÈME TRIMESTRE 2024 , 94.08 m² avec terrasse de 11.M² , un garage pour une voiture et DEUX emplacements parking privés . Finition et grande qualité de construction , prestations soignées ,RE 2020 , offrant un séjour de 48M² avec mural pour recevoir cuisine ouverte , 3 chambres de et une sa
                          Professionnel Publié il y a plus de 7 jours
                          Cuvry 3 ch 1 sdb
                          12

                          Ventes d'appartements à Marly

                          (5.4 km)
                          • Appartement - 70 m² - 3 pièces
                          • Appartement - 70 m² - 3 pièces
                          • Appartement - 70 m² - 3 pièces
                          • Appartement - 70 m² - 3 pièces
                          • Appartement - 70 m² - 3 pièces
                          • Appartement - 70 m² - 3 pièces Cliquez pour voir les 17 photos

                          Appartement - 70 m² - 3 pièces

                          239 000 €
                          Iad France - Jonathan Schiappa (06 75 11 50 91) vous propose : DANS UN ÉCRIN DE CALME ET DE MODERNITÉ AU CŒUR DE MARLY VILLAGE, CET APPARTEMENT RÉINVENTE L’ART DE VIVRE EN REZ-DE-JARDIN. Au sein d’une résidence récente de 2014, pensée selon les normes BBC de son époque, ce bel appartement d’environ 70 m² environ habitables séduit dès les premiers instants par son atmosphère cha
                          Professionnel Publié il y a plus de 7 jours
                          Marly 2 ch Terrasse Parking
                          • Appartement - 117 m² - 6 pièces
                          • Appartement - 117 m² - 6 pièces
                          • Appartement - 117 m² - 6 pièces
                          • Appartement - 117 m² - 6 pièces
                          • Appartement - 117 m² - 6 pièces
                          • Appartement - 117 m² - 6 pièces Cliquez pour voir les 18 photos

                          Appartement - 117 m² - 6 pièces

                          274 000 €
                          EXCLUSIVEMENT CHEZ CASCIOLA IMMOBILIER ! Dans un petit immeuble atypique de la fin du XIXe siècle divisé en deux appartements, au coeur de Marly village! Au rez-de-chaussée : un couloir vous permet d'accéder au vaste et lumineux espace de vie (environ 60m²) composé d'un salon/séjour/cuisine ouvrant sur le jardin et la piscine. L'espace nuit comprend trois chambres(15,10 et 10
                          Professionnel Publié il y a plus de 7 jours
                          Marly 3 ch 1 sdb RDC Piscine Parking
                          • Appartement - 118 m² - 5 pièces
                          • Appartement - 118 m² - 5 pièces
                          • Appartement - 118 m² - 5 pièces
                          • Appartement - 118 m² - 5 pièces
                          • Appartement - 118 m² - 5 pièces
                          • Appartement - 118 m² - 5 pièces Cliquez pour voir les 13 photos

                          Appartement - 118 m² - 5 pièces

                          169 000 €
                          EXCLUSIVEMENT CHEZ CASCIOLA IMMOBILIER ! Dans un petit immeuble atypique de la fin du XIXe siècle divisé en deux appartements, au coeur de Marly village! Au premier et dernier étage, un appartement T5 d'une surface habitable de 125 m² à rénover. Il se compose d'une grande pièce de vie de plus de 45 m², incluant le salon/séjour avec une cheminée ainsi que la cuisine (four à pa
                          Professionnel Publié il y a plus de 7 jours
                          Marly 3 ch 1 sdb 1er étage Terrasse Parking
                          • Appartement - 146 m² - 6 pièces
                          • Appartement - 146 m² - 6 pièces
                          • Appartement - 146 m² - 6 pièces
                          • Appartement - 146 m² - 6 pièces
                          • Appartement - 146 m² - 6 pièces
                          • Appartement - 146 m² - 6 pièces Cliquez pour voir les 12 photos

                          Appartement - 146 m² - 6 pièces

                          409 000 €
                          Et si votre prochain chez-vous était un appartement qui se prend pour une maison ? À 3 minutes de Marly, Le Clos de la Luette Vous rêvez d'un lieu de vie qui allie le charme d'une maison et la praticité d'un appartement sans les contraintes. Bienvenue rue Paul Simminger à Montigny les Metz, où se niche un bien rare, entièrement repensé pour offrir confort, lumière et élégance,
                          Professionnel Publié il y a plus de 7 jours Non géolocalisée
                          Marly 4 ch 2 sdb 1er étage Terrasse Parking
                          • Appartement - 67 m² - 3 pièces
                          • Appartement - 67 m² - 3 pièces
                          • Appartement - 67 m² - 3 pièces
                          • Appartement - 67 m² - 3 pièces
                          • Appartement - 67 m² - 3 pièces
                          • Appartement - 67 m² - 3 pièces Cliquez pour voir les 9 photos

                          Appartement - 67 m² - 3 pièces

                          230 000 €
                          Iad France - Dominique WEIL vous propose : Venez découvrir ce très bel appartement très calme situé à Marly proche de toutes les commodités et transport. Dans un immeuble construit en 2012, T3 de 67 m² au rez de chaussée avec terrasse, jardin clôturé et garage individuel en sous sol. Pour votre confort, une pièce de vie carrelée de 30 m² avec cuisine équipée avec 2 grandes port
                          Professionnel Publié il y a plus de 7 jours
                          Marly 2 ch Terrasse
                          11

                          Ventes d'appartements à Ars-sur-Moselle

                          (5.5 km)
                          • Appartement - 72 m² - 3 pièces
                          • Appartement - 72 m² - 3 pièces
                          • Appartement - 72 m² - 3 pièces
                          • Appartement - 72 m² - 3 pièces
                          • Appartement - 72 m² - 3 pièces
                          • Appartement - 72 m² - 3 pièces Cliquez pour voir les 7 photos

                          Appartement - 72 m² - 3 pièces

                          139 000 €
                          Iad France - David Delhaye vous propose : Superbe Appartement Rénové de 3 Pièces à Ars-sur-Moselle. Actuellement loué. Découvrez ce magnifique appartement de 72 m² situé au 4ème étage d'un immeuble de 4 niveaux à Ars-sur-Moselle. Récemment rénové, cet appartement offre un espace de vie moderne et confortable. Le salon, d'une superficie de 18.5 m², est lumineux et spacieux, offr
                          Professionnel Publié le 16 janv. à 00:40
                          Ars-sur-Moselle 2 ch Dernier étage
                          • Appartement - 65 m² - 3 pièces
                          • Appartement - 65 m² - 3 pièces
                          • Appartement - 65 m² - 3 pièces
                          • Appartement - 65 m² - 3 pièces
                          • Appartement - 65 m² - 3 pièces
                          • Appartement - 65 m² - 3 pièces Cliquez pour voir les 7 photos

                          Appartement - 65 m² - 3 pièces

                          125 000 €
                          En plein centre d'ARS-SUR-MOSELLE et en exclusivité SAFTI, Alexandra JEANJEAN vous présente ce très bel appartement de 65 m² en rez-de-chaussée surélevé, dans une petite copropriété de trois appartements à très faibles charges. Rénové avec goût, il se compose d'une entrée privative, une chambre, une cuisine équipée ouverte sur un double séjour (ou un séjour et une deuxième cham
                          Professionnel Publié il y a plus de 7 jours
                          Ars-sur-Moselle 1 ch 1 sdb
                          • Appartement - 64 m² - 3 pièces
                          • Appartement - 64 m² - 3 pièces
                          • Appartement - 64 m² - 3 pièces
                          • Appartement - 64 m² - 3 pièces
                          • Appartement - 64 m² - 3 pièces
                          • Appartement - 64 m² - 3 pièces Cliquez pour voir les 23 photos

                          Appartement - 64 m² - 3 pièces

                          135 000 €
                          EXCLUSIVITE Sylvain VINCLER Gallys Immobilier ! Estimation offerte et accompagnement personnalisé : 06.48.74.12.58 / sylvain.vincler@gallys-immo.fr ou via Facebook. ARS-SUR-MOSELLE Appartement F3 de 64.46 m², avec BALCON. Au deuxième et dernier étage d'une petite copropriété de 3 appartements, aux portes de Metz, Vendu également avec un GARAGE, un JARDIN privatif, un GRENIER d
                          Professionnel Publié il y a plus de 7 jours
                          Ars-sur-Moselle 2 ch 1 sdb Dernier étage Balcon Parking
                          • Appartement - 108 m² - 5 pièces
                          • Appartement - 108 m² - 5 pièces
                          • Appartement - 108 m² - 5 pièces
                          • Appartement - 108 m² - 5 pièces
                          • Appartement - 108 m² - 5 pièces
                          • Appartement - 108 m² - 5 pièces Cliquez pour voir les 10 photos

                          Appartement - 108 m² - 5 pièces

                          210 000 €
                          Exclusivité Agence Valentin Ars-sur-Moselle, au sein d'une petite copropriété , découvrez au rez-de-chaussée ce superbe appartement 5 pièces d'une superficie de 108m² accompagné d'une terrasse. L'appartement rénové en 2025 est vendu entièrement meublé ! Comprenant : une entrée, un salon-séjour, une salle à manger ouverte sur une cuisine équipée et une terrasse. Côté nuit : t
                          Professionnel Publié il y a plus de 7 jours
                          Ars-sur-Moselle 3 ch 2 sdb RDC Terrasse Parking
                          • Appartement - 45 m² - 2 pièces
                          • Appartement - 45 m² - 2 pièces
                          • Appartement - 45 m² - 2 pièces
                          • Appartement - 45 m² - 2 pièces
                          • Appartement - 45 m² - 2 pièces
                          • Appartement - 45 m² - 2 pièces Cliquez pour voir les 8 photos

                          Appartement - 45 m² - 2 pièces

                          175 000 €
                          ITC21C 2 PIECES ARS-SUR-MOSELLE (57130) 3 IMMEUBLE LIVRE SE RENSEIGNER POUR LES REMISES EN COURS LES IMAGES DE PUBLICITE NE SONT PAS CONTRACTUELLES. LA COMMISSION DE L'AGENCE IMMOBILIERE EST PAYEE PAR LE MANDANT.  LE PRIX DE VENTE AFFICHE EST HORS FRAIS D'AGENCE. C'EST LE PRIX COMMUNIQUE PAR LE PROMOTEUR. CPI92012021000000226                 Appartement 2 pièces no A305 44.71 m
                          Professionnel Publié il y a plus de 7 jours Non géolocalisée
                          Ars-sur-Moselle 1 ch RDC Parking
                          3

                          Ventes d'appartements à Pagny-sur-Moselle

                          (7.5 km)
                          • Appartement - 60 m² - 3 pièces
                          • Appartement - 60 m² - 3 pièces
                          • Appartement - 60 m² - 3 pièces
                          • Appartement - 60 m² - 3 pièces
                          • Appartement - 60 m² - 3 pièces
                          • Appartement - 60 m² - 3 pièces Cliquez pour voir les 16 photos

                          Appartement - 60 m² - 3 pièces

                          87 000 €
                          Elysia immobilier vous invite à découvrir cet appartement de 3 pièces dont deux chambres avec cave et jardin ! Situé sur la commune de Pagny-Sur-Moselle, proche de toute commodité, au 2 éme et dernier étage dans une petite copropriété aux faibles charges. Il se compose d'une entrée, d'un salon séjour d'environ 13 m2, d'une cuisine indépendante de 18 m2, deux chambres de 12 et 1
                          Professionnel Publié il y a plus de 7 jours
                          Pagny-sur-Moselle 2 ch 1 sdb Dernier étage Terrasse Exposition Sud-ouest
                          • Appartement - 60 m² - 3 pièces
                          • Appartement - 60 m² - 3 pièces
                          • Appartement - 60 m² - 3 pièces
                          • Appartement - 60 m² - 3 pièces
                          • Appartement - 60 m² - 3 pièces
                          • Appartement - 60 m² - 3 pièces Cliquez pour voir les 16 photos

                          Appartement - 60 m² - 3 pièces

                          79 000 €
                          Elysia immobilier vous invite à découvrir cet appartement de 3 pièces dont deux chambres avec cave et jardin ! Situé sur la commune de Pagny-Sur-Moselle, proche de toute commodité, au 2 éme et dernier étage dans une petite copropriété aux faibles charges. Il se compose d'une entrée, d'un salon séjour d'environ 13 m2, d'une cuisine indépendante de 18 m2, deux chambres de 12 et 1
                          Professionnel Publié il y a plus de 7 jours Non géolocalisée
                          Pagny-sur-Moselle 2 ch 1 sdb Dernier étage Terrasse Parking
                          • Appartement - 84 m² - 3 pièces
                          • Appartement - 84 m² - 3 pièces
                          • Appartement - 84 m² - 3 pièces
                          • Appartement - 84 m² - 3 pièces
                          • Appartement - 84 m² - 3 pièces
                          • Appartement - 84 m² - 3 pièces Cliquez pour voir les 19 photos

                          Appartement - 84 m² - 3 pièces

                          148 000 €
                          Découvrez ce lumineux appartement de 84,55 m², situé au 1er étage d'une copropriété de 1973 intimiste de seulement deux logements. À deux pas de la gare SNCF et du centre-ville de Pagny-sur-Moselle, ce bien allie confort, praticité et espaces extérieurs rares. Dès l'entrée, un hall avec placard vous accueille et vous mène vers une pièce de vie traversante de 30 m², baignée de
                          Professionnel Publié il y a plus de 7 jours Non géolocalisée
                          Pagny-sur-Moselle 2 ch 1 sdb 1er étage Terrasse Parking

                          Achat d'un appartement à Féy. Toutes les ventes immobilières d'appartements à Féy et aux environs. Appartement à vendre.

                          Recherche en cours...
                          Rechercher dans cette zone