• Appartement - 134 m² - 4 pièces
  • Appartement - 134 m² - 4 pièces
  • Appartement - 134 m² - 4 pièces
135 000 €
134 m²
4 pièces
3 chambres

Description :

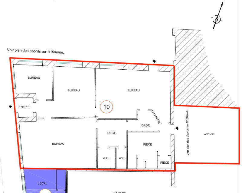
SOUS OFFRE ! - Vous recherchez un bien unique, modulable et avec un fort potentiel ? Découvrez ce superbe plateau de 133,50 m², situé dans une petite copropriété calme et bien tenue, au coeur de FEY. Actuellement aménagé en bureaux, ce bien peut très facilement redevenir un appartement spacieux et fonctionnel. Laissez libre cours à vos envies : Grande pièce de vie ouverte, cuisine avec accès direct sur le jardin, plusieurs chambres selon vos besoins, espaces de travail ou suite parentale. Belle hauteur sous plafond et volumes généreux Le tout complété par un jardin privé de 606m², idéal pour profiter des beaux jours, créer un espace détente ou un coin repas extérieur. Un bien rare, à voir absolument, parfait pour un projet d'habitation, un investissement ou une activité professionnelle. Copropriété de 10 lots - dont 8 lots habitation. (Pas de procédure en cours). Charges annuelles : 1200 euros.

Afficher plus de détails

Informations sur ce bien :

L'intérieur :

  • 4 pièces
  • 134 m²
    Informations complémentaires
    Surface habitable : 134 m²
    Surface au sol : 134 m²
  • 3 Chambres

L'extérieur :

  • Jardin de 66 m²

Les équipements :

  • Tout à l'égout
  • Double vitrage

Autres :

  • Année de construction :
    1993
  • État :
    Extérieur : Bon
  • Étage :
    RDC
    Informations complémentaires
    Nombre d'étages de la construction : 3
  • Nombre de niveaux :
    1

Copropriété :

  • Copropriété :
    Oui
  • Nombre de lots :
    10
  • Charges annuelles :
    1 200 €
  • Procédure :
    Pas de procédure en cours
Synthèse
Appartement à Féy
135 000 €
Surface : 134 m²
Prix au m² : 1 007 €
Transaction :
Achat
Référence :
EV0200
Date de publication :
Il y a plus de 7 jours
Appartement - 134 m² - 4 pièces
Performance énergétique
A
B
C
D
E
F
G
Gaz à effet de serre
A
B
C
D
E
F
G
Agent
ZAKARI NAILI Rombas - Evora Immobilier
Appeler
Écrire
Mettre en avant cette annonce
Signaler une erreur

Localisation :

L'adresse exacte n'est pas renseignée. Le bien se situe dans cette zone.

Performance énergétique :

Logement économe
A
B
C
D
214
kWh/m²/an
35
kg CO₂/m²/an
E
F
G
Logement énergivore
Faible émission de CO₂
A
B
C
D
35
kg CO₂/m²/an
E
F
G
Forte émission de CO₂
Date du diagnostic : 06 avril 2025
Annonces similaires
Annonces immobilières récentes