• Immeuble - 200 m²
  • Immeuble - 200 m²
  • Immeuble - 200 m²
  • Immeuble - 200 m²
  • Immeuble - 200 m²
  • Immeuble - 200 m²
  • Immeuble - 200 m²
  • Immeuble - 200 m²
  • Immeuble - 200 m²
  • Immeuble - 200 m²
  • Immeuble - 200 m²
  • Immeuble - 200 m²
175 000 €
200 m²

Description :

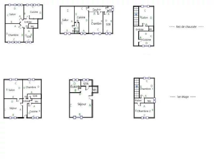
Bonne rentabilité. Cet immeuble situé à Coulanges-lès-Nevers, 58000 Nevers, entre l'église de Coulanges et l'Isat non loin des commerces, est composé de cinq appartements sur 200m² de surface habitable, la totalité est actuellement loués avec des locataires ponctuels dans leurs paiements respectifs. Un grenier aménageable offre un potentiel.
L'immeuble génère un revenu annuel actuel de 20 448, mais un revenu potentiel aménageant le grenier. Cet immeuble en bon état constitue une excellente opportunité d'investissement, Un vaste terrain de 525m² sert d'espace d'agrément aux locataires et permet d'envisager d'autres projets. D'autre part, Le diagnostic de performance énergétique des appartements sont disponibles sur simple demande. La taxe foncière est de MOINS DE 4017 à l'année. Immeuble équipé fibre

Afficher plus de détails

Informations sur ce bien :

L'intérieur :

  • 200 m²
    Informations complémentaires
    Surface Carrez : 205 m²

Les équipements :

  • Tout à l'égout

Autres :

  • Eau chaude :
    Individuel
  • État :
    Bon état
  • Exposition :
    Est, Ouest
  • Vue :
    Dégagée

Copropriété :

  • Taxe foncière :
    4 017 €
Synthèse
Immeuble à Coulanges-lès-Nevers
175 000 €
Surface : 200 m²
Prix au m² : 875 €
Transaction :
Achat
Référence :
85368291
Mandat :
Exclusif
Date de publication :
Il y a plus de 7 jours
Immeuble - 200 m²
Performance énergétique
A
B
C
D
E
F
G
Gaz à effet de serre
A
B
C
D
E
F
G
Agent
Conort Immobilier
Conort Immobilier
Hervé CONORT
Appeler
Écrire
Mettre en avant cette annonce
Signaler une erreur

Localisation :

L'adresse exacte n'est pas renseignée. Le bien se situe dans cette zone.

Performance énergétique :

Logement économe
A
B
C
D
215
kWh/m²/an
46
kg CO₂/m²/an
E
F
G
Logement énergivore
Faible émission de CO₂
A
B
C
D
46
kg CO₂/m²/an
E
F
G
Forte émission de CO₂
Date du diagnostic : 24 octobre 2024
Annonces similaires
Annonces immobilières récentes