Appartement - 49 m² - 2 pièces à Vieille-Toulouse
favoris
692 € / mois
Description :
VIEILLE TOULOUSE T2 49 m2 situé au 2ème étage avec ascenseur dans résidence standing dans parc arboré de 8 hectares
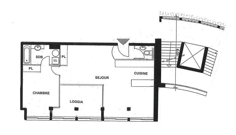
L'appartement se compose d'un séjour avec parquet massif donnant sur une grande loggia de 12 m2, une belle cuisine ouverte aménagée semi- équipée (plaque 4 feux, four et hotte espirante), une chambre avec placard, une salle de bain et un WC séparé. L'appartement est sans vis à vis avec une vue dégagée arborée.
Le chauffage est individuel électrique et le séjour est équipé de la climatisation réversible.
Deux parkings aériens et une cave sont disponibles avec l'appartement.
LOYER MENSUEL 612 EUR + 80 EUR DE PROVISIONS POUR CHARGES SOIT 692 EUR CHARGES COMPRISES
Afficher plus de détails
Informations sur ce bien :
L'intérieur :
-
2 pièces
-
49 m²Informations complémentairesSurface habitable : 50 m²
-
1 Chambre
-
Cuisine américaineInformations complémentairesAméricaine
-
1 Salle de bain
-
1 Toilette
-
Séjour de 26 m²
-
Cave
L'extérieur :
-
Terrasse
-
2 ParkingsInformations complémentairesExtérieur
Les équipements :
-
Ascenseur
-
Climatisation
Autres :
-
Chauffage :Individuel, Radiateur
-
Exposition :Ouest
-
Étage :2nd étageInformations complémentairesNombre d'étages de la construction : 3
Synthèse
Appartement à Vieille-Toulouse
692 € / mois
Surface :
49 m²
Transaction :
Location
Référence :
0679-7
Charges :
80 €
Remboursement annuel par le locataire
Informations complémentaires
Les charges sont inclues dans le loyer affichéRemboursement annuel par le locataire
Montant de la caution :
612 €
Honoraires :
538,18 €
Informations complémentaires
Dont honoraires état des lieux : 148,65 €
Disponibilité :
04/02/2026
Date de publication :
Aujourd'hui à 08:12
Contacter l'annonceur
Performance énergétique
A
B
C
D
E
F
G
Gaz à effet de serre
A
B
C
D
E
F
G
Agent
JCB IMMOBILIER
JCB immo
Mettre en avant cette annonce
Signaler une erreur
Localisation :
L'adresse exacte n'est pas renseignée. Le bien se situe dans cette zone.
Performance énergétique :
Logement économe
A
B
C
D
240
kWh/m²/an
11
kg CO₂/m²/an
E
F
G
Logement énergivore
Faible émission de CO₂
A
B
11
kg CO₂/m²/an
C
D
E
F
G
Forte émission de CO₂
Date du diagnostic :
03 octobre 2017
Locations d'appartements à proximité
- 5 locations d'appartements à Auzeville-Tolosane (3.1 km)
- 11 locations d'appartements à Ramonville-Saint-Agne (3.2 km)
- 2 locations d'appartements à Portet-sur-Garonne (3.6 km)
- 8 locations d'appartements à Castanet-Tolosan (4.7 km)
- 1 location d'appartement à Péchabou (5.9 km)
- 1 location d'appartement à Roques (5.9 km)
- 3 locations d'appartements à Pins-Justaret (6.7 km)
- 6 locations d'appartements à Labège (6.8 km)
- 1 location d'appartement à Roquettes (7.2 km)