• Bureau - 167 m²
  • Bureau - 167 m²
  • Bureau - 167 m²
  • Bureau - 167 m²
  • Bureau - 167 m²
  • Bureau - 167 m²
2 000 € HT / mois
167 m²

Description :

Bureaux à louer - excellente visibilité !

A l'entrée de Seichamps, à 15 minutes de Nancy-centre, sur une voie avec excellente visibilité, venez découvrir ces bureaux lumineux au 1er étage, d'une surface de 167 m2 !

Bénéficiez d'une façade sur rue d'environ 11,5 mètres de longueur, ainsi que de plusieurs places de parking, et de la possibilité d'avoir une petite surface de parc extérieur. L'accès à la propriété est sécurisé via un portail à code.

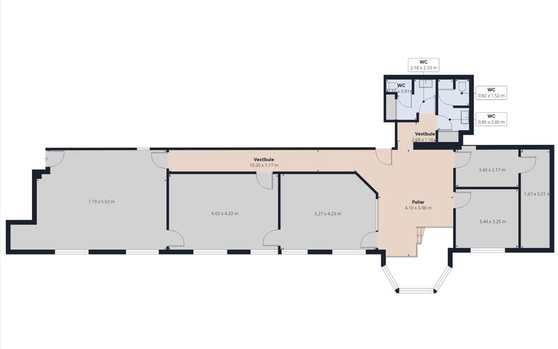
Les bureaux comportent :
1 hall d'accueil desservant les différentes pièces
1 bureau de 40 m2
1 bureau ou salle de réunion de 26 m2
1 bureau ou pièce d'accueil de 22 m2
1 bureau de 11 m2
1 pièce d'archives de 9 m2 attenante à 1 pièce de 7 m2
2 WC (WC homme et WC femme séparés)

Les menuiseries ont été remplacées il y a quelques mois. Travaux à prévoir : certains faux-plafonds, peintures etc. Possibilité de monter ou modifier des cloisons - il est possible de missionner le bailleur pour la réalisation des travaux.

Location à 1800€ HT/mois
Charges : 200€/mois

Consommation énergie primaire : 261 kWh/m²/an

Honoraires de 2 000 € à la charge du locataire. Provision sur charges 200 €/mois, régularisation annuelle. Dépôt de garantie 4 000 €. DPE en cours. Les informations sur les risques auxquels ce bien est exposé sont disponibles sur le site Géorisques : georisques.gouv.fr.

Votre conseiller Esprit Vif Immobilier : Miriam Abraham
Agent commercial (Entreprise individuelle)
RSAC 753 006 360 00022
RCP 314345482000

Afficher plus de détails

Informations sur ce bien :

L'intérieur :

  • 167 m²

L'extérieur :

  • Parking

Autres :

  • Année de construction :
    1950
  • Travaux à prévoir :
    Oui
  • Étage :
    RDC
Synthèse
Bureau à Seichamps
2 000 € HT / mois
Surface : 167 m²
Transaction :
Location (locaux professionnels)
Référence :
LP081-ESPRITVIF3
Charges :
200 €
Informations complémentaires
Les charges sont inclues dans le loyer affiché
Prévisionnelles mensuelles avec régularisation annuelle
Montant de la caution :
4 000 €
Honoraires :
2 000 €
Informations complémentaires
Honoraires hors taxes
Mandat :
Exclusif
Date de publication :
Il y a plus de 7 jours
Bureau - 167 m²
Agent
Esprit Vif Immobilier
Esprit Vif Immobilier
Appeler
Écrire
Mettre en avant cette annonce
Signaler une erreur

Localisation :

Annonces similaires
Annonces immobilières récentes