• Appartement - 27 m² - 3 pièces
862 € / mois
27 m²
3 pièces

Description :

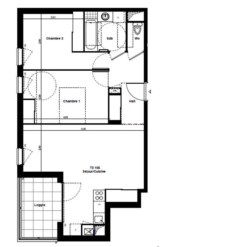
A105 - LE MARIUS - ST FONS. DANS UNE RESIDENCE RECENTE (2021) A FAIBLE CONSOMMATION ENERGETIQUE SYMPATHIQUE T3 avec pièce de vie de 27m² comprenant une cuisine US aménagée (plaques vitro, four, hotte, meubles hauts et bas) ouvrant sur un balcon. Un coin nuit desservant deux agréables chambres avec placard aménagé, salle de bain avec baignoire et vasque, WC séparés. Nombreux rangements. Garage individuel fermé en sous-sol sécurisé. CHAUFFAGE INDIVIDUEL AU GAZ. VIDEOPHONE. PROXIMITE COMMERCES ET TRANSPORTS.
CONSOMMATION TOTALE D'ENERGIE ESTIMEE ENTRE 525EUR et 711EUR/AN (prix moyen des énergies indéxées au 01/01/2021)

Les informations sur les risques auxquels ce bien est exposé sont disponibles sur le site Géorisques : www. georisques. gouv. fr

Afficher plus de détails

Informations sur ce bien :

L'intérieur :

  • 3 pièces
  • 27 m²

Autres :

  • Année de construction :
    2021
  • Étage :
    1er étage
Synthèse
Appartement à Saint-Fons
862 € / mois
Surface : 27 m²
Transaction :
Location
Référence :
9081
Charges :
89 €
Informations complémentaires
Les charges sont inclues dans le loyer affiché
Remboursement annuel par le locataire
Montant de la caution :
775 €
Honoraires :
825,24 €
Informations complémentaires
Dont honoraires état des lieux : 190,58 €
Mandat :
Exclusif
Disponibilité :
21/02/2026
Date de publication :
Aujourd'hui à 08:32
Appartement - 27 m² - 3 pièces
Performance énergétique
A
B
C
D
E
F
G
Gaz à effet de serre
A
B
C
D
E
F
G
Agent
CONFIANCE IMMOBILIER MONPLAISIR LOCATION
CONFIANCE IMMOBILIER MONPLAISIR LOCATION
Appeler
Écrire
Mettre en avant cette annonce
Signaler une erreur

Localisation :

L'adresse exacte n'est pas renseignée. Le bien se situe dans cette zone.

Performance énergétique :

Logement économe
A
B
C
68
kWh/m²/an
14
kg CO₂/m²/an
D
E
F
G
Logement énergivore
Faible émission de CO₂
A
B
C
14
kg CO₂/m²/an
D
E
F
G
Forte émission de CO₂
Date du diagnostic : 20 septembre 2021
Annonces similaires
Annonces immobilières récentes