• Appartement - 86 m² - 4 pièces
  • Appartement - 86 m² - 4 pièces
360 000 €
86 m²
4 pièces
3 chambres

Description :

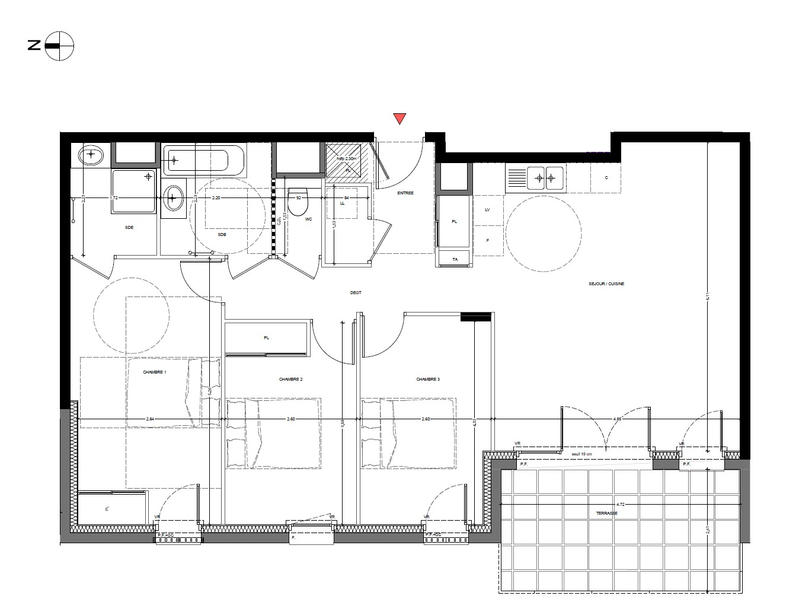
Appartement T4 -86,04m² - Saint-Félix (Rue du Brouillet) Au1er étage d'une résidence avec ascenseur, appartement de 86,04 m² comprenant : une entrée, un séjour avec cuisine ouverte donnant sur une terrasse de 11,39 m² exposée Ouest, trois chambres dont une belle suite parentale avec salle d'eau, une salle de bains et des toilettes séparées. Les prestations incluent un chauffage par pompe à chaleur air/eau, un carrelage en grès cérame 60x60 cm dans la pièce de vie, un parquet contrecollé dans les chambres ainsi que des menuiseries PVC plaxé à double vitrage thermique et acoustique. Le logement bénéficie d'une bonne luminosité et d'un environnement calme, sans vis-à-vis, à proximité immédiate du centre ville et des commodités. Accès rapide : 15 minutes d'Annecy, 18 minutes d'Aix-les-Bains, 30 minutes de Chambéry, 45 minutes de Genève, accès autoroute à 4 minutes. Stationnement double en sus. Référence : B102

Afficher plus de détails

Informations sur ce bien :

L'intérieur :

  • 4 pièces
  • 86 m²
    Informations complémentaires
    Surface Carrez : 86 m²
    Surface habitable : 86 m²
  • 3 Chambres
    Informations complémentaires
    Chambre 1 : Surface de 15 m², rdc
    Chambre 2 : Surface de 10 m², rdc
    Chambre 3 : Surface de 10 m², rdc
  • Cuisine ouverte
    Informations complémentaires
    Ouverte, rdc
  • 1 Salle de bain de 4 m²
    Informations complémentaires
    Rdc
  • 1 Salle d'eau de 3 m²
    Informations complémentaires
    Rdc
  • 1 Toilette de 1 m²
    Informations complémentaires
    Rdc
  • Séjour de 30 m²
    Informations complémentaires
    Surface de 29 m², rdc, exposition ouest
  • Cellier de 1 m²
    Informations complémentaires
    Rdc

L'extérieur :

  • Terrasse de 11 m²
  • Balcon
    Informations complémentaires
    Rdc, 11.39m²
  • 2 Parkings

Les équipements :

  • Ascenseur

Autres :

  • Chauffage :
    Individuel, Radiateur
  • État :
    Intérieur : Excellent, Extérieur : Très bon
  • Étage :
    1er étage
    Informations complémentaires
    Nombre d'étages de la construction : 3
  • Nombre de niveaux :
    1
Synthèse
Appartement à Saint-Félix
360 000 €
Surface : 86 m²
Prix au m² : 4 186 €
Transaction :
Achat
Référence :
910
Date de publication :
Il y a plus de 7 jours
Appartement - 86 m² - 4 pièces
Agent
Corner Immo
Corner Immo
Hadrien BOSTFFOCHER
Appeler
Écrire
Mettre en avant cette annonce
Signaler une erreur

Localisation :

L'adresse exacte n'est pas renseignée. Le bien se situe dans cette zone.

Performance énergétique :

Bien non soumis au Diagnostic de Performance Énergétique (DPE)

Annonces similaires
Annonces immobilières récentes