• Immeuble - 210 m² - 9 pièces
  • Immeuble - 210 m² - 9 pièces
  • Immeuble - 210 m² - 9 pièces
  • Immeuble - 210 m² - 9 pièces
  • Immeuble - 210 m² - 9 pièces
108 000 €
210 m²
9 pièces

Description :

SUR LA COMMUNE DE SAINT BUEIL, À VENDRE UN IMMEUBLE, À RÉNOVER ENTIÈREMENT, AU CENTRE DE SAINT BUEIL.

TRES BIEN SITUÉ, ENTRE PONT DE BEAUVOISIN ET VOIRON.

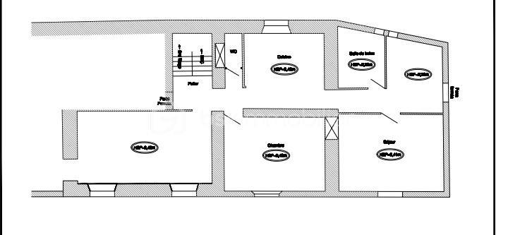
UN PROJET DE 3 APPARTEMENTS AVAIT ÉTÉ ENVISAGÉ ( PLANS FOURNIS )
UN COMPTEUR ÉLECTRIQUE ÉTAIT PRÉSENT AINSI QU'UN COMPTEUR D' EAU MAIS IL Y A DE NOMBREUSES ANNÉES, PAR CONTRE LE BÂTIMENT N' EST PAS RACCORDÉ AU TOUT À L' ÉGOUT, À PRÉVOIR.
IDÉAL POUR UN INVESTISSEUR OU AUTRE

Cette annonce référence 318085 vous est présentée par votre agent commercial BSK Immobilier GÉRALD GUILLAUD (EI) immatriculé au RSAC de VIENNE (38200) sous le numéro 39172014100020.

Prix du bien : 108 000,00 €
Les honoraires d'agence sont à la charge du vendeur.

Les informations sur les risques auxquels ce bien est exposé sont disponibles sur le site Géorisques : www.georisques.gouv.fr

Afficher plus de détails

Informations sur ce bien :

L'intérieur :

  • 9 pièces
  • 210 m²

Autres :

  • Année de construction :
    1900
Synthèse
Immeuble à Saint-Bueil
108 000 €
Surface : 210 m²
Prix au m² : 514 €
Transaction :
Achat
Référence :
318085
Date de publication :
Aujourd'hui à 08:21
Immeuble - 210 m² - 9 pièces
Agent
BSK Immobilier
BSK Immobilier
GÉRALD GUILLAUD
Appeler
Écrire
Mettre en avant cette annonce
Signaler une erreur

Localisation :

Annonces similaires
Annonces immobilières récentes