Retour
Rechercher
Lieu
Où ?
    Type de bien
    Quel type de projet ?
    Particulier Entreprise
    Quel type de bien ?
        Prix
        Quel budget ?
              Surface
              Quelle surface ?
                    Pièces
                    Combien de pièces ?
                      Combien de chambres ?
                          1

                          Vente d'immeuble à Plesder

                          Recherche 1
                          Carte
                          • Immeuble - 211 m² - 7 pièces
                          • Immeuble - 211 m² - 7 pièces
                          • Immeuble - 211 m² - 7 pièces
                          • Immeuble - 211 m² - 7 pièces
                          • Immeuble - 211 m² - 7 pièces
                          • Immeuble - 211 m² - 7 pièces Cliquez pour voir les 14 photos

                          Immeuble - 211 m² - 7 pièces

                          195 000 €
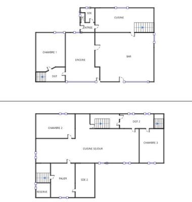
                          Iad France - Celine Poupon vous propose : MURS COMPOSES D'UN BAR-TABAC-EPICERIE ET D'UN APPARTEMENT SUR L'AXE RENNES / ST MALO Le rez-de-chaussée, d’une surface de 114 m² environ comprend le bar, l’épicerie, ainsi qu’une cuisine, une réserve donnant sur une terrasse de 50 m² environ exposée Sud, une salle d’eau et un WC séparé. À l’étage, un appartement de 97 m² environ avec de
                          Professionnel Publié il y a plus de 7 jours
                          Plesder 3 ch Terrasse
                          5

                          Ventes d'immeubles à Dinan

                          (10.2 km)
                          • Immeuble - 135 m²
                          • Immeuble - 135 m²

                          Immeuble - 135 m²

                          274 540 €
                          Immeuble DINAN, ensemble immobilier centre historique de Dinan. Idéal investisseur ou commerçant souhaitant un logement au dessus de son commerce. Immeuble de rapport. CU déposé. Très beau potentiel locatif sur un projet de trois logements plus local commercial. Composé de : - au rez-de-chaussée : local commercial - au 1er étage : à rénover - au 2 ème étage : à rénover total
                          Professionnel Publié il y a plus de 7 jours
                          Dinan Parking
                          • Immeuble - 210 m²
                          • Immeuble - 210 m²
                          • Immeuble - 210 m²
                          • Immeuble - 210 m²
                          • Immeuble - 210 m²
                          • Immeuble - 210 m² Cliquez pour voir les 8 photos

                          Immeuble - 210 m²

                          840 000 €
                          Découvrez cette magnifique opportunité d'investissement dans un immeuble historique, métamorphosé en un havre de paix pour les voyageurs en quête d'authenticité et de confort. Situé dans un cadre enchanteur, cet édifice de trois étages, rénové en 1992, allie le charme d'antan à des commodités modernes. Imaginez-vous gérer un établissement touristique de standing, où chaque sui
                          Professionnel Publié il y a plus de 7 jours
                          Dinan Parking
                          • Immeuble - 164 m²
                          • Immeuble - 164 m²
                          • Immeuble - 164 m²
                          • Immeuble - 164 m²

                          Immeuble - 164 m²

                          299 000 €
                          Situé dans la charmante ville de Dinan (22100), cet immeuble à usage d'habitation offre un emplacement central prisé, à proximité des écoles, du lycée, du collège, des commerces, et du centre-ville animé. Dinan, ville dynamique et conviviale, présente un environnement agréable avec son port pittoresque. Les menuiseries se composent de simple vitrage et d'une baie vitrée, offra
                          Professionnel Publié il y a plus de 7 jours Non géolocalisée
                          Dinan
                          • Immeuble - 90 m²
                          • Immeuble - 90 m²
                          • Immeuble - 90 m²
                          • Immeuble - 90 m²
                          • Immeuble - 90 m²
                          • Immeuble - 90 m² Cliquez pour voir les 13 photos

                          Immeuble - 90 m²

                          219 450 €
                          Exclusivité. A Vendre chez Christelle Mesnage Immobilier, DINAN CENTRE, un immeuble comprenant un local commercial loué avec vitrine de 20m² environ ayant pignon sur rue et un appartement loué en triplex de 90 m² de surface habitables offrant : une entrée une cuisine équipée, un séjour, une salle de bains équipée, trois chambres, un petit cellier. Idéal investisseur. Proximité
                          Professionnel Publié il y a plus de 7 jours Non géolocalisée
                          Dinan Parking
                          • Immeuble - 90 m²
                          • Immeuble - 90 m²
                          • Immeuble - 90 m²
                          • Immeuble - 90 m²
                          • Immeuble - 90 m²
                          • Immeuble - 90 m² Cliquez pour voir les 13 photos

                          Immeuble - 90 m²

                          219 450 €
                          Exclusivité. A Vendre chez Christelle Mesnage Immobilier, DINAN CENTRE, un immeuble comprenant un local commercial loué avec vitrine de 20m² environ ayant pignon sur rue et un appartement loué en triplex de 90 m² de surface habitables offrant : une entrée une cuisine équipée, un séjour, une salle de bains équipée, trois chambres, un petit cellier.  Idéal investisseur. Proximité
                          Professionnel Publié il y a plus de 7 jours
                          Dinan
                          1

                          Vente d'immeuble à La Ville-ès-Nonais

                          (15.4 km)
                          • Immeuble - 140 m²
                          • Immeuble - 140 m²
                          • Immeuble - 140 m²
                          • Immeuble - 140 m²
                          • Immeuble - 140 m²
                          • Immeuble - 140 m² Cliquez pour voir les 16 photos

                          Immeuble - 140 m²

                          250 000 €
                          Iad France - Thibaut Morel vous propose : BORDS DE RANCE - Sur la commune de LA VILLE ES NONAIS - Idéalement située à moins de 10 minutes en voiture de Saint-Malo et de Dinan - En centre-bourg - Immeuble divisé en deux logements et un grand garage : - Le premier appartement au rez de chaussée se compose d'un séjour avec cuisine ouverte, un dégagement desservant une chambre, un
                          Professionnel Publié il y a plus de 7 jours
                          La Ville-ès-Nonais 3 ch
                          1

                          Vente d'immeuble à Châteauneuf-d'Ille-et-Vilaine

                          (16.6 km)
                          • Immeuble - 80 m² - 4 pièces
                          • Immeuble - 80 m² - 4 pièces
                          • Immeuble - 80 m² - 4 pièces
                          • Immeuble - 80 m² - 4 pièces
                          • Immeuble - 80 m² - 4 pièces
                          • Immeuble - 80 m² - 4 pièces Cliquez pour voir les 15 photos

                          Immeuble - 80 m² - 4 pièces

                          227 640 €
                          Votre conseiller Noovimo Frédérique COLLET 06 36 100 999 fcollet@noovimo.fr vous propose à Chateauneuf d'Ille-et-Vilaine : Situé en plein centre-ville de Châteauneuf-d'Ille-et-Vilaine, à proximité immédiate de Saint-Malo et accès rapide vers Rennes, cet ensemble immobilier à usage commercial offre un fort potentiel de rénovation et de valorisation, aussi bien pour un projet d'i
                          Professionnel Publié il y a plus de 7 jours Non géolocalisée
                          Châteauneuf-d'Ille-et-Vilaine 2 ch
                          1

                          Vente d'immeuble à Médréac

                          (19.3 km)
                          • Immeuble - 155 m²
                          • Immeuble - 155 m²
                          • Immeuble - 155 m²
                          • Immeuble - 155 m²
                          • Immeuble - 155 m²
                          • Immeuble - 155 m² Cliquez pour voir les 10 photos

                          Immeuble - 155 m²

                          276 395 €
                          SOUS COMPROMIS ! IMMEUBLE EN MONOPROPRIETE à Médréac 155 m2 EN EXCLUSIVITE Un T4 : - au rdc : Salon / séjour / cuisine, wc; - au 1er étage : Dégagement, chambre, bureau, salle de bains, wc; - au 2ème étage : Dégagement, chambre ; Jardin. T3 : - au rdc : Dégagement, buanderie; - au 1er étage : Dégagement, salon / séjour / cuisine, salle d'eau, wc; - au 2ème étage : Dégagement, c
                          Professionnel Publié il y a plus de 7 jours Non géolocalisée
                          Médréac Parking
                          1

                          Vente d'immeuble à Guipel

                          (19.5 km)
                          Immeuble - 600 m²

                          Immeuble - 600 m²

                          890 800 €
                          Nord de Rennes, centre bourg, proche toutes commodités, immeuble de rapport composé de 11 appartements, du T1 au T4, Rénovés en 2000, en parfait état, actuellement loués, très bon rapport locatif, 8 garages privatifs 25 m2 en moyenne, 14 places de parking. Rapport locatif annuel 54 000 Euros.
                          Professionnel Publié il y a plus de 7 jours
                          Guipel
                          1

                          Vente d'immeuble à Dol-de-Bretagne

                          (19.6 km)
                          • Immeuble - 130 m²
                          • Immeuble - 130 m²
                          • Immeuble - 130 m²
                          • Immeuble - 130 m²
                          • Immeuble - 130 m²
                          • Immeuble - 130 m² Cliquez pour voir les 6 photos

                          Immeuble - 130 m²

                          159 000 €
                          "EXCLUSIVITÉ" Immeuble situé en centre-ville comprenant trois plateaux d'environ 45 m² au sol à réhabiliter, dont un grand garage. Rejointoiement des murs, toiture, dalle béton et viabilisation : OK. Idéal pour un projet de rénovation, un investissement locatif ou l'installation d'une profession libérale. Ce bien offre un excellent potentiel dans un environnement calme et agr
                          Professionnel Publié le 05 mars à 08:31
                          Dol-de-Bretagne Parking
                          1

                          Vente d'immeuble à Montreuil-sur-Ille

                          (22.1 km)
                          Immeuble - 230 m²

                          Immeuble - 230 m²

                          185 500 €
                          Proche gare et toutes commodités, belle maison de caractère de 230 m 2, divisée en 5 appartements, possibilité 6ème appartement. Bon état du gros œuvre, prévoir travaux. Conviendrait à investisseur. Le tout sur un terrain de 600 m 2.
                          Professionnel Publié il y a plus de 7 jours
                          Montreuil-sur-Ille
                          1

                          Vente d'immeuble à Montreuil-le-Gast

                          (23.4 km)
                          • Immeuble - 197 m²
                          • Immeuble - 197 m²
                          • Immeuble - 197 m²
                          • Immeuble - 197 m²
                          • Immeuble - 197 m²
                          • Immeuble - 197 m² Cliquez pour voir les 10 photos

                          Immeuble - 197 m²

                          270 400 €
                          Iad France - Thomas Herfray vous propose : IMMEUBLE À USAGE MIXTE – BAR / RELAIS POSTE AVEC LOGEMENT – MONTREUIL-LE-GAST À Montreuil-le-Gast (35520), venez découvrir cet immeuble à usage mixte composé de murs commerciaux en rez-de-chaussée et d’un appartement d’habitation à l’étage, offrant une configuration idéale pour un exploitant, un investisseur ou un projet mêlant activit
                          Professionnel Publié il y a plus de 7 jours
                          Montreuil-le-Gast
                          1

                          Vente d'immeuble à Saint-Méloir-des-Ondes

                          (24.9 km)
                          • Immeuble - 200 m²
                          • Immeuble - 200 m²
                          • Immeuble - 200 m²
                          • Immeuble - 200 m²
                          • Immeuble - 200 m²
                          • Immeuble - 200 m² Cliquez pour voir les 24 photos

                          Immeuble - 200 m²

                          575 000 €
                          Iad France - Dylan Housson vous propose : IMMEUBLE DE RAPPORT ! Propriété exceptionnelle comprenant 4 logements : deux logements T3 duplex et deux logements T2. Située dans un environnement bucolique et préservé, cette magnifique propriété de caractère est un véritable joyau niché à Saint Méloir des Ondes. Ce bien d'exception offre un espace idéal pour accueillir des vacanciers
                          Professionnel Publié il y a plus de 7 jours
                          Saint-Méloir-des-Ondes
                          3

                          Ventes d'immeubles à Montauban-de-Bretagne

                          (25.3 km)
                          • Immeuble - 547 m²
                          • Immeuble - 547 m²
                          • Immeuble - 547 m²
                          • Immeuble - 547 m²
                          • Immeuble - 547 m²
                          • Immeuble - 547 m² Cliquez pour voir les 6 photos

                          Immeuble - 547 m²

                          930 000 €
                          Iad France - Thomas Rosais vous propose : IMMEUBLE DE RAPPORT EN MONOPROPRIÉTÉ EXCLUSIVITÉ - MONTAUBAN-DE-BRETAGNE – Centre Bourg Immeuble de rapport idéalement situé en centre-ville de Montauban-de-Bretagne (Accessible par la N12 et la Gare), vendu entièrement loué, comprenant 11 appartements : •4 T2 (40,93 m² / 43,49 m² / 31,90 m² / 30,70 m²) •4 T1 Bis (dont un avec WC sur le
                          Professionnel Publié il y a plus de 7 jours
                          Montauban-de-Bretagne
                          • Immeuble - 547 m²
                          • Immeuble - 547 m²
                          • Immeuble - 547 m²
                          • Immeuble - 547 m²
                          • Immeuble - 547 m²

                          Immeuble - 547 m²

                          931 500 €
                          AG IMMOBILIER-COMMISSIONS REDUITES - PACE : EXCLUSIVITE AGENCE ! IDEAL INVESTISSEURS ! MONTAUBAN DE BRETAGNE, Centre Bourg ! IMMEUBLE DE RAPPORT EN MONOPROPRIETE comprenant 11 appartements et un local commercial à usage de restaurant. Entrée sécurisée par badge, Hall d'entrée, Parties communes, Chaufferie, Greniers. - 4 Apartements Type 2 (40.93 m² / 43.49 m² / 31.9 m² / 30.7 m
                          Professionnel Publié il y a plus de 7 jours
                          Montauban-de-Bretagne Parking
                          • Immeuble - 118 m²
                          • Immeuble - 118 m²
                          • Immeuble - 118 m²
                          • Immeuble - 118 m²
                          • Immeuble - 118 m²
                          • Immeuble - 118 m² Cliquez pour voir les 11 photos

                          Immeuble - 118 m²

                          205 200 €
                          APPARTEMENTS x 2 dans le CENTRE de MONTAUBAN DE BRETAGNE rénovés en 2023 IDEAL INVESTISSEUR : T2 de 41 m² déjà loué + T3 de 76 m² libre, avec greniers, caves, jardins et garage, dans un immeuble ancien. Le T2 situé au rez-de-chaussée, est déjà loué et comprend : une cuisine aménagée et équipée / salon (25 m² env), 1 chambre avec salle d'eau /wc, 2 caves. Il est chauffé au fuel
                          Professionnel Publié il y a plus de 7 jours Non géolocalisée
                          Montauban-de-Bretagne Parking
                          1

                          Vente d'immeuble à Bazouges-la-Pérouse

                          (25.7 km)
                          • Immeuble - 285 m²
                          • Immeuble - 285 m²
                          • Immeuble - 285 m²
                          • Immeuble - 285 m²
                          • Immeuble - 285 m²
                          • Immeuble - 285 m² Cliquez pour voir les 9 photos

                          Immeuble - 285 m²

                          333 500 €
                          Situé dans la charmante commune de Bazouges-la-Pérouse (35560), cet immeuble en pierre de 1850 offre un cadre pittoresque et authentique. Ville chargée d'histoire, Bazouges-la-Pérouse est réputée pour son patrimoine préservé et sa tranquillité, offrant un cadre de vie unique. Proche des commerces locaux et des sites touristiques, cette localité bénéficie d'un environnement agré
                          Professionnel Publié il y a plus de 7 jours Non géolocalisée
                          Bazouges-la-Pérouse
                          1

                          Vente d'immeuble à Dinard

                          (26.3 km)
                          Immeuble - 54 m² - 3 pièces

                          Immeuble - 54 m² - 3 pièces

                          262 000 €
                          SPÉCIAL INVESTISSEUR DINARD - HYPER CENTRE - EMPLACEMENT N°1 - MURS COMMERCIAUX LOUES Rare à la vente, dans l'hyper-centre de DINARD, murs commerciaux loués par bail commercial de 9 années - Emplacement numéro 1. Surface totale de 53.65 m² comprenant : au rez-de-chaussée un magasin, une pièce réserve au 1er niveau, une chambre avec salle d'eau au 2nd niveau. Cave. Les pièces
                          Professionnel Publié il y a plus de 7 jours Non géolocalisée
                          Dinard
                          3

                          Ventes d'immeubles à Saint-Malo

                          (27.3 km)
                          Immeuble - 275 m²

                          Immeuble - 275 m²

                          833 000 €
                          Rare à la vente, à Saint Malo Saint Servan, immeuble de rapport à usage mixte de 275m², comprenant un local commercial de 79m², au premier étage un appartement T3 de 76m², au deuxième étage un T2 de 54m² et un duplex T3 de 66m².Le tout est complété d'une cave courette à l'arrière, une terrasse et deux cagibis. Le bien est vendu loué dans sa totalité. Emplacement privilégié et b
                          Professionnel Publié il y a plus de 7 jours Non géolocalisée
                          Saint-Malo
                          • Immeuble - 119 m²
                          • Immeuble - 119 m²
                          • Immeuble - 119 m²
                          • Immeuble - 119 m²
                          • Immeuble - 119 m²
                          • Immeuble - 119 m² Cliquez pour voir les 6 photos

                          Immeuble - 119 m²

                          488 330 €
                          SAINT MALO, au calme un immeuble divisé en deux appartements actuellement loués. Au rez de chaussée : un appartement d'environ 50m², comprenant un séjour ouvrant sur terrasse et jardin privatif, cuisine aménagée, une chambre, un bureau, salle d'eau, Wc, loué 704 euros/mois A l'étage : un appartement en duplex de 70m² environ comprenant : au premier niveau : une entrée, un sal
                          Professionnel Publié il y a plus de 7 jours Non géolocalisée
                          Saint-Malo
                          Immeuble - 200 m²

                          Immeuble - 200 m²

                          1 650 000 €
                          Immeuble pour location touristiqueSAINT MALO Emplacement N°1 Excellent rendement locatif & taux de remplissage. Découvrez un véritable joyau immobilier, un immeuble en excellent état intérieur. Cet immeuble est composé de plusieurs appartements et bénéficie même d'un petit jardin. Ne manquez pas cette opportunité unique de posséder un bien d'exception. EMPLACEMENT NUMÉRO 1
                          Professionnel Publié il y a plus de 7 jours Non géolocalisée
                          Saint-Malo Parking
                          1

                          Vente d'immeuble à Jugon-les-Lacs

                          (29.4 km)
                          • Immeuble - 242 m²
                          • Immeuble - 242 m²
                          • Immeuble - 242 m²
                          • Immeuble - 242 m²
                          • Immeuble - 242 m²
                          • Immeuble - 242 m² Cliquez pour voir les 8 photos

                          Immeuble - 242 m²

                          321 425 €
                          Rare à la vente!!! Vend immeuble sur 3 étages au cœur de cette jolie cité de caractère ,à proximité du lac et sa station sport nature. Au rez-de-chaussée: un restaurant entièrement refait à neuf avec sa terrasse privative de 100 mètres carré ,exposé sud-est . Au 2-ème et 3-ème étages, un appartement comprenant 3 chambres ,1 salon séjour de 40 mètres carré et d 'une salle de
                          Professionnel Publié il y a plus de 7 jours Non géolocalisée
                          Jugon-les-Lacs 3 ch
                          1

                          Vente d'immeuble à Cancale

                          (29.8 km)
                          • Immeuble - 296 m²
                          • Immeuble - 296 m²
                          • Immeuble - 296 m²
                          • Immeuble - 296 m²
                          • Immeuble - 296 m²
                          • Immeuble - 296 m² Cliquez pour voir les 11 photos

                          Immeuble - 296 m²

                          675 350 €
                          CANCALE, PLEIN CENTRE, un immeuble à usage de commerces et d'habitation, d'environ 300m², à rénover avec dépendances
                          Professionnel Publié il y a plus de 7 jours Non géolocalisée
                          Cancale
                          1

                          Vente d'immeuble à Roz-sur-Couesnon

                          (31.3 km)
                          • Immeuble - 223 m² - 11 pièces
                          • Immeuble - 223 m² - 11 pièces
                          • Immeuble - 223 m² - 11 pièces
                          • Immeuble - 223 m² - 11 pièces
                          • Immeuble - 223 m² - 11 pièces
                          • Immeuble - 223 m² - 11 pièces Cliquez pour voir les 13 photos

                          Immeuble - 223 m² - 11 pièces

                          720 000 €
                          Ensemble immobilier de 223 m² entièrement aménagé et meublé à Roz sur Couesnon (35610) Proposé par Nadège Garavaglia, BSK Immobilier Découvrez cet ensemble immobilier neuf (en cours, sera fini pour la vente), idéalement situé à Roz sur Couesnon, offrant un potentiel exceptionnel pour la location courte durée ou une activité de gîte. Composé de trois logements modernes, entière
                          Professionnel Publié il y a plus de 7 jours
                          Roz-sur-Couesnon Piscine Parking
                          1

                          Vente d'immeuble à Saint-Pôtan

                          (31.6 km)
                          • Immeuble - 290 m²
                          • Immeuble - 290 m²
                          • Immeuble - 290 m²
                          • Immeuble - 290 m²
                          • Immeuble - 290 m²
                          • Immeuble - 290 m² Cliquez pour voir les 13 photos

                          Immeuble - 290 m²

                          180 000 €
                          Iad France - Ingrid Van-Rell vous propose : À vendre – Murs Restaurant – plus de 300 m² – Bourg de Saint-Potan Au cOEur du charmant bourg de Saint-Potan, découvrez cette belle opportunité : un établissement avec du cachet, prêt à accueillir votre projet professionnel. Caractéristiques principales : Surface totale : 300 m² Rez-de-chaussée : grande cuisine professionnelle de 45 m
                          Professionnel Publié il y a plus de 7 jours
                          Saint-Pôtan
                          2

                          Ventes d'immeubles à Saint-Méen-le-Grand

                          (31.9 km)
                          • Immeuble - 127 m²
                          • Immeuble - 127 m²
                          • Immeuble - 127 m²
                          • Immeuble - 127 m²
                          • Immeuble - 127 m²
                          • Immeuble - 127 m² Cliquez pour voir les 18 photos

                          Immeuble - 127 m²

                          194 000 €
                          Iad France - Oceane Pirault vous propose : *Pour toute information, merci de me contacter exclusivement par téléphone * Projet Investisseur : Sa situation : en centre bourg de Saint Méen Le Grand, avec l'accès à l'ensemble des commerces de proximité (boulangerie, boucher, restaurants, spar, café. ) La possibilité de se déplacer en bus ligne à 200m. Un ensemble de deux apparteme
                          Professionnel Publié il y a plus de 7 jours
                          Saint-Méen-le-Grand
                          • Immeuble - 459 m² - 25 pièces
                          • Immeuble - 459 m² - 25 pièces
                          • Immeuble - 459 m² - 25 pièces
                          • Immeuble - 459 m² - 25 pièces
                          • Immeuble - 459 m² - 25 pièces
                          • Immeuble - 459 m² - 25 pièces Cliquez pour voir les 15 photos

                          Immeuble - 459 m² - 25 pièces

                          343 000 €
                          Iad France - Sabrina LORILLEC vous propose : Immeuble des années 1970 - Emplacement idéal - Fort potentiel Découvrez cet immeuble construit dans les années 1970, offrant un fort potentiel pour divers projets. Superficie généreuse : Profitez de 459 m² de surface, répartis en environ 25 pièces. Cet agencement offre une grande flexibilité pour répondre à tous vos besoins. Grand pa
                          Professionnel Publié il y a plus de 7 jours
                          Saint-Méen-le-Grand
                          1

                          Vente d'immeuble à Gahard

                          (32.4 km)
                          • Immeuble - 388 m² - 14 pièces
                          • Immeuble - 388 m² - 14 pièces
                          • Immeuble - 388 m² - 14 pièces
                          • Immeuble - 388 m² - 14 pièces
                          • Immeuble - 388 m² - 14 pièces
                          • Immeuble - 388 m² - 14 pièces Cliquez pour voir les 24 photos

                          Immeuble - 388 m² - 14 pièces

                          436 000 €
                          Seulement chez Emilie MARTIN - BSK IMMOBILIER - Un bien aux multiples atouts !! Rez-de-chaussée : Profitez d'un espace commercial polyvalent, composé d'un magasin et d'un bar/restaurant avec des pierres apparantes. Un bureau, une cuisine fonctionnelle et un jardin privatif, rare pour ce type de bien, viennent compléter cet étage. Ce premier niveau peut être divisé en trois pou
                          Professionnel Publié il y a plus de 7 jours
                          Gahard
                          2

                          Ventes d'immeubles à Antrain

                          (32.7 km)
                          • Immeuble - 9 pièces
                          • Immeuble - 9 pièces
                          • Immeuble - 9 pièces
                          • Immeuble - 9 pièces
                          • Immeuble - 9 pièces
                          • Immeuble - 9 pièces Cliquez pour voir les 17 photos

                          Immeuble - 9 pièces

                          199 500 €
                          Dans le bourg de ANTRAIN - VAL COUESNON Bel immeuble en pierres reconstruit en 1980, composé de 2 lots : un commerce d'environ 45m2 actuellement loué 580 euros/mois + 30 euros (provision eau) et un appartement en duplex d'environ 140m² libre de bail. L'immeuble dispose au REZ-DE-CHAUSSEE : Un commerce - salon de coiffure - un garage rattaché à l'appartement, des parties commu
                          Professionnel Publié il y a plus de 7 jours
                          Antrain 5 ch Standing
                          • Immeuble - 336 m² - 12 pièces
                          • Immeuble - 336 m² - 12 pièces
                          • Immeuble - 336 m² - 12 pièces
                          • Immeuble - 336 m² - 12 pièces
                          • Immeuble - 336 m² - 12 pièces
                          • Immeuble - 336 m² - 12 pièces Cliquez pour voir les 16 photos

                          Immeuble - 336 m² - 12 pièces

                          298 500 €
                          VAL COUESNON - Bâtiment de 336m² libre de bail Fort potentiel pour cette ancienne maison médicale de 336 m² située dans le village de TREMBLAY (35). Construite en 1991 et avec une restructuration en 1997, ce local professionnel dispose aujourd'hui de 300m² de plain-pied environ, actuellement agencé en plusieurs bureaux (8) et salles d'attentes. A l'étage vous trouverez un ap
                          Professionnel Publié il y a plus de 7 jours
                          Antrain Standing

                          Achat d'un immeuble à Plesder. Toutes les ventes immobilières à Plesder et aux environs. Immeuble à vendre.

                          Recherche en cours...
                          Rechercher dans cette zone