Retour
Rechercher
Lieu
Où ?
    Type de bien
    Quel type de projet ?
    Particulier Entreprise
    Quel type de bien ?
        Prix
        Quel budget ?
              Surface
              Quelle surface ?
                    Pièces
                    Combien de pièces ?
                      Combien de chambres ?
                          45

                          Ventes de maisons à Périgny

                          Recherche 45
                          Carte
                          • Maison - 61 m² - 4 pièces
                          • Maison - 61 m² - 4 pièces
                          • Maison - 61 m² - 4 pièces
                          • Maison - 61 m² - 4 pièces
                          • Maison - 61 m² - 4 pièces
                          • Maison - 61 m² - 4 pièces Cliquez pour voir les 12 photos

                          Maison - 61 m² - 4 pièces

                          332 152 €
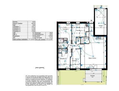
                          Maison neuve à construire MAGNOLIA_2CH_61_V1 BELLE MAISON DE 2 CHAMBRES Cette maison de 2 chambres offre une distribution optimisée des pièces. Ce plan compact et fonctionnel a été pensé pour faciliter l'accès à la propriété avec un budget maîtrisé. • Lumineuse avec cuisine ouverte donnant sur son jardin. • Beaux volumes et distribution optimisée des pièces pour votre confor
                          Professionnel Publié le 22 avril à 08:34 Non géolocalisée
                          Périgny 2 ch
                          • Maison - 130 m² - 6 pièces
                          • Maison - 130 m² - 6 pièces
                          • Maison - 130 m² - 6 pièces
                          • Maison - 130 m² - 6 pièces
                          • Maison - 130 m² - 6 pièces
                          • Maison - 130 m² - 6 pièces Cliquez pour voir les 6 photos

                          Maison - 130 m² - 6 pièces

                          690 000 €
                          Située dans le très prisé quartier de Rompsay, à seulement quelques pas du canal et à 10 minutes à vélo du centre-ville et de la gare de La Rochelle, cette magnifique maison de 130 m², entièrement rénovée, vous séduira par son environnement calme, sans vis-à-vis, son exposition sud-ouest et son cadre de vie privilégié ! Dès l'entrée, vous découvrez une cuisine entièrement aména
                          Professionnel Publié le 22 avril à 07:08
                          Périgny 4 ch 2 sdb Terrasse Parking Exposition Ouest
                          • Maison de ville - 99 m² - 4 pièces
                          • Maison de ville - 99 m² - 4 pièces
                          • Maison de ville - 99 m² - 4 pièces
                          • Maison de ville - 99 m² - 4 pièces
                          • Maison de ville - 99 m² - 4 pièces
                          • Maison de ville - 99 m² - 4 pièces Cliquez pour voir les 6 photos

                          Maison de ville - 99 m² - 4 pièces

                          444 000 €
                          Découvrez cette maison familiale T4 à proximité du Canal de Rompsay. Orientée SUD, elle se compose : - d'une spacieuse pièce de vie baignée de lumière, ouverte sur une TERRASSE et un JARDIN orientés SUD. - une BUANDERIE + un GARAGE individuel. - trois chambres. - deux salles d'eau. Maison neuve (Chauffage avec Pompe à Chaleur) - Photos non contractuelles - Charges réduites F
                          Professionnel Publié le 21 avril à 08:42 Non géolocalisée
                          Périgny 3 ch 2 sdb Terrasse Parking
                          • Maison de ville - 129 m² - 5 pièces
                          • Maison de ville - 129 m² - 5 pièces
                          • Maison de ville - 129 m² - 5 pièces
                          • Maison de ville - 129 m² - 5 pièces
                          • Maison de ville - 129 m² - 5 pièces
                          • Maison de ville - 129 m² - 5 pièces Cliquez pour voir les 9 photos

                          Maison de ville - 129 m² - 5 pièces

                          564 000 €
                          Découvrez cette maison familiale T5 à proximité du Canal de Rompsay. Orientée SUD, elle se compose : - d'une spacieuse pièce de vie baignée de lumière, ouverte sur une TERRASSE et un grand JARDIN orientés SUD. - une BUANDERIE + un GARAGE individuel et une place de PARKING extérieure. - quatre chambres. - deux salles d'eau. Maison neuve (Chauffage avec Pompe à Chaleur) - Phot
                          Professionnel Publié le 21 avril à 08:42 Non géolocalisée
                          Périgny 4 ch 2 sdb Terrasse Parking
                          • Maison de ville - 114 m² - 5 pièces
                          • Maison de ville - 114 m² - 5 pièces
                          • Maison de ville - 114 m² - 5 pièces
                          • Maison de ville - 114 m² - 5 pièces
                          • Maison de ville - 114 m² - 5 pièces
                          • Maison de ville - 114 m² - 5 pièces Cliquez pour voir les 8 photos

                          Maison de ville - 114 m² - 5 pièces

                          494 000 €
                          Idéalement située à proximité du canal de Rompsay, cette maison neuve offre un cadre de vie fonctionnel et une luminosité optimale grâce à son exposition SUD. L'AGENCEMENT : - Pièce de vie : Un beau volume lumineux avec accès direct à la TERRASSE et au grand JARDIN (exposés SUD). - Commodités : Une BUANDERIE attenante, un GARAGE individuel et une place de PARKING extérieure. -
                          Professionnel Publié le 21 avril à 08:42 Non géolocalisée
                          Périgny 4 ch 2 sdb Terrasse Parking
                          • Maison - 90 m² - 5 pièces
                          • Maison - 90 m² - 5 pièces
                          • Maison - 90 m² - 5 pièces
                          • Maison - 90 m² - 5 pièces
                          • Maison - 90 m² - 5 pièces
                          • Maison - 90 m² - 5 pièces Cliquez pour voir les 18 photos

                          Maison - 90 m² - 5 pièces

                          367 500 €
                          Maison évolutive avec grand jardin - Bourg de Périgny Au coeur de PERIGNY, à seulement 7 minutes à pied des commerces et des écoles de la place de la Pommeraie, cette maison indépendante en rez-de-chaussée surélevé séduit par son fort potentiel et ses nombreuses possibilités d'aménagement. Implantée sur une parcelle de 574 m², close et piscinable, elle bénéficie de deux accès
                          Professionnel Publié il y a plus de 7 jours Non géolocalisée
                          Périgny 3 ch 1 sdb Terrasse Parking
                          • Maison - 135 m² - 5 pièces
                          • Maison - 135 m² - 5 pièces
                          • Maison - 135 m² - 5 pièces
                          • Maison - 135 m² - 5 pièces
                          • Maison - 135 m² - 5 pièces
                          • Maison - 135 m² - 5 pièces Cliquez pour voir les 17 photos

                          Maison - 135 m² - 5 pièces

                          517 000 €
                          Située dans le secteur très recherché de Rompsay, à seulement 100 mètres du canal et des pistes cyclables, cette superbe maison offre un cadre de vie exceptionnel aux portes de La Rochelle. Un véritable atout au quotidien : vous rejoignez le centre-ville en seulement 10 minutes à vélo en longeant le canal, ou en quelques minutes en voiture. Dès l'entrée, vous découvrez un espac
                          Professionnel Publié il y a plus de 7 jours
                          Périgny 3 ch 2 sdb Terrasse Parking
                          • Maison contemporaine - 130 m² - 4 pièces
                          • Maison contemporaine - 130 m² - 4 pièces
                          • Maison contemporaine - 130 m² - 4 pièces
                          • Maison contemporaine - 130 m² - 4 pièces
                          • Maison contemporaine - 130 m² - 4 pièces
                          • Maison contemporaine - 130 m² - 4 pièces Cliquez pour voir les 24 photos

                          Maison contemporaine - 130 m² - 4 pièces

                          520 000 €
                          Maison familiale 130 m² avec jardin, terrasses et stationnements - Périgny rompsay (17180) Idéalement située à Périgny, dans un environnement calme et recherché, cette maison entièrement rénovée offre des prestations modernes, une belle luminosité et un fort potentiel d'aménagement. Proche des commerces, écoles et commodités. Rez-de-chaussée : Entrée desservant un salon-séjour
                          Professionnel Publié il y a plus de 7 jours Non géolocalisée
                          Périgny 3 ch 2 sdb Terrasse Balcon Parking
                          • Maison - 150 m² - 7 pièces
                          • Maison - 150 m² - 7 pièces
                          • Maison - 150 m² - 7 pièces
                          • Maison - 150 m² - 7 pièces
                          • Maison - 150 m² - 7 pièces
                          • Maison - 150 m² - 7 pièces Cliquez pour voir les 18 photos

                          Maison - 150 m² - 7 pièces

                          670 000 €
                          Magnifique maison familiale rénovée avec appartement indépendant et piscine – Périgny Située dans la ville très prisée de Périgny, au calme et sans vis-à-vis, cette maison familiale entièrement rénovée offre des prestations de qualité sur une surface principale de 110 m², complétée par un appartement indépendant de 40 m², le tout sur un terrain de 435 m² avec piscine. La mais
                          Professionnel Publié il y a plus de 7 jours
                          Périgny 5 ch 3 sdb Terrasse Parking Exposition Est
                          • Maison - 155 m² - 5 pièces
                          • Maison - 155 m² - 5 pièces
                          • Maison - 155 m² - 5 pièces
                          • Maison - 155 m² - 5 pièces
                          • Maison - 155 m² - 5 pièces
                          • Maison - 155 m² - 5 pièces Cliquez pour voir les 11 photos

                          Maison - 155 m² - 5 pièces

                          599 500 €
                          Coup de coeur ! En exclusivité chez Rochella Immobilier, maison de plain- pied, non mitoyenne, située sur la commune recherchée de Périgny. Rénovée complètement en 2018 avec des matériaux de qualité, elle se compose d'une entrée avec placards, d'une belle pièce de vie traversante avec cuisine équipée/aménagée, d'une chambre parentale, de 2 chambres avec chacune sa salle d'eau,
                          Professionnel Publié il y a plus de 7 jours Non géolocalisée
                          Périgny 3 ch 3 sdb Piscine Parking
                          • Maison contemporaine - 127 m² - 4 pièces
                          • Maison contemporaine - 127 m² - 4 pièces
                          • Maison contemporaine - 127 m² - 4 pièces
                          • Maison contemporaine - 127 m² - 4 pièces
                          • Maison contemporaine - 127 m² - 4 pièces
                          • Maison contemporaine - 127 m² - 4 pièces Cliquez pour voir les 18 photos

                          Maison contemporaine - 127 m² - 4 pièces

                          456 750 €
                          LA ROCHELLE CDA : PÉRIGNY maison de plain pied année 2007comprenant un grand salon de 40 m2 avec cheminée, cuisine équipée, trois chambres dont une suite parentale. une salle de bain, deux wc. Grand garage. Trés beau jardin arboré. Quand vous voulez ... Honoraires inclus de 5% TTC à la charge de l'acquéreur. Prix hors honoraires 435 000 €. Classe énergie C, Classe climat A Mon
                          Professionnel Publié il y a plus de 7 jours
                          Périgny 3 ch 2 sdb Parking
                          • Maison - 144 m² - 6 pièces
                          • Maison - 144 m² - 6 pièces
                          • Maison - 144 m² - 6 pièces
                          • Maison - 144 m² - 6 pièces
                          • Maison - 144 m² - 6 pièces
                          • Maison - 144 m² - 6 pièces Cliquez pour voir les 21 photos

                          Maison - 144 m² - 6 pièces

                          735 000 €
                          Iad France - Michael Gaztelumendi vous propose : Plain-pied intégral | 4 chambres | 1 salle d'eau privative | Mezzanine bureau | Piscine | Jardin 556 m² | Garage | Plein sud Située à proximité des commerces, des écoles et des transports, dans une commune calme et appréciée. Dès l'entrée, tombez sous le charme de cette belle et agréable maison entièrement de plain-pied, idéale p
                          Professionnel Publié il y a plus de 7 jours
                          Périgny 4 ch Piscine
                          • Maison - 167 m² - 6 pièces
                          • Maison - 167 m² - 6 pièces
                          • Maison - 167 m² - 6 pièces
                          • Maison - 167 m² - 6 pièces
                          • Maison - 167 m² - 6 pièces
                          • Maison - 167 m² - 6 pièces Cliquez pour voir les 13 photos

                          Maison - 167 m² - 6 pièces

                          654 000 €
                          Iad France - Karine Levy vous propose : Perigny - Maison de plain pied avec garage et piscine Située dans un quartier calme et recherché de Périgny, découvrez cette belle maison de plain-pied d’environ 167 m², offrant de beaux volumes et un cadre de vie agréable. Elle s’ouvre sur une belle pièce de vie d’environ 45 m² avec parquet, composée d’un séjour et d’une salle à manger.
                          Professionnel Publié il y a plus de 7 jours
                          Périgny 5 ch Terrasse Piscine
                          • Maison - 144 m² - 5 pièces
                          • Maison - 144 m² - 5 pièces
                          • Maison - 144 m² - 5 pièces
                          • Maison - 144 m² - 5 pièces
                          • Maison - 144 m² - 5 pièces
                          • Maison - 144 m² - 5 pièces Cliquez pour voir les 7 photos

                          Maison - 144 m² - 5 pièces

                          735 000 €
                          PERIGNY - Centre-bourg Située à proximité des commerces, écoles et transports, maison type 5 de plain-pied offrant une surface habitable de 144 m² sur une parcelle close de 556 m². Elle se compose d'un séjour exposé sud, une cuisine aménagée et équipée, 4 chambres dont une avec salle d'eau, une mezzanine, un cellier, une salle de bain avec WC et un WC indépendant. Une cave,
                          Professionnel Publié il y a plus de 7 jours Non géolocalisée
                          Périgny 4 ch 2 sdb Piscine Parking
                          • Maison - 74 m² - 3 pièces
                          • Maison - 74 m² - 3 pièces
                          • Maison - 74 m² - 3 pièces
                          • Maison - 74 m² - 3 pièces
                          • Maison - 74 m² - 3 pièces
                          • Maison - 74 m² - 3 pièces Cliquez pour voir les 14 photos

                          Maison - 74 m² - 3 pièces

                          299 000 €
                          RETOUR A LA VENTE Située à Périgny, cette maison de ville de plain-pied bénéficie d'un emplacement idéal, offrant un cadre de vie agréable à ses habitants. À l'intérieur, cette maison aux espaces totalement optimisés offre un séjour traversant exposé sud, deux chambres dont une spacieuse chambre parentale avec dressing, une grande salle d'eau avec coin WC, et une cuisine semi o
                          Professionnel Publié il y a plus de 7 jours
                          Périgny 2 ch 1 sdb Parking
                          • Maison - 109 m² - 4 pièces
                          • Maison - 109 m² - 4 pièces
                          • Maison - 109 m² - 4 pièces
                          • Maison - 109 m² - 4 pièces
                          • Maison - 109 m² - 4 pièces
                          • Maison - 109 m² - 4 pièces Cliquez pour voir les 12 photos

                          Maison - 109 m² - 4 pièces

                          330 000 €
                          Iad France - Damien Delage vous propose : Périgny, secteur très recherché aux portes de La Rochelle, maison familiale lumineuse de 109 m², pleine de potentiel. Construite en 1971 sur un terrain clos de 500 m², cette maison offre un cadre de vie agréable et calme, idéal pour une famille souhaitant allier confort et proximité de la ville. Elle se compose d'un salon et une salle à
                          Professionnel Publié il y a plus de 7 jours
                          Périgny 3 ch Parking
                          • Maison - 83 m² - 4 pièces
                          • Maison - 83 m² - 4 pièces
                          • Maison - 83 m² - 4 pièces
                          • Maison - 83 m² - 4 pièces
                          • Maison - 83 m² - 4 pièces
                          • Maison - 83 m² - 4 pièces Cliquez pour voir les 13 photos

                          Maison - 83 m² - 4 pièces

                          367 000 €
                          Iad France - Johann Piveteau-Muscat vous propose : Maison de plain-pied - 4 pièces – d'environ 83 m² – 2 chambres + 1 bureau - 1 garage. À Périgny, dans un secteur calme et recherché, à seulement quelques minutes des commerces, des écoles, des transports et au pied des pistes cyclables, venez découvrir cette maison. Elle se compose d'une entrée, d’un salon / séjour, d’une cuisi
                          Professionnel Publié il y a plus de 7 jours
                          Périgny 2 ch Terrasse Parking
                          • Maison - 98 m² - 4 pièces
                          • Maison - 98 m² - 4 pièces
                          • Maison - 98 m² - 4 pièces
                          • Maison - 98 m² - 4 pièces
                          • Maison - 98 m² - 4 pièces

                          Maison - 98 m² - 4 pièces

                          380 000 €
                          PERIGNY Secteur ROMPSAY accès direct à LA ROCHELLE Parcelle de terrain en lot arrière de 325m² Projet de construction de maison individuelle de plain pied Entrée avec placard / Pièce de vie ouverte et lumineuse / 3 chambres dont 1 suite / garage Contactez Nicolas pour plus d'informations sur ce projet de construction de maison individuelle.
                          Professionnel Publié il y a plus de 7 jours
                          Périgny Neuf 3 ch Exposition Sud-est
                          • Maison - 160 m² - 6 pièces
                          • Maison - 160 m² - 6 pièces
                          • Maison - 160 m² - 6 pièces
                          • Maison - 160 m² - 6 pièces
                          • Maison - 160 m² - 6 pièces
                          • Maison - 160 m² - 6 pièces Cliquez pour voir les 20 photos

                          Maison - 160 m² - 6 pièces

                          599 500 €
                          Iad France - Karine Levy vous propose : Maison de plain-pied – Quartier prisé, à seulement 5 minutes de La Rochelle A proximité des commerces, cette maison de plain-pied offre de beaux volumes et un cadre de vie agréable. Vous serez séduit par un séjour spacieux de 47 m², avec cheminée et plafond cathédrale, offrant une atmosphère chaleureuse et conviviale. La cuisine équipée e
                          Professionnel Publié il y a plus de 7 jours
                          Périgny 3 ch Terrasse
                          • Pavillon - 115 m² - 4 pièces
                          • Pavillon - 115 m² - 4 pièces
                          • Pavillon - 115 m² - 4 pièces
                          • Pavillon - 115 m² - 4 pièces
                          • Pavillon - 115 m² - 4 pièces
                          • Pavillon - 115 m² - 4 pièces Cliquez pour voir les 14 photos

                          Pavillon - 115 m² - 4 pièces

                          450 900 €
                          17180- PERIGNY- MAISON DE PLAIN PIED T4 AVEC GARAGE ET JARDIN AU CALME- Efficity l'agence qui estime votre bien en ligne vous propose cette maison individuelle d'une surface de 115 m² edifiée en 2007 sur une parcelle de 462 m².Elle se compose d'une entrée avec placards, d'une cuisine équipée ouverte sur un salon salle à manger avec cheminée, de WC séparés, d'une suite parentale
                          Professionnel Publié il y a plus de 7 jours
                          Périgny 3 ch 2 sdb Terrasse Parking Exposition Sud
                          • Maison traditionnelle - 191 m² - 5 pièces
                          • Maison traditionnelle - 191 m² - 5 pièces
                          • Maison traditionnelle - 191 m² - 5 pièces
                          • Maison traditionnelle - 191 m² - 5 pièces
                          • Maison traditionnelle - 191 m² - 5 pièces
                          • Maison traditionnelle - 191 m² - 5 pièces Cliquez pour voir les 23 photos

                          Maison traditionnelle - 191 m² - 5 pièces

                          849 000 €
                          Situation. Sur la commune dynamique de Périgny, cette contemporaine de plain pied de plus de 190 m2 et entièrement rénovée en 2025 surprend par son allure et ses couleurs méditerranéennes. Singulière. Les espaces ouverts et volumes tournés sur l'extérieur, l'organisation spacieuse, l'aménagement moderne et la décoration d'architecte, la luminosité traversante et l'espace extér
                          Professionnel Publié il y a plus de 7 jours
                          Périgny 4 ch Piscine Parking Exposition Sud
                          • Maison - 100 m² - 4 pièces
                          • Maison - 100 m² - 4 pièces
                          • Maison - 100 m² - 4 pièces
                          • Maison - 100 m² - 4 pièces
                          • Maison - 100 m² - 4 pièces
                          • Maison - 100 m² - 4 pièces Cliquez pour voir les 12 photos

                          Maison - 100 m² - 4 pièces

                          470 000 €
                          Iad France - Florence Chateil vous propose : ENSEMBLE IMMOBILIER À PÉRIGNY – MAISON 100 m² À RÉNOVER - GARAGE – TERRAIN 644 m² À Périgny, à proximité immédiate de La Rochelle, je vous propose une maison d’environ 100 m² entièrement à rénover, ou raser pour écrire une nouvelle page selon vos envies. Une parcelle de 644 m², avec un double garage récent. Contactez-moi pour échange
                          Professionnel Publié il y a plus de 7 jours
                          Périgny 2 ch
                          • Maison - 110 m² - 4 pièces
                          • Maison - 110 m² - 4 pièces
                          • Maison - 110 m² - 4 pièces
                          • Maison - 110 m² - 4 pièces
                          • Maison - 110 m² - 4 pièces
                          • Maison - 110 m² - 4 pièces Cliquez pour voir les 10 photos

                          Maison - 110 m² - 4 pièces

                          499 000 €
                          PÉRIGNY - Quartier Rompsay Dans un environnement calme et verdoyant, à proximité immédiate des transports, maison neuve de type 4 édifiée sur une parcelle de 265 m². Elle se compose d'une entrée avec rangements, pièce de vie lumineuse avec cuisine ouverte donnant sur un jardin exposé Sud, trois chambres dont suite parentale avec salle d'eau, une seconde salle d'eau avec WC, u
                          Professionnel Publié il y a plus de 7 jours Non géolocalisée
                          Périgny 3 ch 2 sdb Terrasse Parking Exposition Sud
                          • Maison - 105 m² - 5 pièces
                          • Maison - 105 m² - 5 pièces
                          • Maison - 105 m² - 5 pièces
                          • Maison - 105 m² - 5 pièces
                          • Maison - 105 m² - 5 pièces

                          Maison - 105 m² - 5 pièces

                          509 000 €
                          Iad France - Cyrille Figureau (07 67 91 82 91) vous propose : Maison familiale 5 pièces avec jardin et garage – Environnement résidentiel Située dans un environnement calme et verdoyant, cette maison récente offre une organisation idéale pour une vie de famille confortable et fluide. L’entrée dessert une belle pièce de vie lumineuse avec séjour et cuisine ouverte, largement tou
                          Professionnel Publié il y a plus de 7 jours
                          Périgny 4 ch Terrasse
                          • Maison - 110 m² - 4 pièces
                          • Maison - 110 m² - 4 pièces
                          • Maison - 110 m² - 4 pièces
                          • Maison - 110 m² - 4 pièces
                          • Maison - 110 m² - 4 pièces

                          Maison - 110 m² - 4 pièces

                          520 000 €
                          Iad France - Cyrille Figureau (07 67 91 82 91) vous propose : Maison neuve de plain-pied de 110 m² environ habitables, idéalement exposée plein sud, offrant un cadre de vie confortable et fonctionnel, parfaitement adapté à une résidence principale familiale. Dès l’entrée, la circulation est fluide et sans aucune marche, avec une vaste pièce de vie séjour / cuisine ouverte large
                          Professionnel Publié il y a plus de 7 jours
                          Périgny 3 ch Terrasse
                          • Maison - 87 m² - 4 pièces
                          • Maison - 87 m² - 4 pièces
                          • Maison - 87 m² - 4 pièces
                          • Maison - 87 m² - 4 pièces
                          • Maison - 87 m² - 4 pièces

                          Maison - 87 m² - 4 pièces

                          435 000 €
                          Iad France - Cyrille Figureau (07 67 91 82 91) vous propose : Maison familiale de 87 m² environ habitables, située dans un environnement résidentiel calme et verdoyant, pensée pour une vie quotidienne confortable et fluide. Dès l’entrée, la pièce de vie traversante avec séjour et cuisine ouverte offre un bel espace de partage, largement ouvert sur la terrasse et le jardin priva
                          Professionnel Publié il y a plus de 7 jours
                          Périgny 3 ch Terrasse
                          • Maison - 129 m² - 5 pièces
                          • Maison - 129 m² - 5 pièces
                          • Maison - 129 m² - 5 pièces
                          • Maison - 129 m² - 5 pièces
                          • Maison - 129 m² - 5 pièces

                          Maison - 129 m² - 5 pièces

                          588 000 €
                          Iad France - Cyrille Figureau (07 67 91 82 91) vous propose : Maison familiale avec jardin – 4 pièces – Environnement résidentiel recherché Au cOEur d’un environnement calme et verdoyant, cette maison récente séduit par son organisation idéale pour la vie de famille. Dès l’entrée, la pièce de vie généreuse s’ouvre naturellement sur l’extérieur et prolonge les espaces vers une t
                          Professionnel Publié il y a plus de 7 jours
                          Périgny 4 ch Terrasse
                          • Maison contemporaine - 160 m² - 5 pièces
                          • Maison contemporaine - 160 m² - 5 pièces
                          • Maison contemporaine - 160 m² - 5 pièces
                          • Maison contemporaine - 160 m² - 5 pièces
                          • Maison contemporaine - 160 m² - 5 pièces
                          • Maison contemporaine - 160 m² - 5 pièces Cliquez pour voir les 13 photos

                          Maison contemporaine - 160 m² - 5 pièces

                          948 000 €
                          Contemporaine de plain-pied sur la commune de Périgny. Situation. Installée sur la dynamique et recherchée commune de Périgny, limitrophe de La Rochelle, et à proximité immédiate de toutes les commodités, cette contemporaine de 160 m2, achevée en 2022, propose volumes et standing. Architecture et organisation. Discrète, cette maison de plain-pied se découvre par une magnifiqu
                          Professionnel Publié il y a plus de 7 jours Non géolocalisée
                          Périgny 3 ch 3 sdb Terrasse Parking
                          • Maison - 103 m² - 4 pièces
                          • Maison - 103 m² - 4 pièces
                          • Maison - 103 m² - 4 pièces
                          • Maison - 103 m² - 4 pièces
                          • Maison - 103 m² - 4 pièces
                          • Maison - 103 m² - 4 pièces Cliquez pour voir les 20 photos

                          Maison - 103 m² - 4 pièces

                          474 000 €
                          Localisation Située à Périgny, dans le quartier de Rompsay, cette maison indépendante est implantée sur une parcelle entièrement close de murs, offrant un cadre calme et sans vis-à-vis. Les écoles et un arrêt de bus desservant le centre-ville de La Rochelle en moins de 15 minutes se trouvent à 400 mètres. Les commerces de proximité sont accessibles à pied, tout comme le centre
                          Professionnel Publié il y a plus de 7 jours Non géolocalisée
                          Périgny 3 ch 1 sdb Terrasse Parking Exposition Ouest
                          • Maison - 138 m² - 6 pièces
                          • Maison - 138 m² - 6 pièces
                          • Maison - 138 m² - 6 pièces
                          • Maison - 138 m² - 6 pièces
                          • Maison - 138 m² - 6 pièces
                          • Maison - 138 m² - 6 pièces Cliquez pour voir les 15 photos

                          Maison - 138 m² - 6 pièces

                          498 000 €
                          Iad France - Virginie Guillot vous propose : 138 m² habitables – env. 183 m² utiles – 3 chambres + bureau (possibilité 4ᵉ) – grande pièce de vie – jardin sans vis-à-vis – garage 30 m² Maison familiale en excellent état, prête à vivre, située sur la commune de Périgny. Elle développe 138 m² habitables, dispose d’un garage de 30 m² et offre environ 183 m² de surface utile, inclua
                          Professionnel Publié il y a plus de 7 jours
                          Périgny 3 ch Parking

                          Achat d'une maison à Périgny. Toutes les ventes immobilières à Périgny et aux environs. Maison à vendre.

                          Recherche en cours...
                          Rechercher dans cette zone