Retour
Rechercher
Lieu
Où ?
    Type de bien
    Quel type de projet ?
    Particulier Entreprise
    Quel type de bien ?
        Prix
        Quel budget ?
              Surface
              Quelle surface ?
                    Pièces
                    Combien de pièces ?
                      Combien de chambres ?
                          2

                          Locations de biens immobiliers pour professionnels à Maillat

                          Recherche 2
                          Carte
                          • Local commercial - 112 m²
                          • Local commercial - 112 m²
                          • Local commercial - 112 m²
                          • Local commercial - 112 m²
                          • Local commercial - 112 m²
                          • Local commercial - 112 m² Cliquez pour voir les 6 photos

                          Local commercial - 112 m²

                          672 € / mois
                          MAILLAT - LOCAL COMMERCIAL BRUT - 112 m² Carré Pro Immobilier vous propose sur la commune de MAILLAT, un local d'activité de 112m². A proximité du centre du village, au rez-de-chaussée d'un bâtiment d'habitation venez compléter un programme composé d'un restaurant et épicerie, une crèche et un cabinet de Kinésithérapie. Le local est brut hors d'eau, hors d'air, fluides en at
                          Professionnel Publié il y a plus de 7 jours
                          Maillat Parking
                          • Local commercial - 160 m²
                          • Local commercial - 160 m²
                          • Local commercial - 160 m²
                          • Local commercial - 160 m²
                          • Local commercial - 160 m²
                          • Local commercial - 160 m² Cliquez pour voir les 6 photos

                          Local commercial - 160 m²

                          960 € / mois
                          MAILLAT - LOCAL COMMERCIAL BRUT - 160 m² Carré Pro Immobilier vous propose sur la commune de MAILLAT, un local d'activité de 160m². A proximité du centre du village, au rez-de-chaussée d'un bâtiment d'habitation venez compléter un programme composé d'un restaurant et épicerie, une crèche et un cabinet de Kinésithérapie. Le local est brut hors d'eau, hors d'air, fluides en at
                          Professionnel Publié il y a plus de 7 jours
                          Maillat Parking
                          1

                          Location de bien immobilier pour professionnels à Saint-Martin-du-Frêne

                          (1.8 km)
                          • Bureau - 65 m² - 4 pièces
                          • Bureau - 65 m² - 4 pièces
                          • Bureau - 65 m² - 4 pièces
                          • Bureau - 65 m² - 4 pièces
                          • Bureau - 65 m² - 4 pièces
                          • Bureau - 65 m² - 4 pièces Cliquez pour voir les 7 photos

                          Bureau - 65 m² - 4 pièces

                          1 007 € / mois
                          SAINT MARTIN DU FRESNE Local à louer pour médecin ou une profession de santé réglementée. Saint Martin du Fresne est une commune située à deux pas de Nantua. Desservie par l'Autoroute A40, Oyonnax, Bellegarde sur Valserine et la Suisse se trouve à quelques minutes. Dans la Maison de Santé de St Martin du Fresne, Carré Pro Immobilier propose un local d'une surface de 65.69m² à
                          Professionnel Publié il y a plus de 7 jours
                          Saint-Martin-du-Frêne RDC Parking
                          7

                          Locations de biens immobiliers pour professionnels à Nantua

                          (6.1 km)
                          • Bureau - 47 m²
                          • Bureau - 47 m²
                          • Bureau - 47 m²

                          Bureau - 47 m²

                          765 € / mois
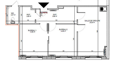
                          A LOUER - BUREAU à Nantua CARRE PRO Immobilier vous propose la location d'un local d'activité de 47.66 m² situé au 1er étage avec ascenseur de notre Espace de Santé de Nantua. Il est composé de : - 2 bureaux ( bureau 1 : 17.54m² et bureau 2 : 16.50m²) - Hall/Salle d'attente de 5.73m² - Local photocopie de 7.89m² Vous avez accès aux sanitaires, une salle de réunion et une salle
                          Professionnel Publié il y a plus de 7 jours
                          Nantua 1er étage Parking
                          • Local commercial - 62 m² - 3 pièces
                          • Local commercial - 62 m² - 3 pièces
                          • Local commercial - 62 m² - 3 pièces
                          • Local commercial - 62 m² - 3 pièces
                          • Local commercial - 62 m² - 3 pièces
                          • Local commercial - 62 m² - 3 pièces Cliquez pour voir les 6 photos

                          Local commercial - 62 m² - 3 pièces

                          550 € / mois
                          Situé au cœur de la charmante commune de Nantua (01130), ce local commercial bénéficie d'un emplacement stratégique offrant une visibilité optimale pour toute activité commerciale. Avec ses paysages pittoresques, ses rives bordées par le lac de Nantua, et sa proximité avec les commerces locaux, cet emplacement offre un cadre de travail agréable et dynamique. Les habitants et vi
                          Professionnel Publié il y a plus de 7 jours
                          Nantua
                          • Bureau - 24 m²
                          • Bureau - 24 m²

                          Bureau - 24 m²

                          361 € / mois
                          A LOUER - Cabinet à Nantua CARRE PRO Immobilier vous propose la location d'un local d'activité de 24.30 m² au sein de notre Espace de Santé de Nantua situé au 1er étage. Celui-ci vous donne accès à une salle d'attente partagée ainsi qu'une salle de réunion et une salle de repas. Vous bénéficierez d'un accès aux parties communes. Un grand parking . - Loyer 275€ (non soumis à
                          Professionnel Publié il y a plus de 7 jours
                          Nantua 1er étage Parking
                          • Bureau - 15 m²
                          • Bureau - 15 m²
                          • Bureau - 15 m²

                          Bureau - 15 m²

                          219 € / mois
                          A LOUER - BUREAU à Nantua CARRE PRO Immobilier vous propose la location d'un local d'activité de 15 m² au sein de notre Espace de Santé de Nantua. Celui-ci vous donne accès à une salle d'attente partagée ainsi qu'une salle de réunion et une salle de repas. Vous bénéficierez d'un accès aux parties communes. Un grand parking . - Loyer 169.47 € - +Charges : 50.23 € (ensemble de
                          Professionnel Publié il y a plus de 7 jours
                          Nantua 1er étage Parking
                          • Bureau - 53 m²
                          • Bureau - 53 m²

                          Bureau - 53 m²

                          538 € / mois
                          A LOUER - Local d'activité à Nantua CARRE PRO Immobilier vous propose la location un bureau de 53 m² situé au 2ème étage au sein de notre Espace de Santé de Nantua. Le local comprend une première pièce salle d'attente et un second bureau. Disponible immédiatement. Vous bénéficierez d'un accès aux parties communes. Un grand parking. - Loyer 420 € - Charges : 174.63 € (ensemb
                          Professionnel Publié il y a plus de 7 jours
                          Nantua 2nd étage Parking
                          1

                          Location de bien immobilier pour professionnels à Montréal-la-Cluse

                          (6.8 km)
                          • Bureau - 27 m²
                          • Bureau - 27 m²

                          Bureau - 27 m²

                          509 € / mois
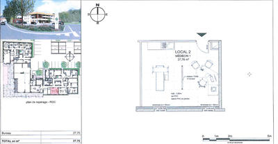
                          MONTREAL LA CLUSE - Cabinet médical au sein de la Maison de Santé " Mont Royal" Sur la commune de MONTREAL-LA-CLUSE à 10 km de OYONNAX, au sein de notre espace santé, CARRE PRO Immobilier vous propose un local professionnel en RDC Le local est composé d'un grand bureau d'une surface privative de 27.76m². Celui-ci est optimisé pour un avoir un espace confidentiel de consultati
                          Professionnel Publié il y a plus de 7 jours
                          Montréal-la-Cluse RDC Parking
                          1

                          Location de bien immobilier pour professionnels à Saint-Jean-le-Vieux

                          (15.9 km)
                          • Bureau - 22 m² - 2 pièces
                          • Bureau - 22 m² - 2 pièces
                          • Bureau - 22 m² - 2 pièces
                          • Bureau - 22 m² - 2 pièces
                          • Bureau - 22 m² - 2 pièces
                          • Bureau - 22 m² - 2 pièces Cliquez pour voir les 6 photos

                          Bureau - 22 m² - 2 pièces

                          309 € / mois
                          A LOUER - Local professionnel à SAINT JEAN LE VIEUX à proximité d'Ambérieu en Bugey. Carré Pro Immobilier vous propose à la location un local professionnel de 22.70m² situé au 1er étage avec ascenseur composé : - d'une salle d'attente - un sanitaire PMR - bureau avec un point d'eau et placard mural. Disponible. Loyer : 270€HT soit 324€ TTC Charges : 39.85€ chauffage, eau cha
                          Professionnel Publié il y a plus de 7 jours
                          Saint-Jean-le-Vieux 1er étage
                          1

                          Location de bien immobilier pour professionnels à Oyonnax

                          (17 km)
                          • Local commercial - 160 m² - 5 pièces
                          • Local commercial - 160 m² - 5 pièces

                          Local commercial - 160 m² - 5 pièces

                          1 030 € / mois
                          Local commercial à louer à Oyonnax, Ce local de 160 m² situé en zone commerciale offre des menuiseries PVC double vitrage, une climatisation réversible et un chauffage individuel au gaz. Il dispose d?un parking privatif en façade et d?un accès PMR à l?arrière. Positionné à trois minutes du centre-ville d?Oyonnax et à proximité immédiate de l?autoroute A404, il se trouve égale
                          Professionnel Publié il y a plus de 7 jours Non géolocalisée
                          Oyonnax Parking
                          3

                          Locations de biens immobiliers pour professionnels à Tossiat

                          (17 km)
                          • Local d'activité / Entrepôt - 350 m²
                          • Local d'activité / Entrepôt - 350 m²
                          • Local d'activité / Entrepôt - 350 m²
                          • Local d'activité / Entrepôt - 350 m²
                          • Local d'activité / Entrepôt - 350 m²
                          • Local d'activité / Entrepôt - 350 m² Cliquez pour voir les 6 photos

                          Local d'activité / Entrepôt - 350 m²

                          1 600 € / mois
                          À louer entrepôt 350 m² à Tossiat. Emplacement idéal en bordure de RN, à proximité de l'A40. Nous vous proposons à la location, dans un bâtiment de 754 m² situé sur la commune de Tossiat, bénéficiant d'un emplacement stratégique en bordure de la route nationale (RN) et à proximité immédiate de l'autoroute A40, une partie d'entrepôt récente de 350 m² env. Caractéristiques :
                          Professionnel Publié il y a plus de 7 jours Non géolocalisée
                          Tossiat
                          • Entrepôt - 240 m²
                          • Entrepôt - 240 m²
                          • Entrepôt - 240 m²
                          • Entrepôt - 240 m²

                          Entrepôt - 240 m²

                          1 600 € / mois
                          À louer entrepôt avec bureaux et mezzanine 240 m² à Tossiat. Emplacement idéal en bordure de RN, à proximité de l'A40. Nous vous proposons à la location, dans un bâtiment de 754 m² situé sur la commune de Tossiat, bénéficiant d'un emplacement stratégique en bordure de la route nationale (RN) et à proximité immédiate de l'autoroute A40, une partie d'entrepôt incluant des burea
                          Professionnel Publié il y a plus de 7 jours Non géolocalisée
                          Tossiat
                          • Bureau - 83 m²
                          • Bureau - 83 m²
                          • Bureau - 83 m²
                          • Bureau - 83 m²

                          Bureau - 83 m²

                          1 000 € / mois
                          À louer bureaux 83 m² à Tossiat. Emplacement idéal en bordure de RN, à proximité de l'A40. Nous vous proposons à la location, dans un bâtiment de 754 m² situé sur la commune de Tossiat, bénéficiant d'un emplacement stratégique en bordure de la route nationale (RN) et à proximité immédiate de l'autoroute A40, des bureaux d'une surface de 83 m². Caractéristiques : Surface tot
                          Professionnel Publié il y a plus de 7 jours Non géolocalisée
                          Tossiat
                          1

                          Location de bien immobilier pour professionnels à Pont-d'Ain

                          (17.5 km)
                          • Local commercial - 114 m² - 6 pièces
                          • Local commercial - 114 m² - 6 pièces
                          • Local commercial - 114 m² - 6 pièces
                          • Local commercial - 114 m² - 6 pièces
                          • Local commercial - 114 m² - 6 pièces
                          • Local commercial - 114 m² - 6 pièces Cliquez pour voir les 10 photos

                          Local commercial - 114 m² - 6 pièces

                          790 € HT / mois
                          Local Commercial Idéal pour Votre Projet Professionnel Imaginez-vous à la tête d'un commerce prospère, niché dans un local commercial lumineux et spacieux. Ce bien immobilier, situé dans un emplacement stratégique, est prêt à accueillir votre entreprise et à la propulser vers de nouveaux sommets. Avec une surface commerciale de 26 m², ses 4 bureaux et son espace cuisine, ce lo
                          Professionnel Publié il y a plus de 7 jours
                          Pont-d'Ain Parking
                          2

                          Locations de biens immobiliers pour professionnels à Ceyzériat

                          (17.5 km)
                          • Bureau - 24 m²
                          • Bureau - 24 m²
                          • Bureau - 24 m²
                          • Bureau - 24 m²
                          • Bureau - 24 m²
                          • Bureau - 24 m² Cliquez pour voir les 7 photos

                          Bureau - 24 m²

                          831 € / mois
                          À LOUER – CABINET MÉDICAL 24,40 m² – MAISON DE SANTÉ DYNAMIQUE – CEYZERIAT (01250) Exercez votre activité médicale dans un environnement moderne, stimulant et collaboratif ! Carré Pro Immobilier vous propose à la location un cabinet médical de 24,40 m², au sein d'une Maison de Santé pluridisciplinaire réputée de Ceyzériat, rassemblant déjà plusieurs professionnels engagés dan
                          Professionnel Publié il y a plus de 7 jours
                          Ceyzériat RDC Parking
                          • Bureau - 24 m²
                          • Bureau - 24 m²
                          • Bureau - 24 m²
                          • Bureau - 24 m²
                          • Bureau - 24 m²
                          • Bureau - 24 m² Cliquez pour voir les 6 photos

                          Bureau - 24 m²

                          818 € / mois
                          CEYZERIAT - Installez votre cabinet médical au cœur d'une Maison de Santé moderne et collaborative ! Carré Pro Immobilier vous propose à la location un cabinet médical de 24,10 m², situé au sein d'une Maison de Santé pluridisciplinaire à Ceyzériat, regroupant déjà plusieurs professionnels de santé investis dans un projet de santé coordonné. Une opportunité idéale pour un méde
                          Professionnel Publié il y a plus de 7 jours
                          Ceyzériat RDC Parking
                          1

                          Location de bien immobilier pour professionnels à Montagnat

                          (20 km)
                          • Local d'activité / Entrepôt - 765 m²
                          • Local d'activité / Entrepôt - 765 m²
                          • Local d'activité / Entrepôt - 765 m²
                          • Local d'activité / Entrepôt - 765 m²
                          • Local d'activité / Entrepôt - 765 m²
                          • Local d'activité / Entrepôt - 765 m² Cliquez pour voir les 8 photos

                          Local d'activité / Entrepôt - 765 m²

                          2 500 € / mois
                          Montagnat/Bourg en Bresse, opportunité ! Nous proposons à la location une cellule à usage d'entrepôt sur une surface généreuse de 765 m² env. incluant : - des bureaux - un vaste entrepôt - des sanitaires - des vestiaires - HSP 4.37 m - 2 portes sectionnelles de L 4.90 x H 3.80 m. Cette propriété bénéficie d'un emplacement stratégique le long de l'axe entrant de la ville, assur
                          Professionnel Publié il y a plus de 7 jours Non géolocalisée
                          Montagnat Parking
                          1

                          Location de bien immobilier pour professionnels à Saint-Just

                          (21.1 km)
                          • Entrepôt - 404 m²
                          • Entrepôt - 404 m²
                          • Entrepôt - 404 m²
                          • Entrepôt - 404 m²
                          • Entrepôt - 404 m²

                          Entrepôt - 404 m²

                          1 600 € / mois
                          Entrepôt de 404 m² dans la Z.A. du Petit Plan à Saint-Just Superficie totale : 404 m² Zone d'activités du Petit Plan à Saint-Just Facile d'accès, situé dans une zone bien desservie. 2 grandes portes sectionnelles pour faciliter les opérations de chargement et de déchargement. Grande surface pour le stockage ou la transformation de marchandises. Facilité d'accès pour les camion
                          Professionnel Publié il y a plus de 7 jours Non géolocalisée
                          Saint-Just
                          4

                          Locations de biens immobiliers pour professionnels à Saint-Rambert-en-Bugey

                          (21.4 km)
                          • Bureau - 28 m²
                          • Bureau - 28 m²
                          • Bureau - 28 m²
                          • Bureau - 28 m²

                          Bureau - 28 m²

                          474 € / mois
                          A LOUER A ST RAMBERT EN BUGEY - Local professionnel Idéalement situé, à 15 minutes d'Ambérieu en Bugey, commune desservie par la gare, 50 minutes de Lyon et de Bourg en Bresse, Carré Pro Immobilier vous propose un local professionnel au sein d'un Espace de Santé sur la commune de St Rambert en Bugey. Ce local d'une surface privative de 28.53 m² respecte les normes PMR. Il est
                          Professionnel Publié il y a plus de 7 jours
                          Saint-Rambert-en-Bugey 1er étage Parking
                          • Bureau - 67 m²
                          • Bureau - 67 m²
                          • Bureau - 67 m²
                          • Bureau - 67 m²

                          Bureau - 67 m²

                          1 112 € / mois
                          A LOUER A ST RAMBERT EN BUGEY - Local professionnel Idéalement situé, à 15 minutes d'Ambérieu en Bugey, commune desservie par la gare, 50 minutes de Lyon et de Bourg en Bresse, Carré Pro Immobilier vous propose un local professionnel au sein d'un Espace de Santé sur la commune de St Rambert en Bugey. Ce local d'une surface privative de 67.06 m² respecte les normes PMR. Il est
                          Professionnel Publié il y a plus de 7 jours
                          Saint-Rambert-en-Bugey 1er étage Parking
                          • Bureau - 26 m²
                          • Bureau - 26 m²
                          • Bureau - 26 m²
                          • Bureau - 26 m²
                          • Bureau - 26 m²
                          • Bureau - 26 m² Cliquez pour voir les 8 photos

                          Bureau - 26 m²

                          450 € / mois
                          À LOUER – LOCAL PROFESSIONNEL AU CŒUR DE ST RAMBERT EN BUGEY (01) Opportunité rare au sein d'un espace santé dynamique ! Situé à seulement 15 minutes d'Ambérieu-en-Bugey et à moins d'une heure de Lyon et de Bourg-en-Bresse, découvrez ce local professionnel idéalement implanté à Saint-Rambert-en-Bugey, charmante commune de l'Ain, nichée dans un environnement naturel verdoyant,
                          Professionnel Publié il y a plus de 7 jours
                          Saint-Rambert-en-Bugey RDC Parking
                          • Bureau - 33 m²
                          • Bureau - 33 m²
                          • Bureau - 33 m²
                          • Bureau - 33 m²
                          • Bureau - 33 m²
                          • Bureau - 33 m² Cliquez pour voir les 7 photos

                          Bureau - 33 m²

                          649 € / mois
                          A LOUER A ST RAMBERT EN BUGEY - Cabinet Médical Idéalement situé, à 15 minutes d'Ambérieu en Bugey, commune desservie par la gare, 50 minutes de Lyon et de Bourg en Bresse, Carré Pro Immobilier vous propose un local professionnel au sein d'un Espace de Santé sur la commune de St Rambert en Bugey. Ce local, d'une surface privative de 33.21 m² à laquelle s'ajoute une quote-part
                          Professionnel Publié il y a plus de 7 jours
                          Saint-Rambert-en-Bugey 1er étage Parking
                          6

                          Locations de biens immobiliers pour professionnels à Arbent

                          (21.6 km)
                          • Local commercial - 2 003 m²
                          • Local commercial - 2 003 m²
                          • Local commercial - 2 003 m²
                          • Local commercial - 2 003 m²
                          • Local commercial - 2 003 m²
                          • Local commercial - 2 003 m² Cliquez pour voir les 7 photos

                          Local commercial - 2 003 m²

                          16 024 € HT / mois
                          Local Commercial Exceptionnel - Opportunité d'Investissement à Ne Pas Manquer Imaginez un espace commercial spacieux et moderne, prêt à accueillir votre entreprise ou à devenir un investissement rentable. Ce local commercial, entièrement rénové en 2015, offre une surface commerciale de 990 m², divisible à partir de 300 m², et une surface de réserves de 1013 m². Avec une hauteu
                          Professionnel Publié il y a plus de 7 jours Non géolocalisée
                          Arbent Parking
                          • Local d'activité / Entrepôt
                          • Local d'activité / Entrepôt
                          • Local d'activité / Entrepôt
                          • Local d'activité / Entrepôt
                          • Local d'activité / Entrepôt

                          Local d'activité / Entrepôt

                          281 € / mois
                          ARBENT Cabinet médical/paramédical à LOUER - Maison de Santé Carré Pro Immobilier vous propose la location d'un cabinet médical équipé d'un point d'eau au sein de la maison de santé récente. Le local d'une surface privative de 10,30m2 nommé sur le plan "Ostéopathe 2" est disponible de suite. Vous disposerez d'une salle d'attente partagée ainsi que des sanitaires et une salle d
                          Professionnel Publié il y a plus de 7 jours
                          Arbent
                          • Local d'activité / Entrepôt - 31 m² - 1 pièce
                          • Local d'activité / Entrepôt - 31 m² - 1 pièce
                          • Local d'activité / Entrepôt - 31 m² - 1 pièce
                          • Local d'activité / Entrepôt - 31 m² - 1 pièce
                          • Local d'activité / Entrepôt - 31 m² - 1 pièce

                          Local d'activité / Entrepôt - 31 m² - 1 pièce

                          737 € / mois
                          À LOUER – CABINET MÉDICAL / PARAMÉDICAL – ARBENT (01100) Idéal profession de santé – 31,69 m² au sein du Pôle Santé Située à Arbent (01100), commune dynamique du Haut-Bugey à proximité immédiate d'Oyonnax, cette location est idéale pour un professionnel de santé souhaitant s'installer dans un environnement médical structuré. Au cœur du Pôle Santé d'Arbent, Carré Pro Immobilie
                          Professionnel Publié il y a plus de 7 jours
                          Arbent Parking
                          • Bureau - 294 m²
                          • Bureau - 294 m²
                          • Bureau - 294 m²
                          • Bureau - 294 m²
                          • Bureau - 294 m²
                          • Bureau - 294 m² Cliquez pour voir les 6 photos

                          Bureau - 294 m²

                          2 985 € / mois
                          A LOUER - ARBENT : Local Professionnel 294,14 m² - Emplacement idéal pour activité médicale ou professionnelle CARRE PRO IMMOBILIER vous propose à la location un local spacieux de 294,14 m² en rez-de-chaussée, actuellement occupé par un centre ophtalmologique. Cet espace est parfaitement adapté pour des activités médicales, paramédicales ou professionnelles. Description du lo
                          Professionnel Publié il y a plus de 7 jours
                          Arbent RDC
                          • Local commercial - 1 200 m²
                          • Local commercial - 1 200 m²
                          • Local commercial - 1 200 m²
                          • Local commercial - 1 200 m²

                          Local commercial - 1 200 m²

                          11 000 € / mois
                          A saisir, superbe emplacement pour ce local commercial avec grandes vitrines, accès PMR, nombreux parkings. Très bonne visibilité pour l'implantation d'une enseigne. Changement de destination possible avec accord du Bailleur, extraction possible également. Surface commerciale: 950 m². Établissement pouvant recevoir du public (ERP) - accès livraisons aisé et surface de stockage
                          Professionnel Publié il y a plus de 7 jours
                          Arbent
                          3

                          Locations de biens immobiliers pour professionnels à Bellegarde-sur-Valserine

                          (22.4 km)
                          • Entrepôt - 400 m²
                          • Entrepôt - 400 m²
                          • Entrepôt - 400 m²
                          • Entrepôt - 400 m²
                          • Entrepôt - 400 m²

                          Entrepôt - 400 m²

                          3 500 € / mois
                          A LOUER - VALSERHÔNE (01200) - Entrepôt de stockage d'une surface de 400 m² environ - pont roulant 15T - grande hauteur - accès et retournement poids-lourds - grand parking 25 à 30 véhicules - disponibilité immédiate. - Type de bail : Commercial - Durée : 3/6/9 ans - Préavis : 6 mois - Fiscalité : TVA - Indice : ILC - Indexation : Annuelle, date prise effet - Dépôt de garanti
                          Professionnel Publié il y a plus de 7 jours
                          Bellegarde-sur-Valserine
                          • Local commercial - 115 m² - 3 pièces
                          • Local commercial - 115 m² - 3 pièces
                          • Local commercial - 115 m² - 3 pièces

                          Local commercial - 115 m² - 3 pièces

                          1 200 € / mois
                          RE/MAX INTERFACE vous propose à la location ce local commercial, RARE, de 115 m², entièrement accessible aux Personnes à Mobilité Réduite. Située au cœur du centre-ville, proche Mairie, place du marché. Le local dispose d'une grande vitrine donnant sur rue très passante. N'hésitez pas à nous contacter pour visiter ou pour plus d'informations.  Dépôt de garantie : 1200 €. Hono
                          Professionnel Publié il y a plus de 7 jours
                          Bellegarde-sur-Valserine
                          • Bureau - 130 m² - 1 pièce
                          • Bureau - 130 m² - 1 pièce
                          • Bureau - 130 m² - 1 pièce
                          • Bureau - 130 m² - 1 pièce

                          Bureau - 130 m² - 1 pièce

                          1 € / mois
                          Surface de bureau ou autre activité commercial ou de service. Situé au 1er etage d'un batiment à usage commercial (activités tiers en rdc) en peripherie du centre-ville de Bellegarde. Parking au bas du batiment.  Le prix du loyer ainsi que les modalités de la location seront à définir en fonction du projet. Pour plus d'infos nous contacter. 
                          Professionnel Publié il y a plus de 7 jours
                          Bellegarde-sur-Valserine Parking

                          Location de biens immobiliers pour professionnels à Maillat. Toutes les ventes immobilières à Maillat et aux environs.

                          Recherche en cours...
                          Rechercher dans cette zone