• Bureau - 27 m²
  • Bureau - 27 m²
509 € / mois
27 m²

Description :

MONTREAL LA CLUSE - Cabinet médical au sein de la Maison de Santé " Mont Royal"

Sur la commune de MONTREAL-LA-CLUSE à 10 km de OYONNAX, au sein de notre espace santé, CARRE PRO Immobilier vous propose un local professionnel en RDC

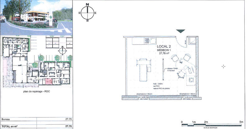
Le local est composé d'un grand bureau d'une surface privative de 27.76m². Celui-ci est optimisé pour un avoir un espace confidentiel de consultation ainsi qu'un espace bureau séparé par une cloison. Un espace d'attente commun, un espace repas, des sanitaires PMR le tout représentant 40.26m² et un parking s'ajoute à ce local.

Notre volonté étant de retrouver un médecin généraliste ou autre spécialité. A ce jour, une dizaine de professionnels de santé occupent cet espace (médecin, kinésithérapeute, infirmières...).

-Loyer 410€ HT soit 492€ TTC.
-Charges mensuelles s'élève à 99.83€ (chauffage et entretien des parties communes, OM).
- Dépôt de garantie : 2 mois de loyer HT-HC

- Frais d'état des lieux : 180€
- Frais d'acte : 300€

Pour plus de renseignements, n'hésitez pas à nous contacter au 04 82 29 81 35

Afficher plus de détails

Informations sur ce bien :

L'intérieur :

  • 27 m²
    Informations complémentaires
    Surface d'activité : 27 m²

L'extérieur :

  • Parking extérieur
    Informations complémentaires
    Extérieur

Les équipements :

  • Accès handicapé
  • Fibre optique

Autres :

  • Chauffage :
    Collectif, Électrique
  • Année de construction :
    2018
  • Étage :
    RDC

Copropriété :

  • Copropriété :
    Oui
Synthèse
Bureau à Montréal-la-Cluse
509 € / mois
Surface : 27 m²
Transaction :
Location (locaux professionnels)
Référence :
7193_01_02_009
Charges :
99,83 €
Informations complémentaires
Les charges sont inclues dans le loyer affiché
Montant de la caution :
820 €
Honoraires :
480 €
Informations complémentaires
Dont honoraires état des lieux : 180 €
Mandat :
Exclusif
Date de publication :
Il y a plus de 7 jours
Bureau - 27 m²
Performance énergétique
A
B
C
D
E
F
G
Gaz à effet de serre
A
B
C
D
E
F
G
Agent
SEMCODA LOCAUX TERTIAIRES
Votre commerciale CARRE PRO IMMOBILIER
Appeler
Écrire
Mettre en avant cette annonce
Signaler une erreur

Localisation :

Performance énergétique :

Logement économe
A
B
C
D
186
kWh/m²/an
30
kg CO₂/m²/an
E
F
G
Logement énergivore
Faible émission de CO₂
A
B
C
30
kg CO₂/m²/an
D
E
F
G
Forte émission de CO₂
Date du diagnostic : 31 janvier 2019
Annonces similaires
Annonces immobilières récentes