Appartement - 68 m² - 3 pièces à Lyon 4
favoris
565 000 €
Description :
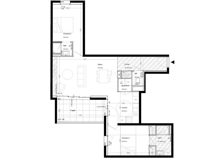
Dernière opportunité ! A Lyon 4°, au Coeur de la Croix Rousse, à proximité des Bus et commerces et Métro, je vous propose à la vente ce Magnifique T3 composé d'une pièce à vivre de 30m² avec sa cuisine américaine donnant sur une belle terrasse de 8,50m², un wc séparé, une buanderie, 2 chambres et deux salle d'eau. Un grand garage est vendu avec l'appartement Bâtiment basse consommation Contactez Grégory pour plus d'informations Visuel non contractuel Copropriété de 19 lots - dont 19 lots habitation. (Pas de procédure en cours). Charges annuelles : 1200 euros.
Commentaire : BSO
Afficher plus de détails
Informations sur ce bien :
L'intérieur :
-
3 pièces
-
68 m²Informations complémentairesSurface Carrez : 68 m²
Surface habitable : 68 m² -
2 Chambres
-
Cuisine américaineInformations complémentairesAméricaine
-
2 Salles d'eau
-
2 Toilettes
-
Séjour de 30 m²
L'extérieur :
-
Terrasse de 8 m²
Les équipements :
-
Ascenseur
-
Tout à l'égout
-
Double vitrage
Autres :
-
Chauffage :Individuel, Radiateur, Pompe à chaleur
-
Style :Moderne
-
Année de construction :2028
-
État :Intérieur : Excellent
-
Étage :4ème étageInformations complémentairesNombre d'étages de la construction : 6
-
Nombre de niveaux :1
Copropriété :
-
Copropriété :Oui
-
Nombre de lots :19
-
Charges annuelles :1 200 €
-
Procédure :Pas de procédure en cours
Synthèse
Appartement à Lyon 4
565 000 €
Surface :
68 m²
Prix au m² :
8 309 €
Transaction :
Achat
Référence :
30602_GM
Date de publication :
Il y a plus de 7 jours
Contacter l'annonceur
Performance énergétique
A
B
C
D
E
F
G
Gaz à effet de serre
A
B
C
D
E
F
G
Agent
AS Investimmo
Grégory CO-MINH
Mettre en avant cette annonce
Signaler une erreur
Localisation :
L'adresse exacte n'est pas renseignée. Le bien se situe dans cette zone.
Performance énergétique :
Logement économe
A
51
kWh/m²/an
6
kg CO₂/m²/an
B
C
D
E
F
G
Logement énergivore
Faible émission de CO₂
A
6
kg CO₂/m²/an
B
C
D
E
F
G
Forte émission de CO₂
Date du diagnostic :
15 février 2025
Ventes d'appartements à proximité
- 1698 ventes d'appartements à Lyon (2.1 km)
- 122 ventes d'appartements à Caluire-et-Cuire (2.3 km)
- 64 ventes d'appartements à Écully (3.6 km)
- 12 ventes d'appartements à Champagne-au-Mont-d'Or (3.7 km)
- 16 ventes d'appartements à Saint-Cyr-au-Mont-d'Or (3.9 km)
- 33 ventes d'appartements à Saint-Didier-au-Mont-d'Or (4 km)
- 128 ventes d'appartements à Tassin-la-Demi-Lune (4.3 km)
- 11 ventes d'appartements à Collonges-au-Mont-d'Or (4.8 km)
- 448 ventes d'appartements à Villeurbanne (5.2 km)