• Appartement - 75 m² - 3 pièces
  • Appartement - 75 m² - 3 pièces
359 000 €
75 m²
3 pièces
2 chambres

Description :

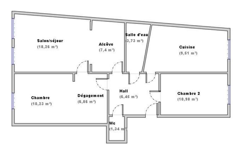
Situé au coeur du très prisé 2ème arrondissement de Lyon, au 5ème et dernier étage avec ascenseur dans un immeuble de caractère datant de 1800, l'agence Espaces et Lieux a le plaisir de vous proposer à la vente ce charmant T3 traversant de 75 m2.
Dans une copropriété au calme, rue Ferrandière, à 2 minutes à pied du métro Cordeliers (ligne A), cette belle adresse bénéficie du charme de l'ancien avec ses moulures et son parquet en pointe de Hongrie ainsi que d'un emplacement recherché pour une résidence principale, un investissement locatif ou un agréable pied à terre.
La pièce de vie de plus de 25 m2 lumineuse avec deux ouvertures orientées de manière à capter pleinement la lumière naturelle, dispose d'une jolie cheminée.
L'espace nuit se compose de 2 chambres de 10 m2, dont une sur cour, et d'une salle de douche.
Un grenier aménagé et isolé de 42 m2 ,situé tout juste au-dessus, de l'appartement vous permettra de créer une pièce en plus en fonction de vos besoins (salle de jeux, bureau, rangements ...)
L'ensemble de l'appartement est en bon état général.
Des travaux sont cependant à prévoir pour le remettre au goût du jour notamment dans la cuisine, la salle d'eau et les WC, permettant à ses futurs propriétaires d'y apposer leur touche personnelle.
Concernant la copropriété, pas de travaux à prévoir car la toiture est bien entretenue et la façade a bénéficié d'un ravalement.
Les informations sur les risques auxquels ce bien est exposé sont disponibles sur le site www.georisques.fr

Afficher plus de détails

Informations sur ce bien :

L'intérieur :

  • 3 pièces
  • 75 m²
  • 2 Chambres
  • Cuisine séparée
    Informations complémentaires
    Séparée
  • 1 Salle de bain
  • 1 Toilette
  • Séjour de 25 m²
  • Cave de 50 m²

L'extérieur :

  • Parking

Les équipements :

  • Ascenseur
  • Cheminée
  • Interphone

Autres :

  • Chauffage :
    Individuel, Radiateur, Électrique
  • Travaux à prévoir :
    Oui
  • Exposition :
    Sud, Nord
  • Étage :
    5ème étage
    Informations complémentaires
    Nombre d'étages de la construction : 6

Copropriété :

  • Copropriété :
    Oui
  • Nombre de lots :
    51
  • Charges annuelles :
    1 230 €
Synthèse
Appartement à Lyon 2
359 000 €
Surface : 75 m²
Prix au m² : 4 787 €
Transaction :
Achat
Référence :
VAP10000230
Date de publication :
Hier à 06:26
Appartement - 75 m² - 3 pièces
Performance énergétique
A
B
C
D
E
F
G
Gaz à effet de serre
A
B
C
D
E
F
G
Agent
ESPACES ET LIEUX
ESPACES ET LIEUX
PESNEL Marion
Appeler
Écrire
Mettre en avant cette annonce
Signaler une erreur

Localisation :

L'adresse exacte n'est pas renseignée. Le bien se situe dans cette zone.

Performance énergétique :

Logement économe
A
B
C
D
E
314
kWh/m²/an
12
kg CO₂/m²/an
F
G
Logement énergivore
Faible émission de CO₂
A
B
C
12
kg CO₂/m²/an
D
E
F
G
Forte émission de CO₂
Date du diagnostic : 27 janvier 2026
Estimation des coûts annuels d’énergie du logement : 2 150 € à 2 970 €
Annonces similaires
Annonces immobilières récentes