• Appartement - 80 m² - 3 pièces
  • Appartement - 80 m² - 3 pièces
  • Appartement - 80 m² - 3 pièces
366 000 €
80 m²
3 pièces
2 chambres

Description :

Rare à la vente - Franqueville-Saint-Pierre - Appartement / Terrasse 92m2
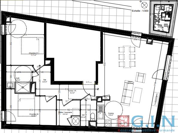
Dans résidence de standing cet appartement situé en dernier étage d'une superficie de 80m2 comprend :
-Entrée
-Séjour avec cuisine ouverte d'une superficie de 33m230
-Deux chambres 10m250 et 11m270
-Salle de bains
-Cellier-buanderie
-Wc indépendant
L'ensemble des pièces bénéficie d'un accès sur terrasse de 92m2 sans vis-à-vis
Deux parkings couverts privatifs
Livraison prévue 3eme trimestre 2026
Prix : 366.000,00 EUR Honoraires charge vendeurs
Contact Agent commercial : Olivier MALHOUITRE : 06-38-81-35-85 inscrit au RSAC no539-954-388 numéro CPI : 7606 2022 000 000 016

Suite à l'article l.561-5 du code monétaire et financier, la copie de la pièce d'identité de tous les visiteurs sera demandée avant la visite.
Les informations sur les risques auxquels ce bien est exposé sont disponibles sur le site Géorisques http://www.georisques.gouv.fr
Retrouvez tous nos biens sur notre site internet : https://www.gin-immobilier.com

Afficher plus de détails

Informations sur ce bien :

L'intérieur :

  • 3 pièces
  • 80 m²
  • 2 Chambres
  • Sans cuisine
    Informations complémentaires
    Sans cuisine

L'extérieur :

  • Parking

Les équipements :

  • Ascenseur
  • Accès handicapé

Autres :

  • Chauffage :
    Individuel
  • Exposition :
    Sud, Ouest
Synthèse
Appartement à Franqueville-Saint-Pierre
366 000 €
Surface : 80 m²
Prix au m² : 4 575 €
Transaction :
Achat
Référence :
OM PN FRANQUEVILLE T3 A21
Date de publication :
Il y a plus de 7 jours
Appartement - 80 m² - 3 pièces
Agent
GIN
GIN
Appeler
Écrire
Mettre en avant cette annonce
Signaler une erreur

Localisation :

L'adresse exacte n'est pas renseignée. Le bien se situe dans cette zone.

Performance énergétique :

Bien non soumis au Diagnostic de Performance Énergétique (DPE)

Annonces similaires
Annonces immobilières récentes