• Appartement - 80 m² - 3 pièces
  • Appartement - 80 m² - 3 pièces
  • Appartement - 80 m² - 3 pièces
366 000 €
80 m²
3 pièces
2 chambres

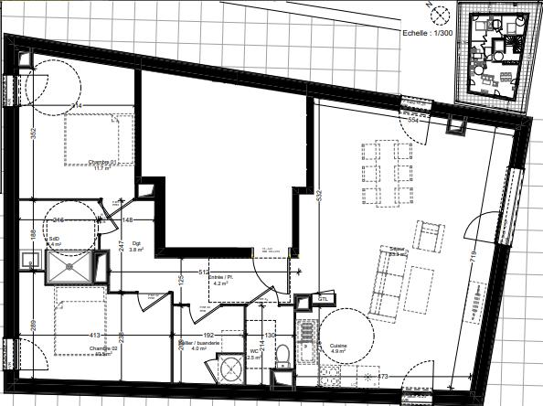
Description :

Rare à la vente - Franqueville-Saint-Pierre - Appartement / Terrasse 92 m² Dans résidence de standing cet appartement situé en dernier étage d'une superficie de 80 m² comprend : -Entrée -Séjour avec cuisine ouverte d'une superficie de 33 m²30 -Deux chambres 10 m²50 et 11 m²70 -Salle de bains -Cellier-buanderie -Wc indépendant L'ensemble des pièces bénéficie d'un accès sur terrasse de 92 m² sans vis-à-vis Deux parkings couverts privatifs Livraison prévue 3eme trimestre 2026 Prix : 366.000, 00 EUR Honoraires charge vendeurs Contact Agent commercial : Olivier MALHOUITRE : 06 38 81 35 85 inscrit au RSAC no539-954-388 numéro CPI : 7606 2022 000 000 016 Suite à l'article l. 561-5 du code monétaire et financier, la copie de la pièce d'identité de tous les visiteurs sera demandée avant la visite. Les informations sur les risques auxquels ce bien est exposé sont disponibles sur le site Géorisques http://www.georisques.gouv.fr Retrouvez tous nos biens sur notre site internet : https://www.gin-immobilier.com. (gedeon_90246_29392409)

Afficher plus de détails

Informations sur ce bien :

L'intérieur :

  • 3 pièces
  • 80 m²
  • 2 Chambres

L'extérieur :

  • Parking

Les équipements :

  • Ascenseur
  • Accès handicapé

Autres :

  • Chauffage :
    Individuel
  • Exposition :
    Sud, Est, Ouest
Synthèse
Appartement à Franqueville-Saint-Pierre
366 000 €
Surface : 80 m²
Prix au m² : 4 575 €
Transaction :
Achat
Référence :
AG1095-449
Date de publication :
Il y a plus de 7 jours
Appartement - 80 m² - 3 pièces
Agent
GIN IMMOBILIER
GIN IMMOBILIER
Appeler
Écrire
Mettre en avant cette annonce
Signaler une erreur

Localisation :

L'adresse exacte n'est pas renseignée. Le bien se situe dans cette zone.

Performance énergétique :

Bien non soumis au Diagnostic de Performance Énergétique (DPE)

Annonces similaires
Annonces immobilières récentes