• Local commercial - 202 m² - 4 pièces
  • Local commercial - 202 m² - 4 pièces
  • Local commercial - 202 m² - 4 pièces
  • Local commercial - 202 m² - 4 pièces
  • Local commercial - 202 m² - 4 pièces
  • Local commercial - 202 m² - 4 pièces
  • Local commercial - 202 m² - 4 pièces
400 000 € HT
202 m²
4 pièces

Description :

Situé au coeur de Floirac, sur une rue commerçante dynamique, découvrez ce local commercial d'environ 210 m², bénéficiant d'un important linéaire de façade, offrant une excellente visibilité pour toute activité professionnelle.

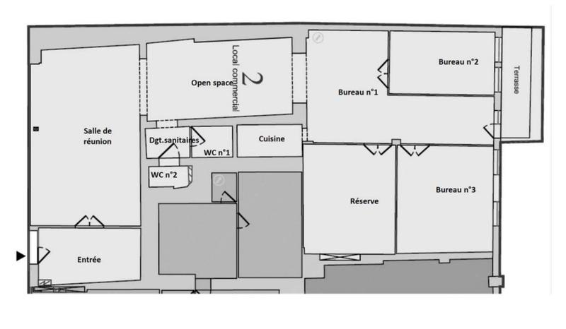
Le bien se compose d'un vaste open-space, idéal pour un espace de vente ou d'accueil clientèle, complété par plusieurs bureaux indépendants, une salle de réunion, une réserve, ainsi qu'un espace cuisine et des sanitaires, permettant une organisation fonctionnelle et adaptée à différents projets.

Grâce à sa configuration, ce local offre de nombreuses possibilités d'aménagement : commerce, showroom, activité tertiaire, profession libérale ou bureaux.Un espace extérieur type terrasse vient également compléter l'ensemble, apportant un véritable confort d'usage.

Implanté dans un environnement commerçant et passant, ce bien constitue une opportunité idéale pour développer ou implanter votre activité.

Prix de vente : 400 000 € HT - 480 000 € TTC

Un local modulable et visible, offrant un fort potentiel dans un secteur en plein essor.

Honoraires à la charge du vendeur. Dans une copropriété de 5 lots. Aucune procédure n'est en cours. Classe énergie A, Classe climat A. Les informations sur les risques auxquels ce bien est exposé sont disponibles sur le site Géorisques : georisques.gouv.fr.

Afficher plus de détails

Informations sur ce bien :

L'intérieur :

  • 4 pièces
  • 202 m²

L'extérieur :

  • Parking

Autres :

  • Chauffage :
    Individuel, Gaz
  • Étage :
    RDC
    Informations complémentaires
    Nombre d'étages de la construction : 1

Copropriété :

  • Copropriété :
    Oui
  • Nombre de lots :
    5
Synthèse
Local commercial à Floirac
400 000 € HT
Surface : 202 m²
Prix au m² : 1 980 €
Transaction :
Achat (professionnels)
Référence :
VP069-AETV
Date de publication :
Il y a plus de 7 jours
Local commercial - 202 m² - 4 pièces
Performance énergétique
A
B
C
D
E
F
G
Gaz à effet de serre
A
B
C
D
E
F
G
Agent
A&V IMMOBILIER
Mathieu AUBERT
Appeler
Écrire
Mettre en avant cette annonce
Signaler une erreur

Localisation :

Performance énergétique :

Logement économe
A
33
kWh/m²/an
1
kg CO₂/m²/an
B
C
D
E
F
G
Logement énergivore
Faible émission de CO₂
A
1
kg CO₂/m²/an
B
C
D
E
F
G
Forte émission de CO₂
Date du diagnostic : 04 juillet 2024
Estimation des coûts annuels d’énergie du logement : 774 €
Annonces similaires
Annonces immobilières récentes