• Appartement - 35 m² - 2 pièces
  • Appartement - 35 m² - 2 pièces
82 500 €
35 m²
2 pièces
1 chambre

Description :

LIBRE DE TOUTE OCCUPATION - T2 Loué - 1 Parking

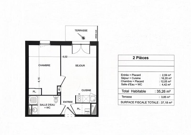
Appartement T2 d'environ 32,26 m² en rez-de-chaussée situé dans une résidence sécurisée sur le secteur de Douai.

Libre de toute occupation.

Composition :
Séjour
Cuisine ouverte
1 chambre
Salle d'eau avec WC
Terrasse
1 place de parking aérienne
Informations financières :
Charges de copropriété : 49,30€ / mois
Taxe foncière : 865€ / an
DPE : C
Points forts :
Parking aérien inclus
Résidence sécurisée

Honoraires à la charge du vendeur. Dans une copropriété de 72 lots. Aucune procédure n'est en cours. Classe énergie C, Classe climat C Montant estimé des dépenses annuelles d'énergie pour un usage standard : entre 440.00 € et 640.00 € sur les années 2021, 2022 et 2023 (abonnements compris). Les informations sur les risques auxquels ce bien est exposé sont disponibles sur le site Géorisques : georisques.gouv.fr.

Afficher plus de détails

Informations sur ce bien :

L'intérieur :

  • 2 pièces
  • 35 m²
  • 1 Chambre
  • 1 Salle d'eau
  • 1 Toilette

L'extérieur :

  • Parking

Autres :

  • Étage :
    RDC

Copropriété :

  • Copropriété :
    Oui
  • Nombre de lots :
    72
Synthèse
Appartement à Douai
82 500 €
Surface : 35 m²
Prix au m² : 2 357 €
Transaction :
Achat
Référence :
4037-FOROM
Date de publication :
Aujourd'hui à 07:36
Appartement - 35 m² - 2 pièces
Performance énergétique
A
B
C
D
E
F
G
Gaz à effet de serre
A
B
C
D
E
F
G
Agent
Forom® Immobilier
Appeler
Écrire
Mettre en avant cette annonce
Signaler une erreur

Localisation :

L'adresse exacte n'est pas renseignée. Le bien se situe dans cette zone.

Performance énergétique :

Logement économe
A
B
C
111
kWh/m²/an
21
kg CO₂/m²/an
D
E
F
G
Logement énergivore
Faible émission de CO₂
A
B
C
21
kg CO₂/m²/an
D
E
F
G
Forte émission de CO₂
Date du diagnostic : 18 mars 2026
Estimation des coûts annuels d’énergie du logement : 440 € à 640 €
Annonces similaires
Annonces immobilières récentes