Appartement - 40 m² - 2 pièces à Chambéry
favoris
590 € / mois
Description :
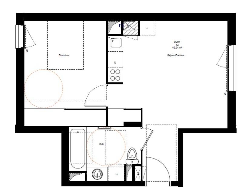
D201 LES PIERRES MARINE : AU CALME DONNANT INTERIEUR DE RESIDENCE NEUVE BBC DE STANDING T2 composé d'une entrée avec rangement. Une agréable pièce à vivre avec cuisine US aménagée (plaques vitro, four, hotte, meubles hauts et bas). Une grande chambre de 13m² en sol parquet avec placard mural aménagé. Salle de bain avec meuble sous vasque et sèche-serviettes. Garage fermé en sous-sol sécurisé. CHAUFFAGE IND AU GAZ. VISIOPHONE. A PROXIMITE DU CENTRE VILLE ET DE LA GARE SNCF. Consommation d'énergie totale entre 346 EUR et 468 EUR par an (prix moyens des énergies indexés au 1er janvier 2021).
Les informations sur les risques auxquels ce bien est exposé sont disponibles sur le site Géorisques : www. georisques. gouv. fr
Afficher plus de détails
Informations sur ce bien :
L'intérieur :
-
2 pièces
-
40 m²Informations complémentairesSurface habitable : 40 m²
Autres :
-
Étage :2nd étage
Synthèse
Appartement à Chambéry
590 € / mois
Surface :
40 m²
Transaction :
Location
Référence :
9740
Charges :
44 €
Remboursement annuel par le locataire
Informations complémentaires
Les charges sont inclues dans le loyer affichéRemboursement annuel par le locataire
Montant de la caution :
554 €
Honoraires :
523,12 €
Informations complémentaires
Dont honoraires état des lieux : 120,72 €
Mandat :
Exclusif
Disponibilité :
16/12/2025
Date de publication :
Il y a plus de 7 jours
Contacter l'annonceur
Performance énergétique
A
B
C
D
E
F
G
Gaz à effet de serre
A
B
C
D
E
F
G
Agent
CONFIANCE IMMOBILIER MONPLAISIR LOCATION
Mettre en avant cette annonce
Signaler une erreur
Localisation :
L'adresse exacte n'est pas renseignée. Le bien se situe dans cette zone.
Performance énergétique :
Logement économe
A
B
C
89
kWh/m²/an
18
kg CO₂/m²/an
D
E
F
G
Logement énergivore
Faible émission de CO₂
A
B
C
18
kg CO₂/m²/an
D
E
F
G
Forte émission de CO₂
Date du diagnostic :
24 janvier 2023
Locations d'appartements à proximité
- 8 locations d'appartements à Jacob-Bellecombette (1.4 km)
- 2 locations d'appartements à Barberaz (2 km)
- 2 locations d'appartements à Bassens (2.6 km)
- 1 location d'appartement à Saint-Alban-Leysse (3.6 km)
- 2 locations d'appartements à La Motte-Servolex (4.9 km)
- 2 locations d'appartements à Challes-les-Eaux (5.3 km)
- 1 location d'appartement à Voglans (7.6 km)
- 4 locations d'appartements au Bourget-du-Lac (10.5 km)
- 2 locations d'appartements à Montmélian (12.8 km)