Local commercial - 66 m² à Boulogne-sur-Mer
favoris
525 € / mois
Description :
L'Agence de la Côte d'Opale vous propose ce local commercial situé Grande Rue, dans le centre ville de Boulogne-sur-Mer.
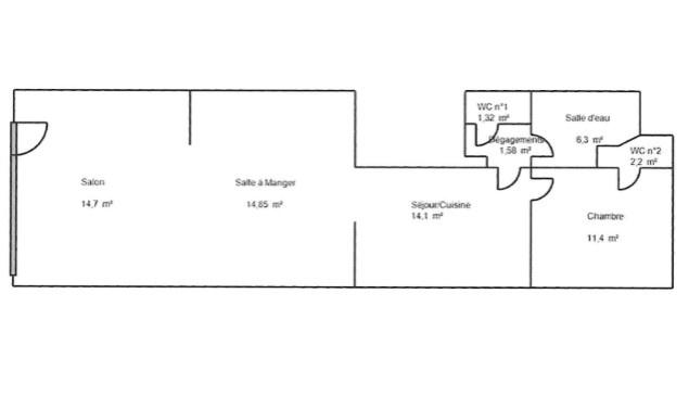
D'une superficie de 66.45 m2, il dispose:
D'une belle vitrine donnant sur l'acceuil, d'un espace bureau et d'une cuisine dans le prolongement, d'une grande pièce de stockage, d'une salle d'eau avec douche et de deux WC indépendant.
Il est équipé de l'eau, de l'électricité, et du tout à l'égout. Il est également raccordé à la fibre.
Libre sous 3 mois, n'hésitez pas à nous contacter rapidement pour le visiter !
Honoraires charge locataire : 20% H.T. du loyer annuel.
Afficher plus de détails
Informations sur ce bien :
L'intérieur :
-
66 m²
-
Sans cuisineInformations complémentairesSans cuisine
-
2 Toilettes
L'extérieur :
-
Parking
Autres :
-
Chauffage :Individuel, Radiateur, Électrique
-
Année de construction :1920
Synthèse
Local commercial à Boulogne-sur-Mer
525 € / mois
Surface :
66 m²
Transaction :
Location (locaux professionnels)
Référence :
G00069
Charges :
110 €
Informations complémentaires
Les charges sont inclues dans le loyer affiché
Montant de la caution :
830 €
Honoraires :
996 €
Informations complémentaires
Dont honoraires état des lieux : 300 €
Disponibilité :
12/02/2026
Date de publication :
Aujourd'hui à 06:27
Contacter l'annonceur
Performance énergétique
A
B
C
D
E
F
G
Gaz à effet de serre
A
B
C
D
E
F
G
Agent
AGENCE DE LA CÔTE D'OPALE
ROMMELAERE - CÔTE D'OPALE Grégory
Mettre en avant cette annonce
Signaler une erreur
Localisation :
L'adresse exacte n'est pas renseignée. Le bien se situe dans cette zone.
Performance énergétique :
Logement économe
A
44
kWh/m²/an
1
kg CO₂/m²/an
B
C
D
E
F
G
Logement énergivore
Faible émission de CO₂
A
1
kg CO₂/m²/an
B
C
D
E
F
G
Forte émission de CO₂
Date du diagnostic :
20 août 2025
Locations de locaux commerciaux à proximité
- 1 location de local commercial à Saint-Martin-Boulogne (1.2 km)
- 1 location de local commercial à Outreau (2.5 km)
- 2 locations de locaux commerciaux au Portel (3.2 km)
- 3 locations de locaux commerciaux à Saint-Léonard (4.2 km)
- 1 location de local commercial à La Capelle-lès-Boulogne (7.5 km)
- 2 locations de locaux commerciaux à Marquise (11.8 km)
- 1 location de local commercial à Landrethun-le-Nord (18.2 km)
- 2 locations de locaux commerciaux au Touquet-Paris-Plage (22.7 km)
- 2 locations de locaux commerciaux à Coquelles (26.9 km)