Appartement - 97 m² - 4 pièces à Boulogne-Billancourt
favoris
723 000 €
Description :
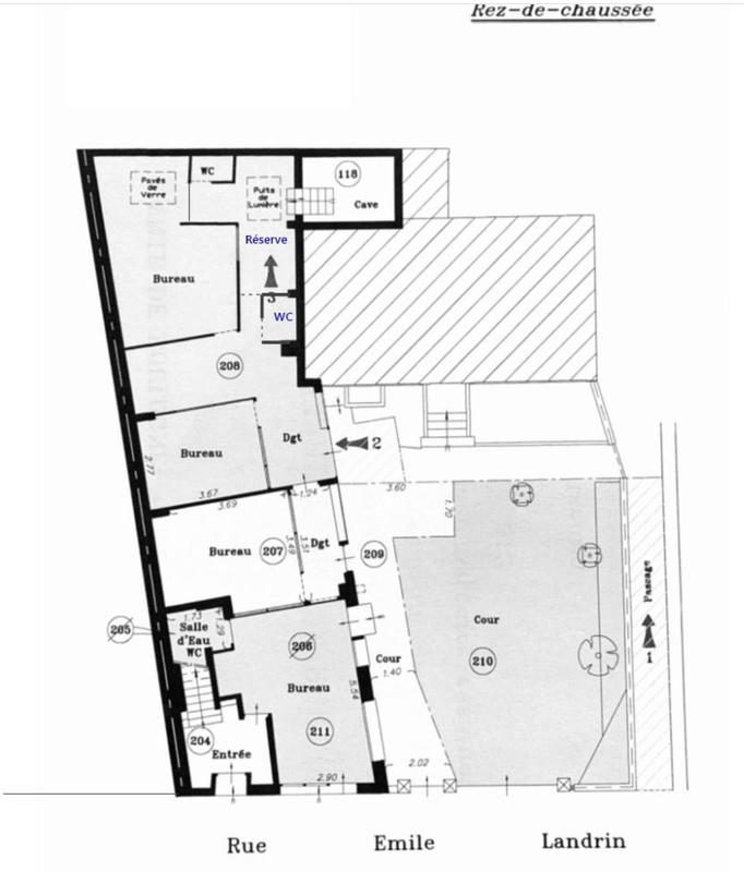
Au calme et à quelques pas du métro Marcel Sembat ligne 9 et des commerces, nous vous proposons des bureaux de 99,7 m² découpable accessibles de plain-pied.
Les bureaux sont en très bon état avec coin cuisine / sanitaire (une salle d'eau, deux WC) et peuvent être divisé en 3. Vue cour.
Copropriété de deux lots ; un appartement et les bureaux au rdc avec deux accès possible rue et cour.
Afficher plus de détails
Informations sur ce bien :
L'intérieur :
-
4 pièces
-
97 m²
-
3 Chambres
-
Coin cuisineInformations complémentairesCoin cuisine
-
1 Salle d'eau
-
2 Toilettes
L'extérieur :
-
Parking
Autres :
-
Chauffage :Individuel, Électrique
-
Exposition :Sud
-
Étage :RDCInformations complémentairesNombre d'étages de la construction : 3
Synthèse
Appartement à Boulogne-Billancourt
723 000 €
Surface :
97 m²
Prix au m² :
7 454 €
Transaction :
Achat
Référence :
APIS3216A
Disponibilité :
17/11/2025
Date de publication :
Aujourd'hui à 01:27
Contacter l'annonceur
Performance énergétique
A
B
C
D
E
F
G
Gaz à effet de serre
A
B
C
D
E
F
G
Agent
APPARTISSY
Estiven BODIN
Mettre en avant cette annonce
Signaler une erreur
Localisation :
L'adresse exacte n'est pas renseignée. Le bien se situe dans cette zone.
Performance énergétique :
Logement économe
A
B
C
D
E
319
kWh/m²/an
8
kg CO₂/m²/an
F
G
Logement énergivore
Faible émission de CO₂
A
B
8
kg CO₂/m²/an
C
D
E
F
G
Forte émission de CO₂
Date du diagnostic :
10 juin 2024
Ventes d'appartements à proximité
- 86 ventes d'appartements à Saint-Cloud (2.5 km)
- 76 ventes d'appartements à Sèvres (2.9 km)
- 111 ventes d'appartements à Meudon (3 km)
- 217 ventes d'appartements à Issy-les-Moulineaux (3 km)
- 206 ventes d'appartements à Suresnes (3.7 km)
- 121 ventes d'appartements à Garches (3.8 km)
- 35 ventes d'appartements à Ville-d'Avray (4 km)
- 93 ventes d'appartements à Vanves (4 km)
- 174 ventes d'appartements à Clamart (4.6 km)