• Appartement - 52 m² - 2 pièces
  • Appartement - 52 m² - 2 pièces
227 900 €
52 m²
2 pièces
1 chambre

Description :

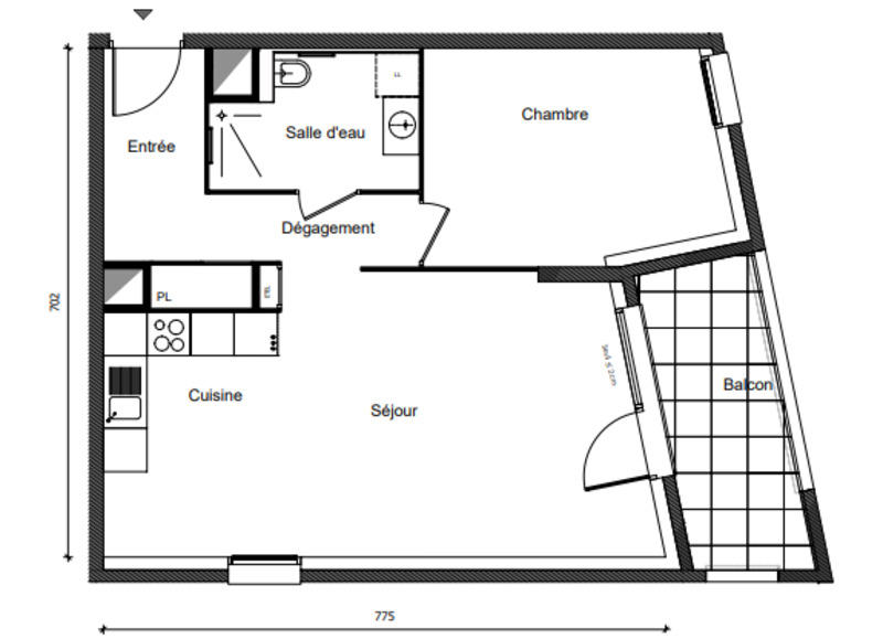
Situé au premier étage, cet appartement T2 de 52 m² offre un cadre de vie agréable grâce à sa localisation idéale entre confort urbain, espaces naturels et services de proximité. Vous profiterez également d'une terrasse de 7 m².

L'appartement se compose d'une entrée, d'un vaste séjour/cuisine, d'une chambre, d'une salle d'eau avec WC.

La résidence, conçue dans un esprit moderne et sécurisé, propose des prestations soignées telles que les volets roulants électriques, un chauffage par pompe à chaleur, un visiophone, un système de badge d'accès et plusieurs espaces dédiés aux résidents.

Idéalement implantée à Bonneville, la résidence se trouve à proximité de la gare, des commerces, des écoles et de nombreuses activités et loisirs.

Les informations sur les risques auxquels ce bien est exposé sont disponibles sur le site Géorisques : www. georisques. gouv. fr.

Réseau Immobilier CAPIFRANCE - Votre agent commercial (RSAC N°877 974 642 - Greffe de THONON LES BAINS) Vincent BANCHERI Entrepreneur Individuel 06 21 53 16 65 - Réf.304121

Afficher plus de détails

Informations sur ce bien :

L'intérieur :

  • 2 pièces
  • 52 m²
    Informations complémentaires
    Surface habitable : 52 m²
  • 1 Chambre
  • 1 Salle d'eau

Autres :

  • Étage :
    1er étage
Synthèse
Appartement à Bonneville
227 900 €
Surface : 52 m²
Prix au m² : 4 383 €
Transaction :
Achat
Référence :
340936178997
Date de publication :
Il y a plus de 7 jours
Appartement - 52 m² - 2 pièces
Agent
CAPIFRANCE
CAPIFRANCE
Monsieur Vincent BANCHERI
Appeler
Écrire
Mettre en avant cette annonce
Signaler une erreur

Localisation :

L'adresse exacte n'est pas renseignée. Le bien se situe dans cette zone.

Performance énergétique :

Bien non soumis au Diagnostic de Performance Énergétique (DPE)

Annonces similaires
Annonces immobilières récentes