• Appartement - 65 m² - 3 pièces
  • Appartement - 65 m² - 3 pièces
  • Appartement - 65 m² - 3 pièces
  • Appartement - 65 m² - 3 pièces
304 300 €
65 m²
3 pièces
2 chambres

Description :

GRAND JARDIN - RÉSIDENCE INTIMISTE AU COEUR DE BLANQUEFORT

Parfaitement implantée au centre de Blanquefort, à deux pas de la mairie, des commerces, des écoles et des transports, cette résidence intimiste se distingue par son calme et la qualité de son cadre de vie. Son implantation soignée en fait une adresse privilégiée, idéale pour ceux qui souhaitent allier confort, praticité et tranquillité au quotidien.

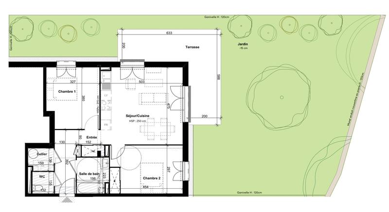
Découvrez ce très beau T3 en rez-de-jardin, profitant d'un agencement optimal et d'une belle luminosité. La pièce de vie bénéficie d'une ouverture sur un jardin privatif exceptionnel de 145 m², véritable havre de paix qui permet de profiter d'un espace extérieur rare en coeur de ville.
Côté nuit, deux chambres confortables, une salle de bains moderne avec WC ainsi qu'un cellier offrant un rangement appréciable complètent l'ensemble.

Quatre places de stationnement sont disponibles en SUS obligatoire (20 000€).

- Garanties
- Normes RE2020
- Frais de Notaire OFFERTS
- Disponible Immédiatement
- ...

Visuel non contractuel - suggestion d'aménagement

GRAND JARDIN - RÉSIDENCE INTIMISTE AU COEUR DE BLANQUEFORT

Honoraires à la charge du vendeur. Dans une copropriété de 16 lots. Aucune procédure n'est en cours. DPE en cours. Les informations sur les risques auxquels ce bien est exposé sont disponibles sur le site Géorisques : georisques.gouv.fr.

Votre conseiller RH Patrimoine : Maxime HERVE
Agent commercial (Entreprise individuelle)
RSAC 133095555 J
RCP 13309666 J

Afficher plus de détails

Informations sur ce bien :

L'intérieur :

  • 3 pièces
  • 65 m²
  • 2 Chambres
  • Cuisine américaine
    Informations complémentaires
    Américaine
  • 1 Salle de bain
  • 1 Toilette
  • Séjour de 24 m²

L'extérieur :

  • Terrasse
  • 4 Parkings

Les équipements :

  • Ascenseur
  • Accès handicapé
  • Interphone

Autres :

  • Chauffage :
    Individuel, Électrique
  • Année de construction :
    2025
  • Exposition :
    Sud
  • Vue :
    Dégagée
  • Étage :
    RDC
    Informations complémentaires
    Nombre d'étages de la construction : 2

Copropriété :

  • Copropriété :
    Oui
  • Nombre de lots :
    16
Synthèse
Appartement à Blanquefort
304 300 €
Surface : 65 m²
Prix au m² : 4 682 €
Transaction :
Achat
Référence :
VA3206-RHPATRI
Date de publication :
Il y a plus de 7 jours
Appartement - 65 m² - 3 pièces
Agent
RH Patrimoine
RH Patrimoine
Maxime HERVE
Appeler
Écrire
Mettre en avant cette annonce
Signaler une erreur

Localisation :

L'adresse exacte n'est pas renseignée. Le bien se situe dans cette zone.
Annonces similaires
Annonces immobilières récentes