• Appartement - 90 m² - 4 pièces
  • Appartement - 90 m² - 4 pièces
  • Appartement - 90 m² - 4 pièces
  • Appartement - 90 m² - 4 pièces
353 900 €
90 m²
4 pièces
3 chambres

Description :

Idéalement située sur la route des Vins d'Alsace, entre Obernai et Sélestat, la ville de Barr vous séduira par ses nombreux atouts, notamment la proximité des établissements scolaires (de la maternelle au lycée), supermarchés, restaurants, médecins, pharmacie, médiathèque, associations sportives, etc.
La commune de BARR dispose de sa propre gare ferroviaire, permettant de relier facilement les principales villes alentours, de Strasbourg à Colmar, en passant par Sélestat. Vous pourrez rejoindre rapidement les axes autoroutiers principaux (A35). Cette construction neuve respecte la norme en vigueur RE2020.

Frais de notaires réduits*
Éligible au Prêt à taux Zéro (PTZ)

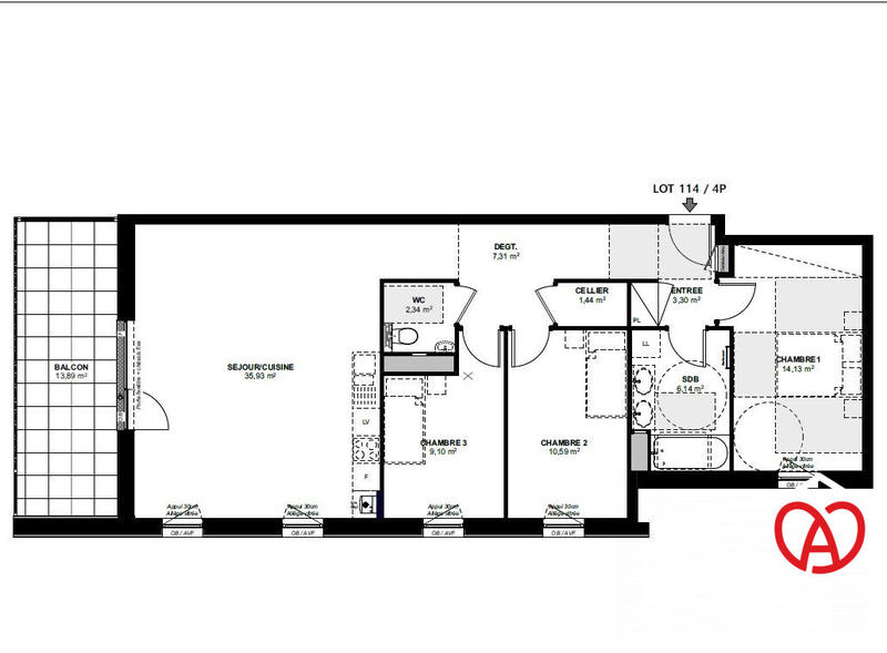
Nous vous proposons de découvrir dans la nouvelle Résidence 'L'Envol' cet appartement neuf F4 au 1er étage de 90,39m².

Le bien comprend :
- une entrée avec cellier ;
- un séjour ouvert sur cuisine de plus de 35,93m² ;
- une chambre avec espace de rangement de plus de 14,13m² ;
- deux chambres de 9,10m² et 10,59m² ;
- une salle de bains ;
- un toilette séparé avec lave-mains.
Un balcon de 13,89m² complète le bien.

Possibilité d'acquérir une place de parking et un garage en sous-sol (infos sur demande).

Les prestations intérieures
Menuiseries bicolore
Portes laquées
Chauffage au sol
Peinture lisse
Choix exclusif de revêtements de sols
Volet roulant électrique
Placards
Les prestations extérieuresEspaces communs végétalisés
Jardins clôturés, engazonnés et arborés
Grandes terrasses
Stationnements intérieurs et extérieurs
Local à vélos
Caves
Pour tout renseignement :
Karen MONJAL
O6.22.98.35.97 ou O3.88.O8.91.O9
Agence Alsacienne Immobilier
4, Grand Rue 67140 BARR

D'autres biens disponibles dans la même Résidence :
Appartement au RDC 3 pièces - 64.01 m² - 249 990 €
Appartement au RDC 4 pièces - 90,39 m² - 353 900 €
Appartement au 1er étage 3 pièces - 64.01 m² - 244 900 €
Appartement au 1er étage 3 pièces - 66.52 m² - 259 900 €
Appartement au 2ème étage 3 pièces - 70,86 m² - 276 900 €
*Dans le neuf, les frais relatifs à l'établissement de l'acte de vente et des droits fiscaux s'élèvent entre 2 à 3 % du prix de vente (contre 7 à 8% dans l'ancien).

Dans une copropriété de 13 lots. Aucune procédure n'est en cours. Non soumis au DPE. Les informations sur les risques auxquels ce bien est exposé sont disponibles sur le site Géorisques : georisques.gouv.fr.
Retrouvez l'annonce de l'agence immobilière Alsacienne Immobilier Barr sur : https://www.alsace.immo/ref/VA2054

Afficher plus de détails

Informations sur ce bien :

L'intérieur :

  • 4 pièces
  • 90 m²
  • 3 Chambres
  • Cuisine américaine
    Informations complémentaires
    Américaine
  • 1 Salle de bain
  • 1 Toilette
  • Séjour de 36 m²

L'extérieur :

  • Balcon de 14 m²
  • Parking
  • Box

Les équipements :

  • Ascenseur

Autres :

  • Chauffage :
    Gaz
  • Année de construction :
    2025
  • Étage :
    1er étage
    Informations complémentaires
    Nombre d'étages de la construction : 3

Copropriété :

  • Copropriété :
    Oui
  • Nombre de lots :
    13
Synthèse
Appartement à Barr
353 900 €
Surface : 90 m²
Prix au m² : 3 932 €
Transaction :
Achat
Référence :
VA2054-VIGNOBLE
Date de publication :
Il y a plus de 7 jours
Appartement - 90 m² - 4 pièces
Agent
Agence Immobilière du Vignoble
Agence Immobilière du Vignoble
Alsacienne Immobilier Barr
Appeler
Écrire
Mettre en avant cette annonce
Signaler une erreur

Localisation :

Performance énergétique :

Bien non soumis au Diagnostic de Performance Énergétique (DPE)

Annonces similaires
Annonces immobilières récentes