• Appartement - 26 m² - 2 pièces
  • Appartement - 26 m² - 2 pièces
  • Appartement - 26 m² - 2 pièces
  • Appartement - 26 m² - 2 pièces
  • Appartement - 26 m² - 2 pièces
  • Appartement - 26 m² - 2 pièces
  • Appartement - 26 m² - 2 pièces
  • Appartement - 26 m² - 2 pièces
  • Appartement - 26 m² - 2 pièces
90 000 €
26 m²
2 pièces
1 chambre

Description :

Didier MILLIEN vous propose ce bien :

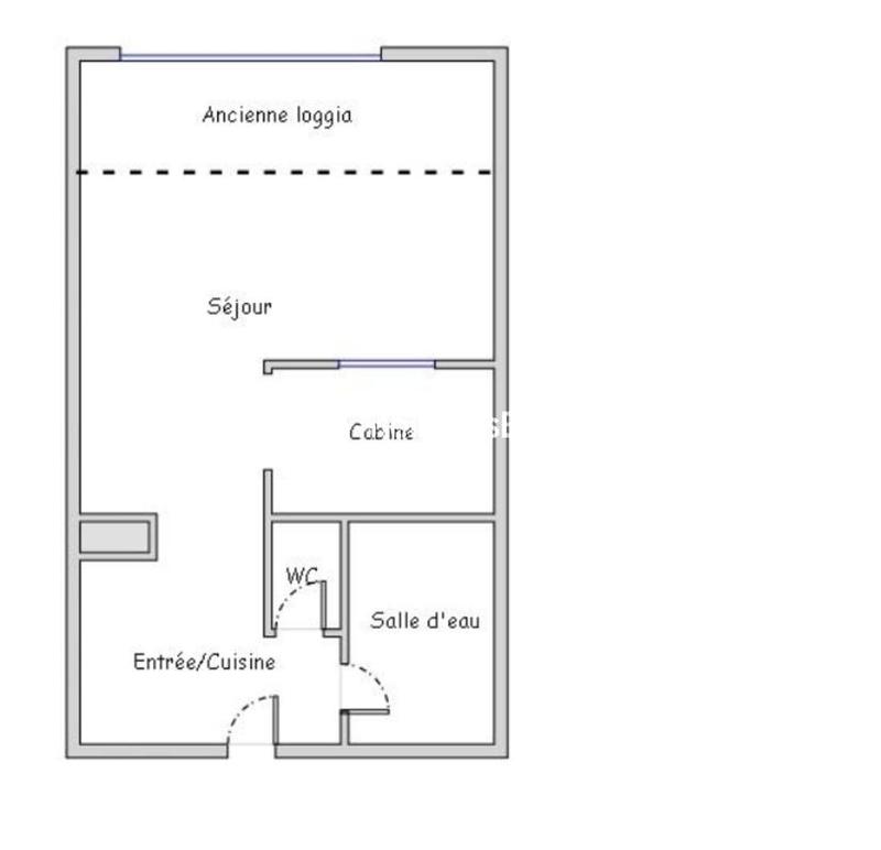
Situé au Cap d'Agde, au sein de la résidence Le Florid, avenue d'Outre Mer, cet appartement de type F2 se trouve au 1er étage d'un immeuble qui en compte 2.
Il développe 26,39 m² en loi Carrez pour une surface totale de 32,87 m².
L'appartement comprend un séjour avec cuisine, une chambre indépendante, une salle d'eau ainsi que des WC séparés.
Son agencement fonctionnel le rend idéal aussi bien pour une résidence secondaire que pour un investissement locatif.
La résidence dispose d'un parking libre réservé aux occupants (pas de garage privatif).
Les charges de copropriété s'élèvent à 1 200 € par an.
Idéalement située, la résidence Le Florid se trouve à proximité des plages, des commerces et des animations du Cap d'Agde.
Ce bien constitue une opportunité intéressante pour un pied-à-terre en bord de mer ou un projet locatif attractif.
Les informations sur les risques auxquels ce bien est exposé sont disponibles sur le site Géorisques : www.georisques.gouv.fr

Afficher plus de détails

Informations sur ce bien :

L'intérieur :

  • 2 pièces
  • 26 m²
    Informations complémentaires
    Surface habitable : 26 m²
  • 1 Chambre
  • 1 Salle d'eau
Synthèse
Appartement à Agde
90 000 €
Surface : 26 m²
Prix au m² : 3 462 €
Transaction :
Achat
Référence :
MB3418786918
Date de publication :
Il y a plus de 7 jours
Appartement - 26 m² - 2 pièces
Performance énergétique
A
B
C
D
E
F
G
Gaz à effet de serre
A
B
C
D
E
F
G
Agent
MEILLEURS BIENS IMMO
MEILLEURS BIENS IMMO
Appeler
Écrire
Mettre en avant cette annonce
Signaler une erreur

Localisation :

L'adresse exacte n'est pas renseignée. Le bien se situe dans cette zone.

Performance énergétique :

Logement économe
A
B
C
160
kWh/m²/an
4
kg CO₂/m²/an
D
E
F
G
Logement énergivore
Faible émission de CO₂
A
4
kg CO₂/m²/an
B
C
D
E
F
G
Forte émission de CO₂
Date du diagnostic : 02 février 2026
Annonces immobilières récentes