• Appartement - 41 m² - 2 pièces
  • Appartement - 41 m² - 2 pièces
  • Appartement - 41 m² - 2 pièces
  • Appartement - 41 m² - 2 pièces
  • Appartement - 41 m² - 2 pièces
183 800 €
41 m²
2 pièces
1 chambre

Description :

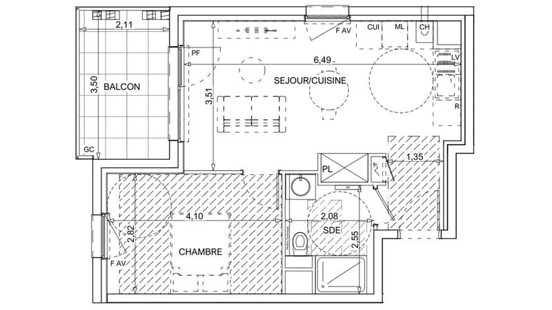
Iad France - Sarah Rozière (06 99 86 19 42) vous propose : Appartement T2 avec balcon à Wintzenheim Située rue Clemenceau à Wintzenheim, la résidence Jardin Secret s’intègre dans un environnement urbain en plein renouveau, au cOEur du village. Cette adresse propose un cadre de vie pratique et agréable, à deux pas des commerces, des transports et des équipements culturels. Disponible 2027. Un appartement raffiné : Situé au 2 ème étage, cet appartement T2 de 41 m² environ habitables se prolonge par un balcon de 7 m² environ. - Séjour / cuisine de 24 m² environ. - Une chambre confortable. - Salle d'eau moderne. - Annexe incluse : un garage. De belles prestations : - Chauffage au sol par chaudière individuelle au gaz. - Volets roulants motorisés et menuiseries PVC. - Résidence sécurisée avec contrôle d’accès. L’art de vivre à Wintzenheim : - COEur de village et services accessibles à pied. - Commerces, écoles et services à proximité immédiate. - Accès facile aux grands axes routiers. N’hésitez pas à me contacter pour plus d’informations ou pour un accompagnement sur mesure. Honoraires d’agence à la charge du vendeur. Bien non soumis au DPE. Les informations sur les risques auxquels ce bien est exposé sont disponibles sur le site Géorisques : www.georisques.gouv.fr. La présente annonce immobilière a été rédigée sous la responsabilité éditoriale de Mlle Sarah Rozière EI (ID 83696), mandataire indépendant en immobilier (sans détention de fonds), agent commercial de la SAS I@D France immatriculé au RSAC de Clermont-Ferrand sous le numéro 978616993, titulaire de la carte de démarchage immobilier pour le compte de la société I@D France SAS. Retrouvez tous nos biens sur notre site internet. www.iadfrance.fr.

Afficher plus de détails

Informations sur ce bien :

L'intérieur :

  • 2 pièces
  • 41 m²
    Informations complémentaires
    Surface habitable : 41 m²
  • 1 Chambre
  • Cuisine

L'extérieur :

  • Box

Les équipements :

  • Ascenseur
  • Interphone
  • Digicode

Autres :

  • Chauffage :
    Individuel, Gaz
  • Mitoyenneté :
    Non
  • Étage :
    2nd étage
    Informations complémentaires
    Nombre d'étages de la construction : 3
Synthèse
Appartement à Wintzenheim
183 800 €
Surface : 41 m²
Prix au m² : 4 483 €
Transaction :
Achat
Référence :
1979315
Date de publication :
Aujourd'hui à 09:03
Appartement - 41 m² - 2 pièces
Agent
iad france
iad france
Sarah Rozière
Appeler
Écrire
Mettre en avant cette annonce
Signaler une erreur

Localisation :

L'adresse exacte n'est pas renseignée. Le bien se situe dans cette zone.
Annonces similaires
Annonces immobilières récentes