• Appartement - 61 m² - 3 pièces
  • Appartement - 61 m² - 3 pièces
  • Appartement - 61 m² - 3 pièces
241 000 €
61 m²
3 pièces
2 chambres

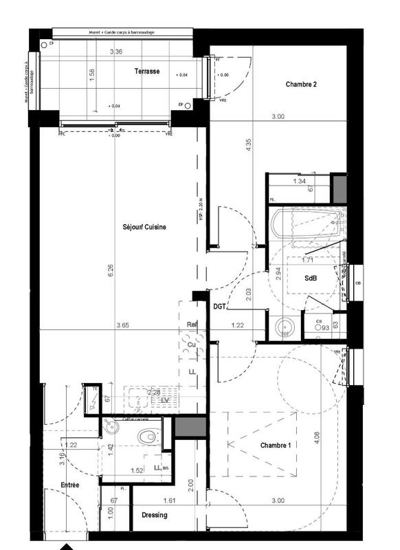
Description :

VITRÉ - Centre ville - Appartement 3 pièces de 61.29m² - 1er étage - ascenseur - loggia 5.29m² - stationnement en sous-sol sécurisé. En plein centre ville de Vitré, dans une belle résidence à proximité immédiate des commerces, des commodités et des transports, appartement 3 pièces de 61.29m², situé au 1er étage avec ascenseur comprenant : une entrée avec placard, un séjour salon avec cuisine ouverte, donnant accès à une loggia de 5.29m², deux chambres avec placard ou dressing, salle de bains, wc indépendant. Stationnement en sous-sol sécurisé. Prix promoteur - frais de notaire réduits. Les informations sur les risques auxquels ce bien est exposé sont disponibles sur le site Géorisques : www.georisques.gouv.fr. Photos non contractuelles - Suggestions d'aménagements. Copropriété de 65 lots - dont 65 lots habitation. (Pas de procédure en cours). Charges annuelles : 878 euros.

Afficher plus de détails

Informations sur ce bien :

L'intérieur :

  • 3 pièces
  • 61 m²
    Informations complémentaires
    Surface habitable : 61 m²
  • 2 Chambres
  • 1 Salle de bain
  • 1 Toilette

L'extérieur :

  • Balcon de 5 m²
  • Parking

Les équipements :

  • Ascenseur

Autres :

  • Chauffage :
    Individuel, Radiateur, Gaz
  • Étage :
    1er étage
    Informations complémentaires
    Nombre d'étages de la construction : 5
  • Nombre de niveaux :
    1

Copropriété :

  • Copropriété :
    Oui
  • Nombre de lots :
    65
  • Charges annuelles :
    878 €
  • Procédure :
    Pas de procédure en cours
Synthèse
Appartement à Vitré
241 000 €
Surface : 61 m²
Prix au m² : 3 951 €
Transaction :
Achat
Référence :
60791-C102
Date de publication :
Il y a plus de 7 jours
Appartement - 61 m² - 3 pièces
Agent
Cabinet Moraine Immobilier
Cabinet Moraine Immobilier
Appeler
Écrire
Mettre en avant cette annonce
Signaler une erreur

Localisation :

L'adresse exacte n'est pas renseignée. Le bien se situe dans cette zone.

Performance énergétique :

Bien non soumis au Diagnostic de Performance Énergétique (DPE)

Annonces similaires
Annonces immobilières récentes