• Local commercial - 115 m² - 1 pièce
  • Local commercial - 115 m² - 1 pièce
  • Local commercial - 115 m² - 1 pièce
359 848 €
115 m²
1 pièce

Description :

Opportunité à saisir à Villé!

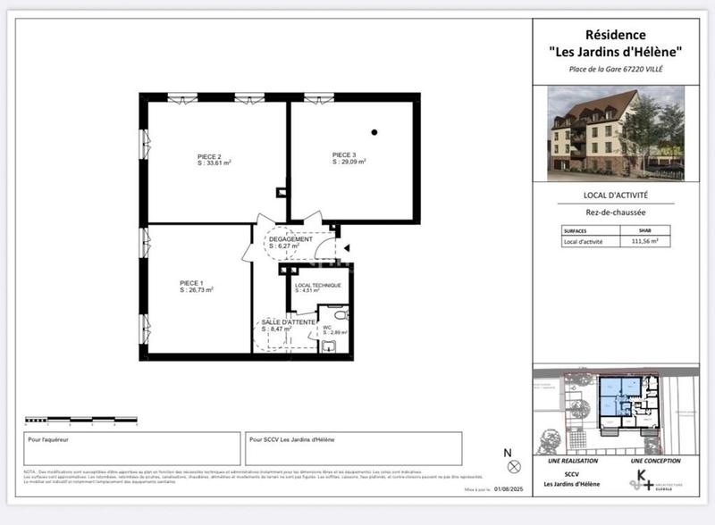
À découvrir : un local commercial en angle de 115 m², situé en rez-de-chaussée d’un immeuble de 10 logements. Grâce à ses 6 grandes fenêtres, il bénéficie d’une luminosité naturelle exceptionnelle et d’une excellente visibilité, idéale pour une activité professionnelle.

Le local est divisé en trois lots privatifs avec une salle d’attente commune incluant des sanitaires. Chaque acquéreur sera copropriétaire de cet espace commun, pour une utilisation partagée équilibrée.
Une solution intelligente et avantageuse, idéale pour accueillir plusieurs activités complémentaires dans un même lieu. Cela permet de dynamiser l'espace, de mutualiser certains coûts et de créer une atmosphÚre professionnelle et conviviale.

âž»

Lots disponibles :
• Local 1 – 26.73 m² : 82.863 € TTC
• Local 2 – 33.61 m² : 104.191 € TTC
• Local 3 – 29.09 m² : 90.179 € TTC

Chaque acquéreur contribue au prorata à la salle d'attente avec sanitaires, au local technique et au dégagement desservant les 3 piÚces.

âž»

Caractéristiques :
• Surface totale : 115 m² sur un plateau libre
• Disposition en angle : excellente visibilité
• 6 fenêtres : belle luminosité naturelle
• Aménagement et finitions personnalisables
• Usage idéal : cabinets médicaux, bureaux, professions libérales, crÚche, etc.
• Petite copropriété dynamique de 10 logements

Emplacement stratégique, facilement accessible et bien desservi.
Disponibilité prévue : 3ᵉ trimestre 2026.

âž»

Nous sommes à l’écoute de toute proposition, que vous soyez investisseur ou entrepreneur. Contactez-nous pour plus d’informations ou une visite.

ðŸ'° Local d'activité proposée au prix de vente de 359.848 euros.
📞N'attendez plus pour concrétiser votre projet professionnel à Villé. Pour toute information, contactez Andreea Lako dÚs aujourd'hui !

Prix hors honoraires d'agence 349 053 €.
Prix honoraires inclus 359 848 €.
Bien soumis au statut de la copropriété, 10 logements, procédure en cours : aucune, 24 lots, Charges budget prévisionnel annuel 1 450 €.

Annonce publiée par Andreea Dorina Lako (EI) votre agent commercial en immobilier LF immo à Epfig, 67680 immatriculé au RSAC de COLMAR sous le n°952 429 751 000 11. Consultez nos tarifs sur le site LF immo.

Les informations sur les risques auxquels ce bien est exposé sont disponibles sur le site Géorisques : www.georisques.gouv.fr.

Afficher plus de détails

Informations sur ce bien :

L'intérieur :

  • 1 pièce
  • 115 m²
    Informations complémentaires
    Surface commerciale : 115 m²
  • Cuisine

Les équipements :

  • Ascenseur

Autres :

  • Année de construction :
    2024

Copropriété :

  • Copropriété :
    Oui
  • Nombre de lots :
    24
  • Charges annuelles :
    1 450 €
Synthèse
Local commercial à Villé
359 848 €
Surface : 115 m²
Prix au m² : 3 129 €
Transaction :
Achat (professionnels)
Référence :
fr061901
Date de publication :
Il y a plus de 7 jours
Local commercial - 115 m² - 1 pièce
Agent
ABACUS
Andreea Dorina Lako
Appeler
Écrire
Mettre en avant cette annonce
Signaler une erreur

Localisation :

L'adresse exacte n'est pas renseignée. Le bien se situe dans cette zone.
Annonces similaires
Annonces immobilières récentes