• Appartement - 96 m² - 4 pièces
  • Appartement - 96 m² - 4 pièces
  • Appartement - 96 m² - 4 pièces
  • Appartement - 96 m² - 4 pièces
  • Appartement - 96 m² - 4 pièces
425 900 €
96 m²
4 pièces
3 chambres

Description :

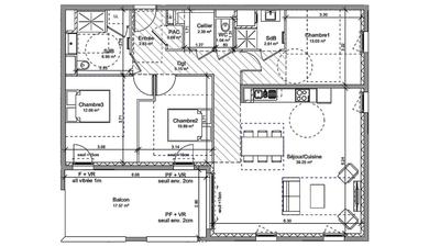
Iad France - Maanloumou Ahamadi (06 11 10 21 28) vous propose : T4 de 96,93 m² environ au 1er étage Un vrai appartement familial. Pas un compromis. 96,93 m² environ parfaitement répartis, un grand séjour, trois vraies chambres, des volumes qui respirent et une ambiance sereine. On sent tout de suite que c’est un lieu fait pour s’installer. Chauffage par pompe à chaleur collective triple service, pour un confort optimal été comme hiver. Résidence sécurisée, environnement vert, écoles, commerces, transports accessibles à pied. Stationnement privatif inclus. Un bien que les familles gardent, et qui prend de la valeur avec le temps. Honoraires d’agence à la charge du vendeur. Bien non soumis au DPE. Les informations sur les risques auxquels ce bien est exposé sont disponibles sur le site Géorisques : www.georisques.gouv.fr. La présente annonce immobilière a été rédigée sous la responsabilité éditoriale de M. Maanloumou Ahamadi EI (ID 86601), mandataire indépendant en immobilier (sans détention de fonds), agent commercial de la SAS I@D France immatriculé au RSAC de CLERMONT-FERRAND sous le numéro 940940034, titulaire de la carte de démarchage immobilier pour le compte de la société I@D France SAS. Retrouvez tous nos biens sur notre site internet. www.iadfrance.fr.

Afficher plus de détails

Informations sur ce bien :

L'intérieur :

  • 4 pièces
  • 96 m²
    Informations complémentaires
    Surface habitable : 96 m²
  • 3 Chambres

L'extérieur :

  • Terrasse
  • Parking

Les équipements :

  • Ascenseur

Autres :

  • Mitoyenneté :
    Non
  • Étage :
    1er étage
    Informations complémentaires
    Nombre d'étages de la construction : 3
Synthèse
Appartement à Vif
425 900 €
Surface : 96 m²
Prix au m² : 4 436 €
Transaction :
Achat
Référence :
1987168
Date de publication :
Aujourd'hui à 07:53
Appartement - 96 m² - 4 pièces
Agent
iad france
iad france
Maanloumou Ahamadi
Appeler
Écrire
Mettre en avant cette annonce
Signaler une erreur

Localisation :

L'adresse exacte n'est pas renseignée. Le bien se situe dans cette zone.
Annonces similaires
Annonces immobilières récentes