• Terrain constructible - 850 m²
  • Terrain constructible - 850 m²
  • Terrain constructible - 850 m²
  • Terrain constructible - 850 m²
265 000 €
850 m²

Description :

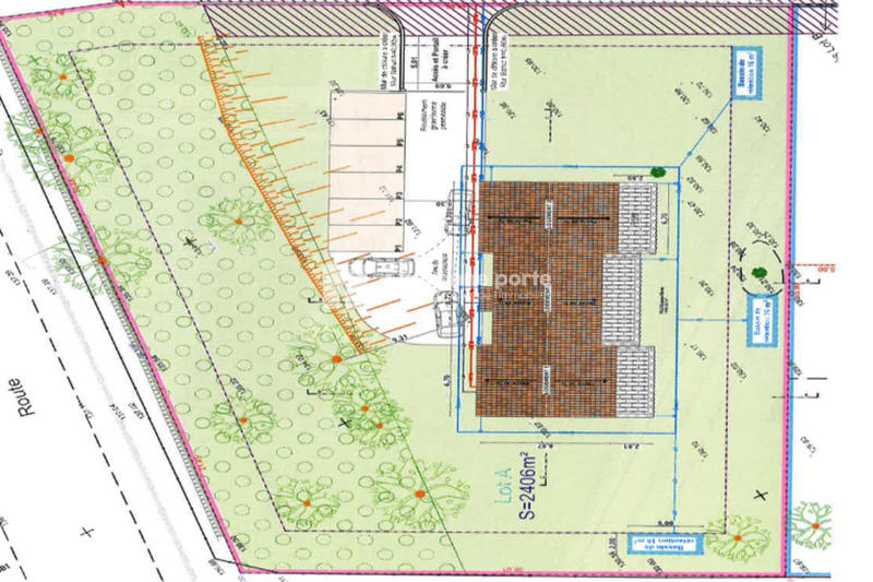
VENTABREN ? Terrain à bâtir avec permis de construire

a vendre à Ventabren, terrain à bâtir viabilisé d'une superficie de 850 m², situé au sein d'un petit ensemble résidentiel composé de trois maisons modernes.

Le projet de construction prévoit la réalisation d'une maison R+1 d'environ 89 m² habitables comprenant :

Au rez-de-chaussée : une pièce de vie avec cuisine ouverte, un WC et un accès direct au jardin orienté sud.

a l'étage : trois chambres, une salle de bains et un WC séparé.

Stationnement : deux places privatives incluses dans le projet.

La construction, conforme à la réglementation environnementale RE2020, assure confort thermique et performance énergétique.

Le coût prévisionnel de la construction est estimé à 189 000 € (hors terrain).

Situé dans un environnement verdoyant et partiellement boisé, le terrain bénéficie d'une orientation plein sud et d'un cadre résidentiel agréable, à proximité immédiate des commodités et des axes principaux.

Prix du terrain : 265 000 €

Prix total prévisionnel du projet : 454 000 €

Pour plus d'informations et organiser une visite, contactez-moi dès aujourd'hui !

Magali VALLET-LEFEBVRE

0609490587

RSAC795311307EI

Les informations sur les risques auxquels ce bien est exposé sont disponibles sur le site Géorisques : wwwgeorisques.gouv.fr

Afficher plus de détails

Informations sur ce bien :

L'intérieur :

  • 850 m²

Terrain :

  • Viabilisé :
    Non
Synthèse
Terrain constructible à Ventabren
265 000 €
Surface : 850 m²
Prix au m² : 312 €
Transaction :
Achat
Référence :
857V11T
Date de publication :
Hier à 23:13
Terrain constructible - 850 m²
Agent
Maxihome
Maxihome
A LA BONNE PORTE
Appeler
Écrire
Mettre en avant cette annonce
Signaler une erreur

Localisation :

L'adresse exacte n'est pas renseignée. Le bien se situe dans cette zone.
Annonces similaires
Annonces immobilières récentes