• Terrain - 850 m²
  • Terrain - 850 m²
  • Terrain - 850 m²
  • Terrain - 850 m²
265 000 €
850 m²

Description :

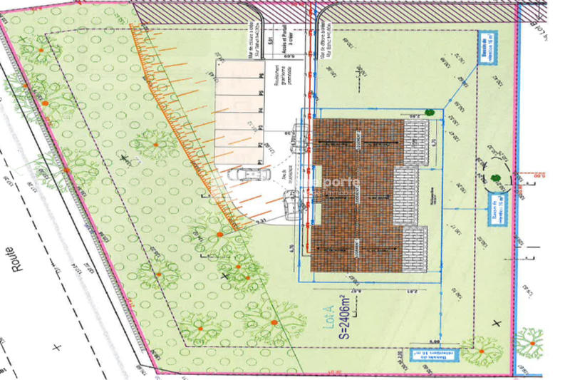
VENTABREN ? Terrain à bâtir avec permis de construire
À vendre à Ventabren, terrain à bâtir viabilisé d'une superficie de 850 m², situé au sein d'un petit ensemble résidentiel composé de trois maisons modernes.
Le projet de construction prévoit la réalisation d'une maison R+1 d'environ 89 m² habitables comprenant :
Au rez-de-chaussée : une pièce de vie avec cuisine ouverte, un WC et un accès direct au jardin orienté sud.
À l'étage : trois chambres, une salle de bains et un WC séparé.
Stationnement : deux places privatives incluses dans le projet.
La construction, conforme à la réglementation environnementale RE2020, assure confort thermique et performance énergétique.
Le coût prévisionnel de la construction est estimé à 189 000 ¤ (hors terrain).
Situé dans un environnement verdoyant et partiellement boisé, le terrain bénéficie d'une orientation plein sud et d'un cadre résidentiel agréable, à proximité immédiate des commodités et des axes principaux.
Prix du terrain : 265 000 ¤
Prix total prévisionnel du projet : 454 000 ¤
Pour plus d'informations et organiser une visite, contactez-moi dès aujourd'hui !
Magali VALLET-LEFEBVRE
0609490587
RSAC795311307EI
Les informations sur les risques auxquels ce bien est exposé sont disponibles sur le site Géorisques : wwwgeorisques.gouv.fr

Afficher plus de détails

Informations sur ce bien :

L'intérieur :

  • 850 m²

L'extérieur :

  • Parking

Terrain :

  • Viabilisé :
    Non
Synthèse
Terrain à Ventabren
265 000 €
Surface : 850 m²
Prix au m² : 312 €
Transaction :
Achat
Référence :
857V11T
Date de publication :
Il y a plus de 7 jours
Terrain - 850 m²
Agent
à la bonne porte
à la bonne porte
Appeler
Écrire
Mettre en avant cette annonce
Signaler une erreur

Localisation :

L'adresse exacte n'est pas renseignée. Le bien se situe dans cette zone.
Annonces similaires
Annonces immobilières récentes