• Appartement - 17 m² - 1 pièce
  • Appartement - 17 m² - 1 pièce
  • Appartement - 17 m² - 1 pièce
170 717 €
17 m²
1 pièce

Description :

L'élégance urbaine au cœur d'un quartier recherché.
Une adresse privilégiée pour ce nouveau programme immobilier en rénovation complète, qui s'inscrit dans un cadre paisible et verdoyant, à proximité immédiate du centre-ville de Vanves et des portes de Paris.

L'architecture du projet s'intègre harmonieusement dans l'environnement existant. Les façades élégantes et les matériaux nobles reflètent une qualité de construction durable et respectueuse du patrimoine local.

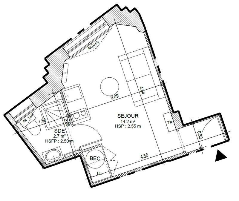
Le bien objet de la présente annonce, est un studio situé au 4e étage exposé Est. Il comprend un ensemble séjour/kitchenette de 14.20 m2 avec placard et une salle de douche avec fenêtre et wc intégré.

D'autres lots sont disponible dans ce programme livrable pour la fin de ce premier trimestre 2026.
Renseignements et réservations sur simple appel téléphonique.

Le chauffage de l'ECS est assuré par un ballon électrique, le chauffage des locaux par un dispositif type Pompe à chaleur collective.
Isolation phonique optimale avec des doubles menuiseries
Ascenseur
Local vélo
Interphone type Intratone
Les informations sur les risques auxquels ce bien est exposé sont disponibles sur le site Géorisques : www. georisques. gouv. fr.

Réseau Immobilier CAPIFRANCE - Votre agent commercial (RSAC N°320 483 217 - Greffe de ROUEN) Thierry DUGAT Entrepreneur Individuel 06 60 60 40 10 - Réf.304121

Afficher plus de détails

Informations sur ce bien :

L'intérieur :

  • 1 pièce
  • 17 m²
    Informations complémentaires
    Surface habitable : 17 m²
  • 1 Salle d'eau

Autres :

  • Étage :
    4ème étage
Synthèse
Appartement à Vanves
170 717 €
Surface : 17 m²
Prix au m² : 10 042 €
Transaction :
Achat
Référence :
340930069012
Date de publication :
Aujourd'hui à 08:19
Appartement - 17 m² - 1 pièce
Agent
CAPIFRANCE
CAPIFRANCE
Monsieur Thierry DUGAT
Appeler
Écrire
Mettre en avant cette annonce
Signaler une erreur

Localisation :

Performance énergétique :

Bien non soumis au Diagnostic de Performance Énergétique (DPE)

Annonces similaires
Annonces immobilières récentes