• Appartement - 41 m² - 2 pièces
  • Appartement - 41 m² - 2 pièces
  • Appartement - 41 m² - 2 pièces
  • Appartement - 41 m² - 2 pièces
191 000 €
41 m²
2 pièces
1 chambre

Description :

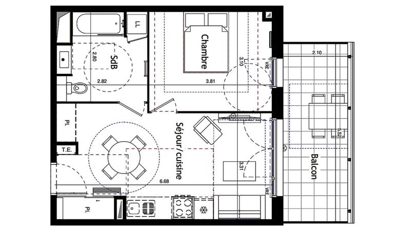
Dans une résidence en cours de construction, découvrez ce T2 de 41,34 m², au 1er étage, exposé Est, offrant une belle luminosité. Il comprend un séjour-cuisine et une chambre, tous deux donnant sur la terrasse, idéale pour profiter de l'extérieur.
A seulement 150 mètres de la plage et à quelques minutes à pied des commerces et services, cet appartement permet de profiter pleinement de la vie balnéaire tout en restant proche du centre-ville.
Le stationnement, rare dans ce secteur, est inclus grâce à une place de parking privative, garantissant sécurité et facilité d'accès toute l'année.
Profitez d'un accès immédiat aux plages, aux commerces et aux lieux de vie, tout en bénéficiant du calme de votre résidence.
Ce bien correspond-il à vos critères de recherche (surface, standing, stationnement) ?
Prix : 191 000 euros (honoraires à la charge du vendeur) DPE en cours.
Pour visiter et vous accompagner dans votre projet, contactez Michel HORNECKER, au 0699405021 ou, par courriel à m.hornecker@proprietes-privees.com.
Selon l'article L.561.5 du Code Monétaire et Financier, pour l'organisation de la visite, la présentation d'une pièce d'identité vous sera demandée.
Cette présente annonce a été rédigée sous la responsabilité éditoriale de Michel HORNECKER agissant sous le statut d'agent commercial immatriculé au RSAC BEZIERS 493044283 auprès de SAS PROPRIETES PRIVEES, au capital de 44 920 euros, ZAC LE CHÊNE FERRÉ - 44 ALLÉE DES CINQ CONTINENTS 44120 VERTOU; SIRET 487 624 777 00040, RCS Nantes. Carte
Professionnelle Transactions sur immeubles et fonds de commerce (T) et Gestion immobilière (G) n°CPI 4401 2016 000 010 388 délivrée par la CCI Nantes - Saint Nazaire. Compte séquestre n°30932508467 BPA SAINT-SEBASTIEN-SUR-LOIRE (44230). Garantie GALIAN-SMABTP - 89 rue de la Boétie, 75008 Paris - n°28137 J pour 2 000 000 euros pour T et 120 000 euros pour G. Assurance responsabilité civile professionnelle par GALIAN-SMABTP n° de police 28137.J
Mandat réf : 433616 Le professionnel garantit et sécurise votre projet immobilier.
Copropriété de 80 lots - dont 46 lots habitation. ().

Charges annuelles : 1000 euros.
Michel HORNECKER (EI) Agent Commercial - Numéro RSAC : BEZIERS 493044283 - .
Les informations sur les risques auxquels ce bien est exposé sont disponibles sur le site Géorisques : www. georisques. gouv. fr

Afficher plus de détails

Informations sur ce bien :

L'intérieur :

  • 2 pièces
  • 41 m²
    Informations complémentaires
    Surface habitable : 41 m²
  • 1 Chambre
  • Cuisine nue
    Informations complémentaires
    Nue
  • 1 Salle d'eau
  • 1 Toilette
  • Séjour de 23 m²

L'extérieur :

  • Terrasse
  • Parking extérieur
    Informations complémentaires
    Extérieur

Les équipements :

  • Ascenseur
  • Interphone
  • Digicode

Autres :

  • Chauffage :
    Collectif, Pompe à chaleur
  • État :
    Excellent, Intérieur : Excellent
  • Exposition :
    Est
  • Étage :
    1er étage
    Informations complémentaires
    Nombre d'étages de la construction : 3

Copropriété :

  • Copropriété :
    Oui
  • Nombre de lots :
    80
  • Charges annuelles :
    1 000 €
Synthèse
Appartement à Valras-Plage
191 000 €
Surface : 41 m²
Prix au m² : 4 659 €
Transaction :
Achat
Référence :
433616HKM
Date de publication :
Il y a plus de 7 jours
Appartement - 41 m² - 2 pièces
Agent
Propriétés Privées
Propriétés Privées
Michel HORNECKER
Appeler
Écrire
Mettre en avant cette annonce
Signaler une erreur

Localisation :

Performance énergétique :

Bien non soumis au Diagnostic de Performance Énergétique (DPE)

Annonces similaires
Annonces immobilières récentes