• Duplex - 108 m² - 6 pièces
  • Duplex - 108 m² - 6 pièces
  • Duplex - 108 m² - 6 pièces
2 800 000 €
108 m²
6 pièces
4 chambres

Description :

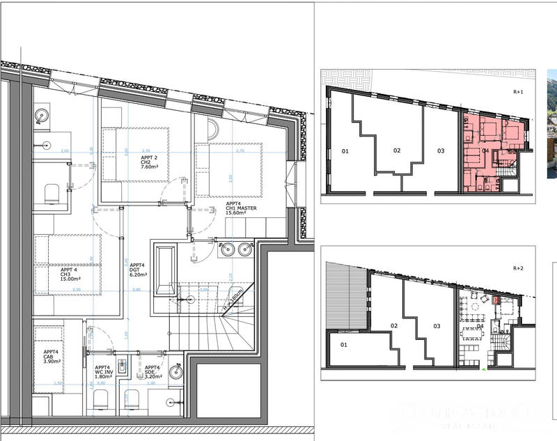
Découvrez ce superbe penthouse neuf de 107,50 m², dont la livraison est prévue en 2027. Conçu en duplex, il offre des volumes généreux et une atmosphère élégante rappelant l'esprit d'un véritable chalet de montagne.
Le niveau inférieur se compose de trois chambres doubles, dont deux suites, ainsi qu'une chambre d'enfants, idéalement pensées pour accueillir famille et invités dans un confort optimal. À l'étage supérieur, une suite supplémentaire et un vaste séjour de plus de 40 m² forment un espace de vie remarquable. Doté d'une cheminée, de larges baies vitrées et de belles hauteurs sous toiture, ce séjour bénéficie d'une luminosité exceptionnelle et d'un cachet unique.
L'aménagement intérieur associera lignes contemporaines et ambiance chaleureuse, sublimée par l'utilisation de matériaux naturels tels que la pierre et le bois. Ce penthouse se prête parfaitement aussi bien à un projet familial qu'à un investissement locatif, avec possibilité de récupération de TVA sous conditions.
Frais de notaire réduits.
Photos non contractuelles, issues de précédentes réalisations du promoteur.
Copropriété de 54 lots, aucune procédure en cours.

Dans une copropriété de 54 lots. Quote-part moyenne du budget prévisionnel 3 000 €/an. Aucune procédure n'est en cours. Non soumis au DPE. Les informations sur les risques auxquels ce bien est exposé sont disponibles sur le site Géorisques : georisques.gouv.fr.

Votre conseiller LLOYD & DAVIS : Cécile Magnin
Agent commercial (Entreprise individuelle)
RSAC 390 481 042 Chambéry
RCP 101PGMAN-AW20316 APIVIA

Afficher plus de détails

Informations sur ce bien :

L'intérieur :

  • 6 pièces
  • 108 m²
  • 4 Chambres
  • 1 Salle de bain
  • 3 Salles d'eau
  • 4 Toilettes

L'extérieur :

  • Parking

Les équipements :

  • Ascenseur

Autres :

  • Étage :
    RDC

Copropriété :

  • Copropriété :
    Oui
  • Nombre de lots :
    54
  • Charges annuelles :
    3 000 €
Synthèse
Duplex à Val-d'Isère
2 800 000 €
Surface : 108 m²
Prix au m² : 25 926 €
Transaction :
Achat
Référence :
VA5059-LLOYD&DAVIS
Date de publication :
Il y a plus de 7 jours
Duplex - 108 m² - 6 pièces
Agent
LLOYD & DAVIS
LLOYD & DAVIS
Cécile Magnin
Appeler
Écrire
Mettre en avant cette annonce
Signaler une erreur

Localisation :

L'adresse exacte n'est pas renseignée. Le bien se situe dans cette zone.

Performance énergétique :

Bien non soumis au Diagnostic de Performance Énergétique (DPE)

Annonces similaires
Annonces immobilières récentes