• Duplex - 84 m² - 4 pièces
  • Duplex - 84 m² - 4 pièces
  • Duplex - 84 m² - 4 pièces
1 900 000 €
84 m²
4 pièces
3 chambres

Description :

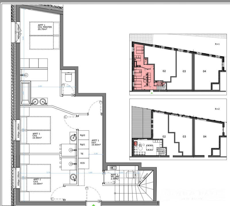
Dans le cadre du projet de surélévation de la résidence Illaz, découvrez ce duplex d'environ 82 m², pensé pour conjuguer modernité, confort et esprit montagnard.Le niveau principal accueille une entrée menant à trois chambres avec salles d'eau privatives, offrant à chacun un espace intime et harmonieux, sublimé par des matériaux de qualité et des volumes soigneusement étudiés.
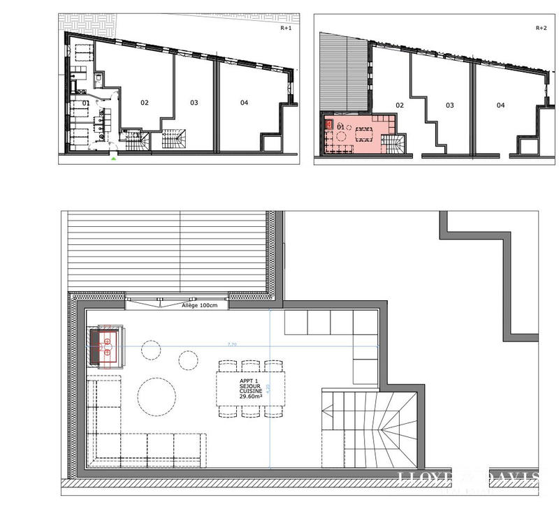
À l'étage, la pièce de vie bénéficie d'une belle hauteur sous plafond et d'une exposition Ouest, apportant une luminosité naturelle généreuse. La cheminée devient le coeur de l'appartement, idéale pour partager des moments chaleureux après une journée en montagne.Visuels non contractuels, présentés à titre d'illustration des précédentes réalisations du promoteur.Copropriété de 54 lots - aucune procédure en cours.

Dans une copropriété de 54 lots. Quote-part moyenne du budget prévisionnel 2 000 €/an. Aucune procédure n'est en cours. Non soumis au DPE. Les informations sur les risques auxquels ce bien est exposé sont disponibles sur le site Géorisques : georisques.gouv.fr.

Votre conseiller LLOYD & DAVIS : Cécile Magnin
Agent commercial (Entreprise individuelle)
RSAC 390 481 042 Chambéry
RCP 101PGMAN-AW20316 APIVIA

Afficher plus de détails

Informations sur ce bien :

L'intérieur :

  • 4 pièces
  • 84 m²
  • 3 Chambres
  • Cuisine équipée
    Informations complémentaires
    Équipée
  • 1 Salle de bain
  • 2 Toilettes

L'extérieur :

  • Parking

Les équipements :

  • Ascenseur

Autres :

  • Année de construction :
    1950
  • Exposition :
    Ouest
  • Vue :
    Dégagée
  • Étage :
    1er étage

Copropriété :

  • Copropriété :
    Oui
  • Nombre de lots :
    54
  • Charges annuelles :
    2 000 €
Synthèse
Duplex à Val-d'Isère
1 900 000 €
Surface : 84 m²
Prix au m² : 22 619 €
Transaction :
Achat
Référence :
6017-LLOYD&DAVIS
Date de publication :
Il y a plus de 7 jours
Duplex - 84 m² - 4 pièces
Agent
LLOYD & DAVIS
LLOYD & DAVIS
Cécile Magnin
Appeler
Écrire
Mettre en avant cette annonce
Signaler une erreur

Localisation :

L'adresse exacte n'est pas renseignée. Le bien se situe dans cette zone.

Performance énergétique :

Bien non soumis au Diagnostic de Performance Énergétique (DPE)

Annonces similaires
Annonces immobilières récentes