Appartement - 45 m² - 2 pièces à Toulon
favoris
166 650 €
Description :
- ENCORE DES T2 ET T3 DE DISPONIBLES AVEC PLACE DE PARKING INCLUS, CONTACTEZ-NOUS -
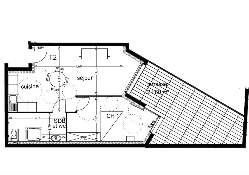
Dans une résidence intimiste composée seulement d'une vingtaine d'appartements, située entre le Faron et le centre-ville, se trouve ce superbe T2 et sa grande terrasse.
L'appartement de 44,85 m2 se compose d'un séjour cuisine de 25,21 m2, d'une salle de bain avec wc de 6,47 m2 et d'une belle chambre de 13,7 m2. Le salon et la chambre ont une ouverture sur la terrasse de 21,65 m2 exposée SUD-EST.
Une place de parking intérieur complète cet appartement. Normes RT2012. Éligible au Prêt à Taux 0% et éligible au dispositif PINEL. Livraison 1T 2022.
PRIX DIRECT PROMOTEUR 166 650 EUROS.
Afficher plus de détails
Informations sur ce bien :
L'intérieur :
-
2 pièces
-
45 m²
-
1 Chambre
-
Sans cuisineInformations complémentairesSans cuisine
-
1 Salle de bain
-
1 Toilette
-
Séjour de 25 m²
L'extérieur :
-
Terrasse
-
Parking
Autres :
-
Année de construction :2022
-
Exposition :Sud, Est
-
Étage :1er étage
Copropriété :
-
Copropriété :Oui
-
Nombre de lots :20
Synthèse
Appartement à Toulon
166 650 €
Surface :
45 m²
Prix au m² :
3 703 €
Transaction :
Achat
Référence :
10
Date de publication :
Il y a plus de 7 jours
Contacter l'annonceur
Agent
BOERO PATRIMOINE
Mettre en avant cette annonce
Signaler une erreur
Localisation :
L'adresse exacte n'est pas renseignée. Le bien se situe dans cette zone.
Performance énergétique :
Bien non soumis au Diagnostic de Performance Énergétique (DPE)
Ventes d'appartements à proximité
- 416 ventes d'appartements à La Seyne-sur-Mer (4.7 km)
- 62 ventes d'appartements à La Valette-du-Var (5.1 km)
- 33 ventes d'appartements à Saint-Mandrier-sur-Mer (5.4 km)
- 24 ventes d'appartements à Ollioules (6.7 km)
- 59 ventes d'appartements à La Garde (7.3 km)
- 27 ventes d'appartements au Pradet (7.6 km)
- 213 ventes d'appartements à Six-Fours-les-Plages (8 km)
- 180 ventes d'appartements à Sanary-sur-Mer (10.3 km)
- 6 ventes d'appartements à La Farlède (10.6 km)