Retour
Rechercher
Lieu
Où ?
    Type de bien
    Quel type de projet ?
    Particulier Entreprise
    Quel type de bien ?
        Prix
        Quel budget ?
              Surface
              Quelle surface ?
                    Pièces
                    Combien de pièces ?
                      Combien de chambres ?
                          198

                          Ventes d'appartements à Six-Fours-les-Plages

                          Recherche 198
                          Carte
                          • Appartement - 40 m² - 2 pièces
                          • Appartement - 40 m² - 2 pièces
                          • Appartement - 40 m² - 2 pièces
                          • Appartement - 40 m² - 2 pièces
                          • Appartement - 40 m² - 2 pièces
                          • Appartement - 40 m² - 2 pièces Cliquez pour voir les 7 photos

                          Appartement - 40 m² - 2 pièces

                          283 000 €
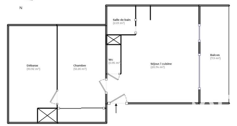
                          83140 SIX-FOURS-LES-PLAGES - Quartier central et recherché - Appartement Type 2 avec terrasse et parking privatif - Refait à neuf - Calme - Résidence principale, pied-à-terre ou investissement Dany ALORY effiCity et Bruno JEANJEAN, l'Agence qui estime votre bien en ligne, vous propose un appartement type deux, d'environ 40 m2, à Six-Fours-les-Plages. Six-Fours-les-Plages offre
                          Professionnel Publié le 31 déc. 2025 à 09:40
                          Six-Fours-les-Plages 1 ch 1 sdb 2nd étage Exposition Nord
                          • Appartement - 68 m² - 3 pièces
                          • Appartement - 68 m² - 3 pièces
                          • Appartement - 68 m² - 3 pièces
                          • Appartement - 68 m² - 3 pièces
                          • Appartement - 68 m² - 3 pièces
                          • Appartement - 68 m² - 3 pièces Cliquez pour voir les 6 photos

                          Appartement - 68 m² - 3 pièces

                          295 000 €
                          Idéalement situé au coeur de Six-Fours-les-Plages, dans un environnement calme et recherché, cet appartement traversant d'environ 68 m2 se trouve au 1er étage d'un immeuble de trois étages.L'appartement offre de beaux volumes et se compose d'un séjour lumineux ouvrant sur une agréable terrasse de 7 m2 exposée sud, sans vis-à-vis et avec une vue dégagée. Une salle à manger atten
                          Professionnel Publié le 31 déc. 2025 à 00:26 Non géolocalisée
                          Six-Fours-les-Plages 2 ch 1 sdb 1er étage Terrasse Parking
                          • Appartement - 25 m² - 1 pièce
                          • Appartement - 25 m² - 1 pièce
                          • Appartement - 25 m² - 1 pièce
                          • Appartement - 25 m² - 1 pièce
                          • Appartement - 25 m² - 1 pièce

                          Appartement - 25 m² - 1 pièce

                          158 000 €
                          Situé au coeur du très prisé quartier du Brusc, à seulement quelques pas des plages, du port et des commerces, ce charmant studio bénéficie d'un emplacement exceptionnel où tout se fait à pied. Vous profiterez également de la proximité de l'île du Gaou et de l'île des Embiez, joyaux naturels accessibles en quelques minutes. L'appartement se compose d'un hall d'entrée avec placa
                          Professionnel Publié le 30 déc. 2025 à 00:49 Non géolocalisée
                          Six-Fours-les-Plages 1 sdb 1er étage Balcon Parking Exposition Est
                          • Appartement - 33 m² - 2 pièces
                          • Appartement - 33 m² - 2 pièces
                          • Appartement - 33 m² - 2 pièces
                          • Appartement - 33 m² - 2 pièces
                          • Appartement - 33 m² - 2 pièces
                          • Appartement - 33 m² - 2 pièces Cliquez pour voir les 12 photos

                          Appartement - 33 m² - 2 pièces

                          150 000 €
                          Offrez-vous le plaisir d'habiter au coeur de Six-Fours-les-Plages dans ce charmant appartement T2 de 33 m2, situé au premier étage d'une copropriété bien entretenue. Imaginez-vous flâner sur le marché, aller au cinéma ou boire un café sur la place des poilus pour profiter de l'animation du centre-ville... Tout cela à quelques pas de chez vous ! L'appartement vous accueille avec
                          Professionnel Publié le 30 déc. 2025 à 00:49 Non géolocalisée
                          Six-Fours-les-Plages 1 ch 1 sdb 1er étage Parking Exposition Sud
                          • Appartement - 36 m² - 1 pièce
                          • Appartement - 36 m² - 1 pièce
                          • Appartement - 36 m² - 1 pièce
                          • Appartement - 36 m² - 1 pièce
                          • Appartement - 36 m² - 1 pièce
                          • Appartement - 36 m² - 1 pièce Cliquez pour voir les 10 photos

                          Appartement - 36 m² - 1 pièce

                          192 000 €
                          Exclusivité GCLAIR-IMMOBILIER Madame Lalla HAMANT vous présente à Six-Fours-Les-Plages, quartier les lônes à côté de Sanary-sur-Mer et proche des plages, du port et de toutes les commodités, dans une résidence privée au calme, un Appartement T1 en rez-de-chaussée d'une surface de 36,33 m2 en loi Carrez. L'appartement est composé : d'un hall d'entrée, une salle de séjour donnan
                          Professionnel Publié le 30 déc. 2025 à 00:44 Non géolocalisée
                          Six-Fours-les-Plages 1 ch 1 sdb RDC Balcon Parking
                          • Appartement - 97 m² - 4 pièces
                          • Appartement - 97 m² - 4 pièces
                          • Appartement - 97 m² - 4 pièces
                          • Appartement - 97 m² - 4 pièces
                          • Appartement - 97 m² - 4 pièces
                          • Appartement - 97 m² - 4 pièces Cliquez pour voir les 24 photos

                          Appartement - 97 m² - 4 pièces

                          360 000 €
                          Découvrez ce charmant appartement de type 4, idéalement situé au cœur de Six-Fours-les-Plages (83140). Avec une surface habitable de 97 m², ce bien de plain-pied dispose d'une entrée indépendante et se prolonge par une loggia fermée de 12 m² ainsi qu'une terrasse-jardinet de 27 m², offrant un espace extérieur agréable et sans vis-à-vis. Nichée dans une résidence sécurisée avec
                          Professionnel Publié le 29 déc. 2025 à 08:22
                          Six-Fours-les-Plages 1 sdb Terrasse Parking
                          • Appartement - 68 m² - 4 pièces
                          • Appartement - 68 m² - 4 pièces
                          • Appartement - 68 m² - 4 pièces
                          • Appartement - 68 m² - 4 pièces
                          • Appartement - 68 m² - 4 pièces
                          • Appartement - 68 m² - 4 pièces Cliquez pour voir les 17 photos

                          Appartement - 68 m² - 4 pièces

                          285 000 €
                          Découvrez ce superbe appartement de 68 m², entièrement rénové en 2022, situé au cœur de Six-Fours-les-Plages. Ce bien offre un cadre de vie exceptionnel, à proximité immédiate des commerces, écoles et transports, et à seulement cinq minutes des plages. Implanté dans une copropriété sécurisée et bien entretenue, l'appartement dispose de nombreuses places de parking et est entou
                          Professionnel Publié le 29 déc. 2025 à 08:18
                          Six-Fours-les-Plages 3 ch 1 sdb Dernier étage Balcon
                          • Appartement - 66 m² - 3 pièces
                          • Appartement - 66 m² - 3 pièces
                          • Appartement - 66 m² - 3 pièces
                          • Appartement - 66 m² - 3 pièces
                          • Appartement - 66 m² - 3 pièces
                          • Appartement - 66 m² - 3 pièces Cliquez pour voir les 18 photos

                          Appartement - 66 m² - 3 pièces

                          447 000 €
                          Quartier du Fort - proche de la Collégiale Dans une petite copropriété intimiste de seulement 6 lots, idéalement située à proximité immédiate des axes autoroutiers, transports, commerces et à quelques minutes à pied du centre ville de Six Fours les Plages. Situé en Rez de jardin, karine Garcia a le plaisir de vous présenter à la vente cet appartement de type 3 d'une superficie
                          Professionnel Publié le 28 déc. 2025 à 08:14
                          Six-Fours-les-Plages 2 ch 1 sdb RDC Parking Standing
                          • Appartement - 68 m² - 3 pièces
                          • Appartement - 68 m² - 3 pièces
                          • Appartement - 68 m² - 3 pièces
                          • Appartement - 68 m² - 3 pièces
                          • Appartement - 68 m² - 3 pièces
                          • Appartement - 68 m² - 3 pièces Cliquez pour voir les 15 photos

                          Appartement - 68 m² - 3 pièces

                          460 000 €
                          Quartier du Fort - proche de la Collégiale Dans une petite copropriété intimiste de seulement 6 lots, idéalement située à proximité immédiate des axes autoroutiers, transports, commerces et à quelques minutes à pied du centre ville de Six Fours les Plages. Situé en Rez de jardin, karine Garcia a le plaisir de vous présenter à la vente cet appartement de type 3 d'une superficie
                          Professionnel Publié le 28 déc. 2025 à 08:14
                          Six-Fours-les-Plages 2 ch 1 sdb RDC Parking Standing
                          • Appartement - 23 m² - 2 pièces
                          • Appartement - 23 m² - 2 pièces
                          • Appartement - 23 m² - 2 pièces
                          • Appartement - 23 m² - 2 pièces
                          • Appartement - 23 m² - 2 pièces
                          • Appartement - 23 m² - 2 pièces Cliquez pour voir les 6 photos

                          Appartement - 23 m² - 2 pièces

                          189 000 €
                          Iad France - Virginie Faraci vous propose : LA COUDOULIÈRE – Appartement rénové avec terrasse, piscine et parc sécurisé – Forte rentabilité locative. Dans le cadre privilégié et très recherché du domaine de La Coudoulière à Six-Fours-les-Plages, découvrez ce charmant appartement rénové en rez-de-chaussée, niché au cOEur d’un environnement verdoyant, calme et sécurisé. Il se com
                          Professionnel Publié le 26 déc. 2025 à 08:01
                          Six-Fours-les-Plages 1 ch
                          • Appartement - 28 m² - 1 pièce
                          • Appartement - 28 m² - 1 pièce
                          • Appartement - 28 m² - 1 pièce
                          • Appartement - 28 m² - 1 pièce
                          • Appartement - 28 m² - 1 pièce
                          • Appartement - 28 m² - 1 pièce Cliquez pour voir les 6 photos

                          Appartement - 28 m² - 1 pièce

                          195 000 €
                          Iad France - Laura ALBERTELLI vous propose : STUDIO AVEC APERÇU MER, CAVE ET STATIONNEMENT PRIVATIF. À seulement quelques mètres à pied des plages de Six-Fours-les-Plages, dans un quartier recherché, venez découvrir ce charmant studio. Il se compose d’une entrée desservant un séjour avec coin cuisine équipée et aménagée, d’une salle d’eau avec WC et placards de rangement. Une t
                          Professionnel Publié il y a plus de 7 jours
                          Six-Fours-les-Plages 1er étage
                          • Appartement - 75 m² - 4 pièces
                          • Appartement - 75 m² - 4 pièces
                          • Appartement - 75 m² - 4 pièces
                          • Appartement - 75 m² - 4 pièces
                          • Appartement - 75 m² - 4 pièces

                          Appartement - 75 m² - 4 pièces

                          420 000 €
                          A deux pas des plages, au calme, dans une résidence sécurisée, découvrez ce superbe appartement T4 traversant de 75 m², entièrement rénové avec des prestations de qualité. Situé au dernier étage, il offre un cadre de vie rare et privilégié. Vous serez immédiatement séduit par son double séjour inondé de lumière, prolongé par une terrasse exposée plein Sud, d'où vous profiterez
                          Professionnel Publié il y a plus de 7 jours
                          Six-Fours-les-Plages 2 ch 1 sdb RDC Terrasse Parking
                          • Appartement - 36 m² - 2 pièces
                          • Appartement - 36 m² - 2 pièces
                          • Appartement - 36 m² - 2 pièces
                          • Appartement - 36 m² - 2 pièces

                          Appartement - 36 m² - 2 pièces

                          199 000 €
                          SIX FOURS LES PLAGES- Les Lônes- Idéalement situé, à deux pas des plages et des commerces, venez découvrir ce charmant T2 de 36m² au fond d'une impasse au calme absolu, dans une résidence récente de standing (2015), sécurisée. Il offre de belles prestations. Il se compose d'un séjour avec cuisine ouverte, d'une chambre et d'une salle d'eau avec wc , ainsi que d'une agréable ter
                          Professionnel Publié il y a plus de 7 jours
                          Six-Fours-les-Plages 1 ch 1 sdb RDC Terrasse
                          • Appartement - 57 m² - 3 pièces
                          • Appartement - 57 m² - 3 pièces
                          • Appartement - 57 m² - 3 pièces
                          • Appartement - 57 m² - 3 pièces
                          • Appartement - 57 m² - 3 pièces
                          • Appartement - 57 m² - 3 pièces Cliquez pour voir les 16 photos

                          Appartement - 57 m² - 3 pièces

                          287 000 €
                          Pour toute question ou demande d'information, pensez à noter et nous communiquer le numéro de référence lors de votre appel : 18763 Venez découvrir ce bel appartement d'une surface de 57.34 m², idéalement situé à quelques pas du centre de Six-Fours-les-Plages. Niché au 3ème étage avec ascenseur d'un immeuble de standing, cet espace lumineux et moderne offre un cadre de vie agr
                          Professionnel Publié il y a plus de 7 jours
                          Six-Fours-les-Plages 2 ch 1 sdb 3ème étage Terrasse
                          • Appartement - 68 m² - 3 pièces
                          • Appartement - 68 m² - 3 pièces
                          • Appartement - 68 m² - 3 pièces
                          • Appartement - 68 m² - 3 pièces
                          • Appartement - 68 m² - 3 pièces
                          • Appartement - 68 m² - 3 pièces Cliquez pour voir les 9 photos

                          Appartement - 68 m² - 3 pièces

                          295 000 €
                          Six-Fours-les-Plages - Centre-ville au calme - Appartement entièrement rénové traversant avec terrasse et stationnement ! Idéalement situé à seulement quelques minutes des plages, au cœur du centre-ville de Six-Fours-les-Plages tout en bénéficiant d'un environnement calme, découvrez ce bel appartement traversant de 68 m², entièrement rénové et climatisé, situé au 1er étage d'u
                          Professionnel Publié il y a plus de 7 jours
                          Six-Fours-les-Plages 1 sdb 1er étage Terrasse Balcon Parking
                          • Appartement - 37 m² - 2 pièces
                          • Appartement - 37 m² - 2 pièces
                          • Appartement - 37 m² - 2 pièces
                          • Appartement - 37 m² - 2 pièces
                          • Appartement - 37 m² - 2 pièces
                          • Appartement - 37 m² - 2 pièces Cliquez pour voir les 6 photos

                          Appartement - 37 m² - 2 pièces

                          220 000 €
                          Situé à Six-Fours-les-Plages (83140), cet appartement T2 de 37 m² vendu entièrement meublé, offre un cadre de vie agréable à proximité de la mer et des commerces. Le domaine dans lequel il se trouve est apprécié pour sa tranquillité et sa convivialité. Les résidents peuvent également profiter des équipements extérieurs du domaine, tels qu'une piscine, et des terrains de tennis,
                          Professionnel Publié il y a plus de 7 jours
                          Six-Fours-les-Plages 1 ch 1 sdb 4ème étage Piscine Exposition Sud
                          • Appartement - 56 m² - 3 pièces
                          • Appartement - 56 m² - 3 pièces
                          • Appartement - 56 m² - 3 pièces
                          • Appartement - 56 m² - 3 pièces
                          • Appartement - 56 m² - 3 pièces
                          • Appartement - 56 m² - 3 pièces Cliquez pour voir les 10 photos

                          Appartement - 56 m² - 3 pièces

                          335 000 €
                          EXCLUSIVITE SIX-FOURS-LES-PLAGES La Coudoulière - APPARTEMENT VILLA CLUB T3/T4 56m2 + 14m2 DEPENDANCE + PISCINE ET PARKING PRIVATIF A 200M DES PLAGES Superbe appartement de 3/4 pièces d'environ 56 m2 plus une pièce indépendante de 14m2 situé en bord de mer dans une résidence standing sécurisée avec climatisation et parking privatif. L'appartement est composé d'un vaste séjour
                          Professionnel Publié il y a plus de 7 jours
                          Six-Fours-les-Plages 3 ch 2 sdb Terrasse Piscine Parking
                          • Appartement - 71 m² - 3 pièces
                          • Appartement - 71 m² - 3 pièces
                          • Appartement - 71 m² - 3 pièces
                          • Appartement - 71 m² - 3 pièces
                          • Appartement - 71 m² - 3 pièces
                          • Appartement - 71 m² - 3 pièces Cliquez pour voir les 13 photos

                          Appartement - 71 m² - 3 pièces

                          479 000 €
                          NOUVELLE EXCLUSIVITE ! À seulement 5 minutes à pied de la plage et des commerces Confort, luminosité et prestations de qualité réunis dans un bien rare. Laissez-vous séduire par ce superbe appartement en rez-de-jardin, entièrement rénové, offrant une vue dégagée sur la mer. Il se compose d'une belle entrée, un salon-séjour / salle à manger lumineux, spacieux, une cuisine indépe
                          Professionnel Publié il y a plus de 7 jours
                          Six-Fours-les-Plages 2 ch 2 sdb RDC Terrasse Parking
                          • Appartement - 24 m² - 1 pièce
                          • Appartement - 24 m² - 1 pièce
                          • Appartement - 24 m² - 1 pièce
                          • Appartement - 24 m² - 1 pièce
                          • Appartement - 24 m² - 1 pièce
                          • Appartement - 24 m² - 1 pièce Cliquez pour voir les 13 photos

                          Appartement - 24 m² - 1 pièce

                          169 500 €
                          Iad France - Olivier Gomez vous propose : À vendre en Exclusivité – Superbe Studio de 24 m² vendu meublé – Domaine de la Coudoulière – Six-Fours-les-Plages Double Piscine • Loggia Fermée • Résidence Sécurisée • À 5 min à pied de la plage Dans le très recherché Domaine de la Coudoulière, à seulement 5 minutes à pied des plages et à deux pas du magnifique Parc de la Méditerranée,
                          Professionnel Publié il y a plus de 7 jours
                          Six-Fours-les-Plages 2nd étage
                          • Appartement - 64 m² - 3 pièces
                          • Appartement - 64 m² - 3 pièces
                          • Appartement - 64 m² - 3 pièces
                          • Appartement - 64 m² - 3 pièces
                          • Appartement - 64 m² - 3 pièces
                          • Appartement - 64 m² - 3 pièces Cliquez pour voir les 9 photos

                          Appartement - 64 m² - 3 pièces

                          323 500 €
                          Iad France - Elodie Gérics vous propose : Au cOEur du centre ville tout en étant au calme, venez découvrir ce superbe appartement de type 3 avec ascenseur, dans une résidence des années 2000, vous offrant entrée, cuisine indépendante aménagée / équipée et séjour lumineux donnant sur une belle terrasse, deux chambres, salle de douche et W. C séparé. Les plus : * Garage en sous-s
                          Professionnel Publié il y a plus de 7 jours
                          Six-Fours-les-Plages Terrasse
                          • Appartement - 65 m² - 3 pièces
                          • Appartement - 65 m² - 3 pièces
                          • Appartement - 65 m² - 3 pièces
                          • Appartement - 65 m² - 3 pièces
                          • Appartement - 65 m² - 3 pièces
                          • Appartement - 65 m² - 3 pièces Cliquez pour voir les 8 photos

                          Appartement - 65 m² - 3 pièces

                          284 000 €
                          Iad France - Titouan Lavergne vous propose : T3 65 m² – TERRASSES – RÉNOVÉ – CLIMATISATION - TRAVERSANT - DERNIER ÉTAGE - LUMINEUX - GARAGE - STATIONNEMENT AISÉ Rare à la vente. Dans une petite copropriété calme située au fond d’une impasse, découvrez ce T3 traversant de 65 m², entièrement rénové et situé au 2ᵉ et dernier étage. Séjour lumineux ouvrant sur une terrasse plein su
                          Professionnel Publié il y a plus de 7 jours
                          Six-Fours-les-Plages 2 ch
                          • Appartement - 68 m² - 3 pièces
                          • Appartement - 68 m² - 3 pièces
                          • Appartement - 68 m² - 3 pièces
                          • Appartement - 68 m² - 3 pièces
                          • Appartement - 68 m² - 3 pièces
                          • Appartement - 68 m² - 3 pièces Cliquez pour voir les 7 photos

                          Appartement - 68 m² - 3 pièces

                          295 000 €
                          Iad France - Fanny Cheval vous propose : APPARTEMENT - SIX-FOURS-LES-PLAGES - CENTRE-VILLE AU CALME - TRAVERSANT - VUE DÉGAGÉE SANS VIS À VIS - PROCHE PLAGES - RÉSIDENCE SÉCURISÉE - PLACE DE STATIONNEMENT PRIVATIVE À découvrir à seulement 7 minutes des plages, cet appartement climatisé de 68 m² entièrement rénové est situé au 1er étage, offrant de beaux volumes. Il se compose d
                          Professionnel Publié il y a plus de 7 jours
                          Six-Fours-les-Plages 1er étage Terrasse
                          • Appartement - 49 m² - 3 pièces
                          • Appartement - 49 m² - 3 pièces
                          • Appartement - 49 m² - 3 pièces
                          • Appartement - 49 m² - 3 pièces
                          • Appartement - 49 m² - 3 pièces
                          • Appartement - 49 m² - 3 pièces Cliquez pour voir les 17 photos

                          Appartement - 49 m² - 3 pièces

                          373 000 €
                          Iad France - Céline Ghio vous propose : À VENDRE APPARTEMENT REZ-DE-JARDIN RARE – Comme une petite maison. Dans le très convoité quartier des LONES, à seulement 50 mètres de la plage et 5 minutes à pied du port de Sanary, découvrez ce superbe T3 de 48 m² avec son jardin aménagé de même superficie, situé dans une toute petite copropriété sans aucune charge. L’appartement, récent
                          Professionnel Publié il y a plus de 7 jours
                          Six-Fours-les-Plages 2 ch Terrasse Parking
                          • Appartement - 75 m² - 4 pièces
                          • Appartement - 75 m² - 4 pièces
                          • Appartement - 75 m² - 4 pièces
                          • Appartement - 75 m² - 4 pièces
                          • Appartement - 75 m² - 4 pièces
                          • Appartement - 75 m² - 4 pièces Cliquez pour voir les 18 photos

                          Appartement - 75 m² - 4 pièces

                          312 000 €
                          Iad France - Pascal Olivier vous propose : Appartement T4 avec Balcon à Six-Fours-les-Plages - Idéalement Situé Découvrez ce bel appartement T4 situé au cOEur de Six-Fours-les-Plages, à seulement quelques minutes à pied des écoles, du centre-ville et des commerces. Un emplacement de choix pour une vie quotidienne pratique et agréable. Vous serez séduit par ses 3 belles chambres
                          Professionnel Publié il y a plus de 7 jours
                          Six-Fours-les-Plages 3 ch 3ème étage Balcon
                          • Appartement - 62 m² - 3 pièces
                          • Appartement - 62 m² - 3 pièces
                          • Appartement - 62 m² - 3 pièces
                          • Appartement - 62 m² - 3 pièces
                          • Appartement - 62 m² - 3 pièces
                          • Appartement - 62 m² - 3 pièces Cliquez pour voir les 17 photos

                          Appartement - 62 m² - 3 pièces

                          385 000 €
                          Quartier du Fort - proche de la Collégiale Dans une petite copropriété intimiste de seulement 6 lots, idéalement située à proximité immédiate des axes autoroutiers, transports, commerces et à quelques minutes à pied du centre ville de Six Fours les Plages. Au 1er et dernier étage (avec ascenseur), karine Garcia a le plaisir de vous présenter à la vente cet appartement de type 3
                          Professionnel Publié il y a plus de 7 jours
                          Six-Fours-les-Plages 2 ch 1 sdb 1er étage Terrasse Parking
                          • Appartement - 22 m² - 1 pièce
                          • Appartement - 22 m² - 1 pièce
                          • Appartement - 22 m² - 1 pièce
                          • Appartement - 22 m² - 1 pièce
                          • Appartement - 22 m² - 1 pièce
                          • Appartement - 22 m² - 1 pièce Cliquez pour voir les 6 photos

                          Appartement - 22 m² - 1 pièce

                          160 000 €
                          La Coudoulière à Six Fours : studio meublé de 22 m2 + 6m2 de loggia au 1er étage avec ascenseur. Composé d'une pièce à vivre avec coin cuisine entièrement équipée, salle de bains et wc séparé. GARAGE inclus dans le prix. Les informations sur les risques auxquels ce bien est exposé sont disponibles sur le site Géorisques : www.georisques.gouv.fr
                          Professionnel Publié il y a plus de 7 jours Non géolocalisée
                          Six-Fours-les-Plages 1 sdb 1er étage Terrasse Parking
                          • Appartement - 64 m² - 3 pièces
                          • Appartement - 64 m² - 3 pièces
                          • Appartement - 64 m² - 3 pièces
                          • Appartement - 64 m² - 3 pièces
                          • Appartement - 64 m² - 3 pièces
                          • Appartement - 64 m² - 3 pièces Cliquez pour voir les 16 photos

                          Appartement - 64 m² - 3 pièces

                          269 000 €
                          Bienvenue dans ce bel appartement 3 pièces de 64 m², situé dans un environnement calme et verdoyant, où chaque espace a été pensé pour offrir confort, luminosité et qualité de vie. À quelques pas du centre-ville, vous profiterez au quotidien de toutes les commodités tout en bénéficiant d'un cadre paisible et agréable. L'appartement, très bien entretenu, se compose d'un espace d
                          Professionnel Publié il y a plus de 7 jours
                          Six-Fours-les-Plages 1 ch 1 sdb 1er étage Exposition Sud-ouest
                          • Appartement - 56 m² - 3 pièces
                          • Appartement - 56 m² - 3 pièces
                          • Appartement - 56 m² - 3 pièces
                          • Appartement - 56 m² - 3 pièces
                          • Appartement - 56 m² - 3 pièces
                          • Appartement - 56 m² - 3 pièces Cliquez pour voir les 8 photos

                          Appartement - 56 m² - 3 pièces

                          299 000 €
                          Iad France - Christelle Viano-Porter vous propose : Centre ville de Six Fours les Plages -Appartement -3 Pièces- Balcons- Cave- Parking libre- Laissez-vous séduire par cet appartement de 3 pièces de 56.40 m²² offrant un cadre de vie agréable et confortable, idéal pour les couples, les petites familles ou les investisseurs en quête d'un bien de qualité. Les atouts de cet apparte
                          Professionnel Publié il y a plus de 7 jours
                          Six-Fours-les-Plages 2 ch
                          • Appartement - 36 m² - 2 pièces
                          • Appartement - 36 m² - 2 pièces
                          • Appartement - 36 m² - 2 pièces
                          • Appartement - 36 m² - 2 pièces
                          • Appartement - 36 m² - 2 pièces
                          • Appartement - 36 m² - 2 pièces Cliquez pour voir les 17 photos

                          Appartement - 36 m² - 2 pièces

                          215 000 €
                          Iad France - Isabelle Tigien vous propose : Venez découvrir ce petit bijou situé à seulement 300m du centre-ville. Proches tous commerces à pied, transports en commun, école, cinéma. Cet appartement T2 rénové situé en rez de chaussée sur élevé d'une copropriété bien tenue de 2 étages seulement, ravira les primo accédants ou les investisseurs pour du locatif annuel. Une entrée a
                          Professionnel Publié il y a plus de 7 jours
                          Six-Fours-les-Plages 1 ch Terrasse
                          • Appartement - 30 m² - 1 pièce
                          • Appartement - 30 m² - 1 pièce
                          • Appartement - 30 m² - 1 pièce
                          • Appartement - 30 m² - 1 pièce
                          • Appartement - 30 m² - 1 pièce

                          Appartement - 30 m² - 1 pièce

                          233 000 €
                          Iad France - Sébastien Pages vous propose : Six-Fours-les-Plages – Charmant Appartement avec Balcon, Vue Mer et Climatisation Situé dans la ville balnéaire prisée de Six-Fours-les-Plages, cet appartement de 30 m², niché au 3ᵉ étage d’une résidence de standing édifiée en 1974, offre un cadre de vie cosy et lumineux. Idéal pour un premier achat, un investissement locatif ou une r
                          Professionnel Publié il y a plus de 7 jours
                          Six-Fours-les-Plages Dernier étage

                          Achat d'un appartement à Six-Fours-les-Plages. Toutes les ventes immobilières d'appartements à Six-Fours-les-Plages et aux environs. Appartement à vendre.

                          Recherche en cours...
                          Rechercher dans cette zone