• Appartement - 67 m² - 2 pièces
84 000 €
67 m²
2 pièces
1 chambre

Description :

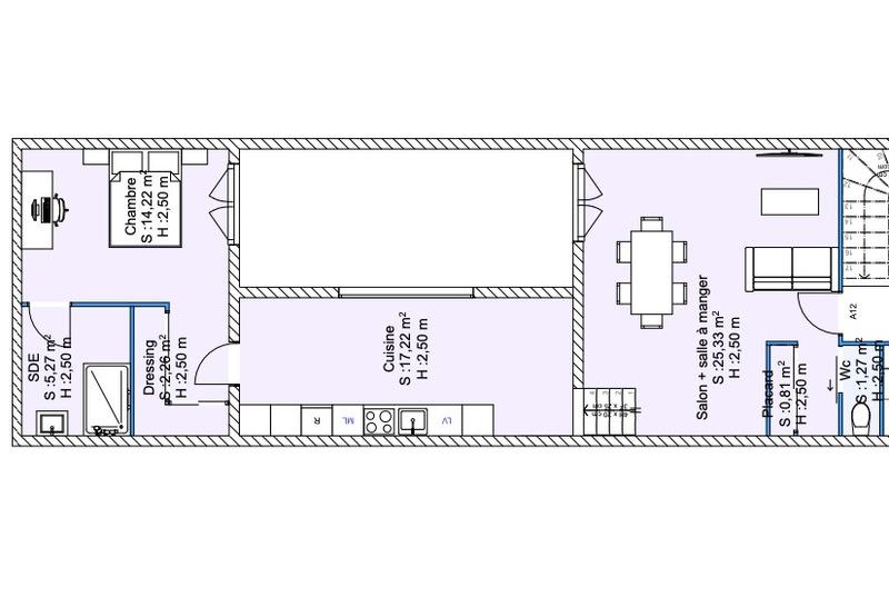
Plateau en R+1 de 66 m2.
Idéalement situé en centre ville, dans une petite copropriété bénévole de 5 lots. L'immeuble est revisité à neuf, toiture , couverture, double vitrage, façades et communs terminés, cave pour chaque lots, boites à lettres et local poubelles réalisés. La séparation des lots est faite de façon a avoir une cloison SAD avec porte palière, un compteur d'eau et le compteur électrique dans chaque lots.
Les plans et division intérieurs sont fournis, les évacuations salle d'eau, cuisine et toilette réalisés.

Reste à réaliser pour les futurs acquéreurs, l'aménagement intérieur en totalité.
Belle opportunité.
Peu de charge de copropriété. Nombre de lots de la copropriété : 5, Montant moyen annuel de la quote-part de charges (budget prévisionnel) : 140€ soit 11€ par mois, avec Syndic Bénévole. Les honoraires sont à la charge du vendeur.
Les informations sur les risques auxquels ce bien est exposé sont disponibles sur le site Géorisques : www. georisques. gouv. fr.

Réseau Immobilier CAPIFRANCE - Votre agent commercial (RSAC N°412 033 425 - Greffe de TARBES) Georges DA CUNHA Entrepreneur Individuel 06 71 67 94 18 - Réf.923984

Afficher plus de détails

Informations sur ce bien :

L'intérieur :

  • 2 pièces
  • 67 m²
    Informations complémentaires
    Surface habitable : 67 m²
  • 1 Chambre
  • 1 Salle d'eau
  • 1 Toilette
  • Séjour de 25 m²

Autres :

  • État :
    À rénover
  • Exposition :
    Est
  • Étage :
    1er étage
    Informations complémentaires
    Nombre d'étages de la construction : 2

Copropriété :

  • Copropriété :
    Oui
  • Nombre de lots :
    5
  • Charges annuelles :
    140,04 €
Synthèse
Appartement à Tarbes
84 000 €
Surface : 67 m²
Prix au m² : 1 254 €
Transaction :
Achat
Référence :
340938881940
Date de publication :
Il y a plus de 7 jours
Appartement - 67 m² - 2 pièces
Agent
CAPIFRANCE
CAPIFRANCE
Monsieur Georges DA CUNHA
Appeler
Écrire
Mettre en avant cette annonce
Signaler une erreur

Localisation :

L'adresse exacte n'est pas renseignée. Le bien se situe dans cette zone.

Performance énergétique :

Bien non soumis au Diagnostic de Performance Énergétique (DPE)

Annonces similaires
Annonces immobilières récentes