• Maison - 56 m² - 4 pièces
  • Maison - 56 m² - 4 pièces
144 000 €
56 m²
4 pièces
2 chambres

Description :

Taninges centre - Ancienne gare à rénover - Fort potentiel

Rare sur le secteur ! À vendre au coeur de Taninges, cette ancienne gare du XIX? siècle à réhabiliter offre un fort potentiel pour investisseurs, artisans ou professions libérales.

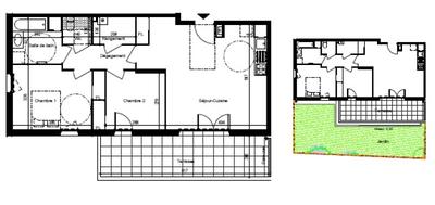
Sur un terrain de 218 m² exposé sud, cette maison individuelle de 72 m² habitables se compose de 4 pièces réparties sur deux niveaux. Balcon, cave, grenier et stationnement extérieur complètent ce bien à fort cachet.

Construite en 1891, elle conserve l'authenticité de son passé avec une structure solide et un charme indéniable. Située en plein centre-ville, à proximité immédiate des commerces, écoles, arrêts de bus et axes menant aux stations de ski, elle bénéficie d'un emplacement stratégique.

Travaux lourds à prévoir, mais le potentiel de transformation est immense : résidence principale atypique, immeuble de rapport, colocation saisonnière, local professionnel Tout est envisageable pour un esprit créatif en quête de rentabilité et de projet unique.

Honoraires inclus de 9% TTC à la charge de l'acquéreur. Prix hors honoraires 132 110 €. Classe énergie G, Classe climat C Logement à consommation énergétique excessive. Montant estimé des dépenses annuelles d'énergie pour un usage standard : entre 3440.00 € et 4700.00 € sur les années 2021, 2022 et 2023 (abonnements compris). Les informations sur les risques auxquels ce bien est exposé sont disponibles sur le site Géorisques : georisques.gouv.fr.

Votre conseiller eXp Realty : Benoit SELLIER DAGNAC
Agent commercial (Entreprise individuelle)
RSAC 832363709 Annecy

Afficher plus de détails

Informations sur ce bien :

L'intérieur :

  • 4 pièces
  • 56 m²
  • 2 Chambres
  • 1 Salle de bain
  • 1 Toilette
  • Cave

L'extérieur :

  • Balcon de 7 m²
  • Parking

Autres :

  • Travaux à prévoir :
    Oui
  • Exposition :
    Sud
Synthèse
Maison à Taninges
144 000 €
Surface : 56 m²
Prix au m² : 2 571 €
Transaction :
Achat
Référence :
VM38331-EXPFRANCE
Date de publication :
Aujourd'hui à 06:43
Maison - 56 m² - 4 pièces
Performance énergétique
A
B
C
D
E
F
G
Gaz à effet de serre
A
B
C
D
E
F
G
Agent
eXp France
eXp France
Benoit SELLIER DAGNAC
Appeler
Écrire
Mettre en avant cette annonce
Signaler une erreur

Localisation :

Performance énergétique :

Logement économe
A
B
C
D
E
F
G
706
kWh/m²/an
28
kg CO₂/m²/an
Logement énergivore
Faible émission de CO₂
A
B
C
28
kg CO₂/m²/an
D
E
F
G
Forte émission de CO₂
Date du diagnostic : 19 janvier 2026
Estimation des coûts annuels d’énergie du logement : 3 440 € à 4 700 €
Annonces similaires
Annonces immobilières récentes