Appartement - 64 m² - 3 pièces à Cluses
favoris
886 € / mois
Description :
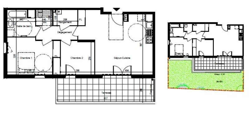
D003 Le Clusoé A SAISIR BELLE CONFIGURATION POUR CE T3 DE 64M²AVEC TERRASSE ET SONT JARDIN DE 69M² AU COEUR D'UNE RESIDENCE RECENTE 9BBC DE STANDING. Il est composé d'une belle pièce de vie de 28m², une cuisine US (meubles haut et bas, hotte, plaque de cuisson et four) donnant sur la terrasse, deux chambres en sol parquet avec placard, une salle de bain aménagée avec meuble sous vasque et sèche serviette. Deux garages simples fermés en sous-sol. Chauffage individuel gaz. Visiophone.
Consommation d'énergie totale entre 506 -685EUR par an (prix moyens des énergies indexés au 01/01/2021).
Les informations sur les risques auxquels ce bien est exposé sont disponibles sur le site Géorisques : www. georisques. gouv. fr
Afficher plus de détails
Informations sur ce bien :
L'intérieur :
-
3 pièces
-
64 m²Informations complémentairesSurface habitable : 64 m²
-
2 Chambres
-
1 Salle de bain
Autres :
-
Étage :RDC
Synthèse
Appartement à Cluses
886 € / mois
Surface :
64 m²
Transaction :
Location
Référence :
9646
Charges :
126 €
Remboursement annuel par le locataire
Informations complémentaires
Les charges sont inclues dans le loyer affichéRemboursement annuel par le locataire
Montant de la caution :
767 €
Honoraires :
844,53 €
Informations complémentaires
Dont honoraires état des lieux : 195,04 €
Mandat :
Exclusif
Disponibilité :
20/02/2026
Date de publication :
Aujourd'hui à 08:33
Contacter l'annonceur
Performance énergétique
A
B
C
D
E
F
G
Gaz à effet de serre
A
B
C
D
E
F
G
Agent
CONFIANCE IMMOBILIER MONPLAISIR LOCATION
Mettre en avant cette annonce
Signaler une erreur
Localisation :
L'adresse exacte n'est pas renseignée. Le bien se situe dans cette zone.
Performance énergétique :
Logement économe
A
B
C
81
kWh/m²/an
17
kg CO₂/m²/an
D
E
F
G
Logement énergivore
Faible émission de CO₂
A
B
C
17
kg CO₂/m²/an
D
E
F
G
Forte émission de CO₂
Date du diagnostic :
23 février 2023
Locations d'appartements à proximité
- 1 location d'appartement à Scionzier (2.4 km)
- 2 locations d'appartements à Marnaz (4.1 km)
- 1 location d'appartement à Saint-Jeoire (12.8 km)
- 1 location d'appartement à Bonneville (13.4 km)
- 2 locations d'appartements à Sallanches (14.3 km)
- 1 location d'appartement à Domancy (17.3 km)
- 1 location d'appartement à La Roche-sur-Foron (20.7 km)
- 1 location d'appartement à Saint-Gervais-les-Bains (21.3 km)
- 2 locations d'appartements à Reignier-Ésery (25.7 km)