• Appartement - 61 m² - 3 pièces
  • Appartement - 61 m² - 3 pièces
  • Appartement - 61 m² - 3 pièces
  • Appartement - 61 m² - 3 pièces
213 800 €
61 m²
3 pièces
2 chambres

Description :

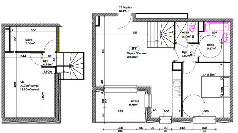
Ce charmant duplex de 61,45 m², situé proche du Rhône à SEYSSEL, est à seulement 45 mns de Genève et d'Annecy. Il est au deuxième étage avec ascenseur.

Vous profiterez d'une belle pièce de vie composée d'un séjour lumineux et d'une cuisine ouverte, parfaite pour des moments conviviaux. Une chambre spacieuse, une salle de bain et un WC indépendant complètent ce niveau.

À l'étage, une seconde chambre vous attend, accompagnée d'une salle d'eau, offrant confort et intimité.

Pour vos moments de détente, une terrasse privative vous permettra de profiter des beaux jours.

Une place de parking et un garage peuvent être acquis en supplément.

Idéal pour une résidence principale ou un investissement locatif, ce bien est une opportunité à ne pas manquer.

Ensemble immobilier prévu pour le 4ème trimestre 2026.

A env. 45 mns d'Annecy et de Genève.

Pour toute information, n'hésitez pas à m'appeler. A bientôt.

Les informations sur les risques auxquels ce bien est exposé sont disponibles sur le site Géorisques : www. georisques. gouv. fr.

Réseau Immobilier CAPIFRANCE - Votre agent commercial (RSAC N°851 001 537 - Greffe de CHAMBERY) Flora ULMSCHNEIDER Entrepreneur Individuel 06 34 42 48 47 - Réf.304121

Afficher plus de détails

Informations sur ce bien :

L'intérieur :

  • 3 pièces
  • 61 m²
    Informations complémentaires
    Surface habitable : 61 m²
  • 2 Chambres
  • 1 Salle de bain
  • 1 Salle d'eau

L'extérieur :

  • Balcon
  • Parking couvert
    Informations complémentaires
    Couvert

Autres :

  • Exposition :
    Sud-est
  • Étage :
    2nd étage

Copropriété :

  • Copropriété :
    Oui
Synthèse
Appartement à Seyssel
213 800 €
Surface : 61 m²
Prix au m² : 3 505 €
Transaction :
Achat
Référence :
340936584340
Date de publication :
Il y a plus de 7 jours
Appartement - 61 m² - 3 pièces
Agent
CAPIFRANCE
CAPIFRANCE
Madame Flora ULMSCHNEIDER
Appeler
Écrire
Mettre en avant cette annonce
Signaler une erreur

Localisation :

L'adresse exacte n'est pas renseignée. Le bien se situe dans cette zone.

Performance énergétique :

Bien non soumis au Diagnostic de Performance Énergétique (DPE)

Annonces similaires
Annonces immobilières récentes