Local commercial - 819 m² à Serres-Castet
favoris
603 200 €
Description :
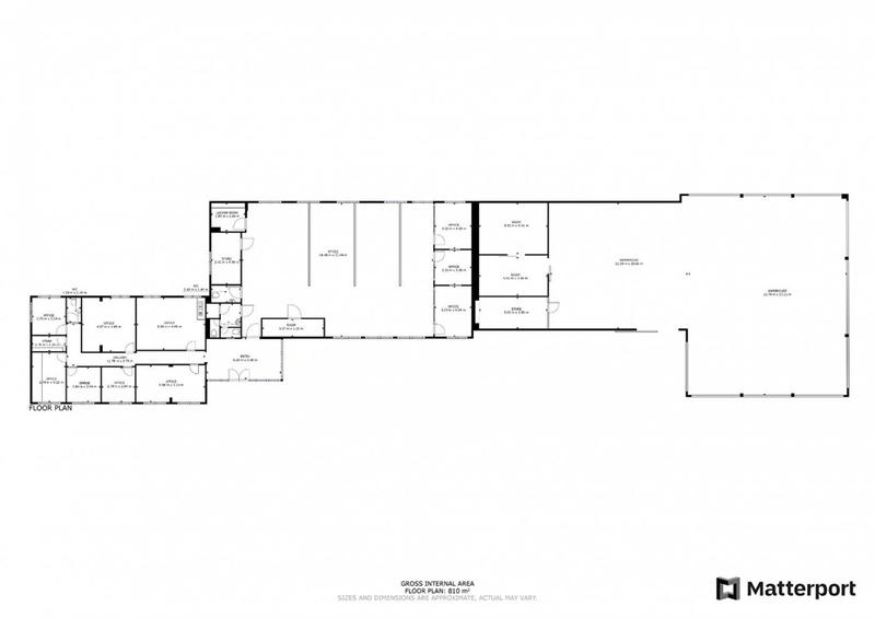
Local commercial en bon état d'une surface de 819 m2 comprenant des bureaux (surface d'environ 401 m2) et un entrepôt (surface d'environ 418 m2), situé dans une zone industrielle et commerciale à proximité de la bretelle d'autoroute. Le terrain d'une superficie d'environ 3 659 m2 comprend de nombreux emplacements de stationnement entièrement goudronné et des espaces verts. Bâtiment accessible aux camions de toutes tailles et terrain entièrement clôturé. Prix HT frais d'agence inclus.
Agent commercial immobilier.
Les informations sur les risques auxquels ce bien est exposé sont disponibles sur le site Géorisques : www.georisques.gouv.fr
Afficher plus de détails
Informations sur ce bien :
L'intérieur :
-
819 m²
-
Sans cuisineInformations complémentairesSans cuisine
L'extérieur :
-
Parking
Autres :
-
Étage :RDC
Synthèse
Local commercial à Serres-Castet
603 200 €
Surface :
819 m²
Prix au m² :
737 €
Transaction :
Achat (professionnels)
Référence :
CPCMC12027
Date de publication :
Il y a plus de 7 jours
Contacter l'annonceur
Agent
CPC Invest - Monein
Claude ESCOFET
Mettre en avant cette annonce
Signaler une erreur
Localisation :
L'adresse exacte n'est pas renseignée. Le bien se situe dans cette zone.
Ventes de locaux commerciaux à proximité
- 2 ventes de locaux commerciaux à Montardon (2.2 km)
- 2 ventes de locaux commerciaux à Sauvagnon (3.1 km)
- 6 ventes de locaux commerciaux à Lescar (8.7 km)
- 7 ventes de locaux commerciaux à Lons (9.1 km)
- 2 ventes de locaux commerciaux à Billère (10 km)
- 79 ventes de locaux commerciaux à Pau (10.3 km)
- 1 vente de local commercial à Gelos (11.3 km)
- 5 ventes de locaux commerciaux à Idron (11.5 km)
- 2 ventes de locaux commerciaux à Ousse (13.5 km)