• Appartement - 45 m² - 2 pièces
854 € / mois
45 m²
2 pièces
1 chambre

Description :

APPARTMENT NEUF situé au 2e étage avec ascenseur d'une résidence sécurisée.

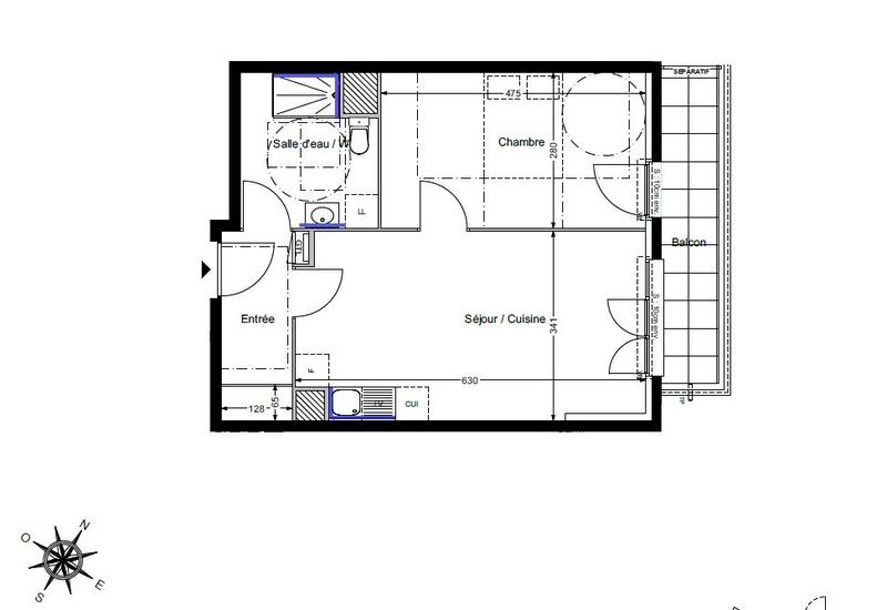
L'appartement se compose d'une antrée avec placard, d'une cuisine aménagée et équipée ouverte sur le séjour lumineux, d'une chambre confortable, d'une salle d'eau moderne avec WC. Un balcon de 6 m² vous offre un espace extérieur agréable pour profiter des moments de détente.

Un stationnement intérieur est également inclus pour votre véhicule.

Situé dans un quartier dynamique, cet appartement est idéal pour les familles ou les professionnels. À proximité, vous trouverez une maternelle et une école élémentaire à 5 minutes à pied, un collège à 10 minutes à pied, ainsi que plusieurs restaurants à 5 minutes à pied. Un parc et jardin se trouve à 10 minutes à pied pour des moments de détente en plein air. Les commodités du quotidien sont également accessibles à pied, avec un bus à 5 minutes, une crèche à 10 minutes, et plusieurs médecins généralistes à 15 minutes.

Ne manquez pas cette opportunité de vivre dans un appartement neuf, fonctionnel et bien situé. Contactez-nous dès maintenant pour une visite !

Honoraires de 584 € TTC à la charge du locataire comprenant 135 € TTC pour l'état des lieux. Loyer de base 761 €/mois. Provision sur charges 93 €/mois, régularisation annuelle. Dépôt de garantie 761 €. Classe énergie C, Classe climat C Montant estimé des dépenses annuelles d'énergie pour un usage standard : entre 320.00 € et 480.00 € sur les années 2021, 2022 et 2023 (abonnements compris). Les informations sur les risques auxquels ce bien est exposé sont disponibles sur le site Géorisques : georisques.gouv.fr.

Afficher plus de détails

Informations sur ce bien :

L'intérieur :

  • 2 pièces
  • 45 m²
  • 1 Chambre
  • Cuisine américaine, équipée
    Informations complémentaires
    Américaine, équipée
  • 1 Salle d'eau
  • 1 Toilette
  • Séjour de 21 m²

L'extérieur :

  • Balcon de 6 m²
  • Parking
  • Box

Les équipements :

  • Ascenseur

Autres :

  • Chauffage :
    Collectif, Gaz
  • Année de construction :
    2025
  • Exposition :
    Est, Nord
  • Étage :
    2nd étage
    Informations complémentaires
    Nombre d'étages de la construction : 5

Copropriété :

  • Copropriété :
    Oui
Synthèse
Appartement à Savigny-le-Temple
854 € / mois
Surface : 45 m²
Transaction :
Location
Référence :
LA6423-MEILLEURCONSEIL
Charges :
93 €
Informations complémentaires
Les charges sont inclues dans le loyer affiché
Prévisionnelles mensuelles avec régularisation annuelle
Montant de la caution :
761 €
Honoraires :
584 €
Informations complémentaires
Dont honoraires état des lieux : 135 €
Disponibilité :
26/12/2025
Date de publication :
Le 03 déc. à 05:58
Appartement - 45 m² - 2 pièces
Performance énergétique
A
B
C
D
E
F
G
Gaz à effet de serre
A
B
C
D
E
F
G
Agent
Meilleur Conseil Immo
Meilleur Conseil Immo
LA CLE DE L'IMMO
Appeler
Écrire
Mettre en avant cette annonce
Signaler une erreur

Localisation :

Performance énergétique :

Logement économe
A
B
C
66
kWh/m²/an
13
kg CO₂/m²/an
D
E
F
G
Logement énergivore
Faible émission de CO₂
A
B
C
13
kg CO₂/m²/an
D
E
F
G
Forte émission de CO₂
Date du diagnostic : 29 octobre 2025
Estimation des coûts annuels d’énergie du logement : 320 € à 480 €
Annonces similaires
Annonces immobilières récentes